EasyManua.ls Logo

Panasonic CS-BZ35XKE - Block Diagram; Cs-Bz25 Xke Cu-Bz25 Xke Cs-Bz35 Xke Cu-Bz35 Xke

Panasonic CS-BZ35XKE
157 pages
To Next Page IconTo Next Page
To Next Page IconTo Next Page
To Previous Page IconTo Previous Page
To Previous Page IconTo Previous Page
Loading...
24
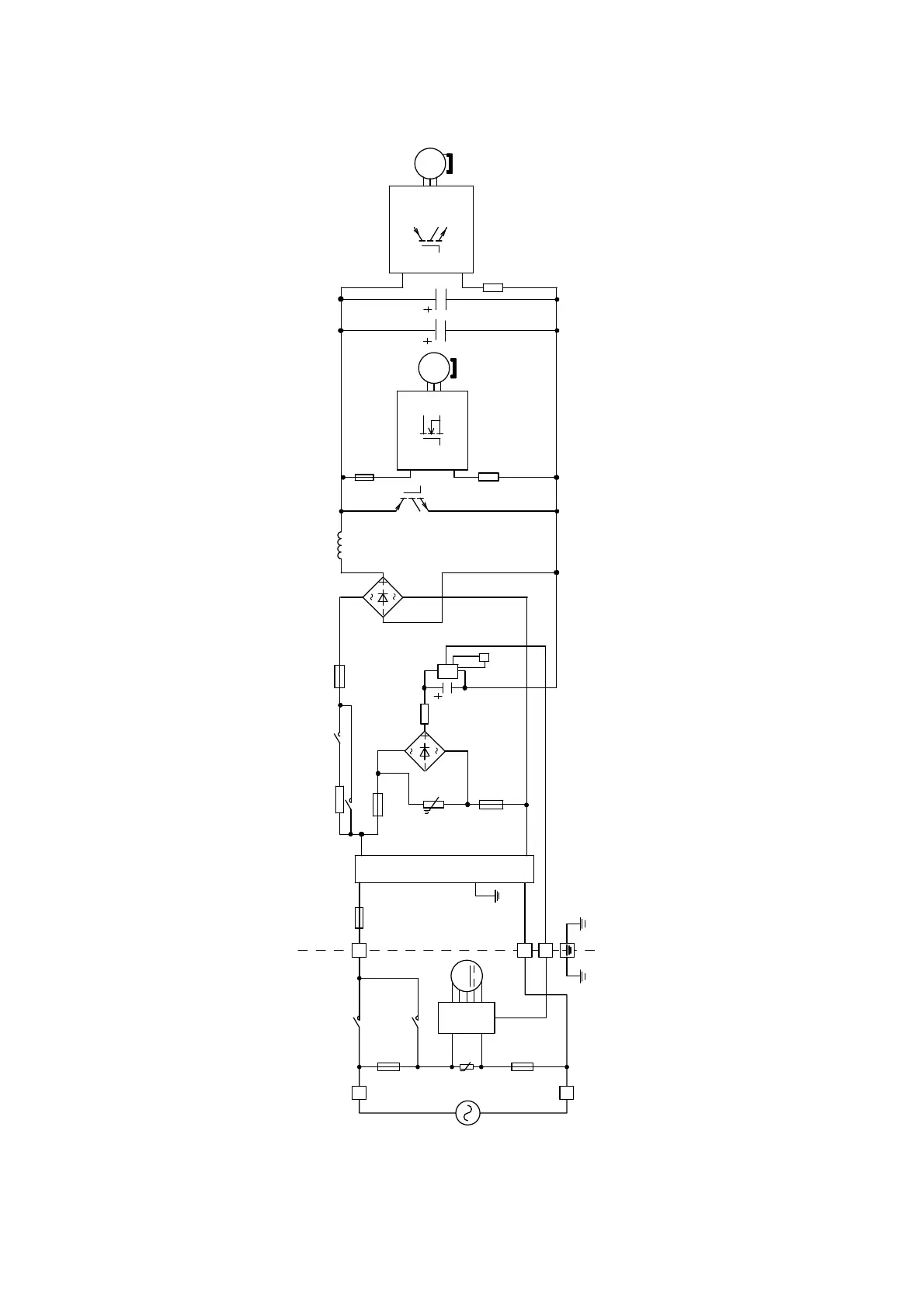
8. Block Diagram
8.1 CS-BZ25XKE CU-BZ25XKE CS-BZ35XKE CU-BZ35XKE
1
FUSE101
FUSE105
REACTOR
FUSE103
FUSE102
RY-PWR
PTC1
PTC
NTC
TH1
4-WAYS
VALVE
RY-AC
FUSE104
IC19
MS
3~
MS
3~
RY-PWR
RY-PWR2
FUSE301
TEMP.
FUSE
SC
L
U
M
(INDOOR UNIT) (OUTDOOR UNIT)
SC
2
3
N
SINGLE
PHASE
POWER
SUPPLY
NOISE FILTER

Table of Contents

Other manuals for Panasonic CS-BZ35XKE

Related product manuals