EasyManua.ls Logo

Panasonic CS-E9SD3UAW - Page 5

Panasonic CS-E9SD3UAW
16 pages
Print Icon
To Next Page IconTo Next Page
To Next Page IconTo Next Page
To Previous Page IconTo Previous Page
To Previous Page IconTo Previous Page
Loading...
36
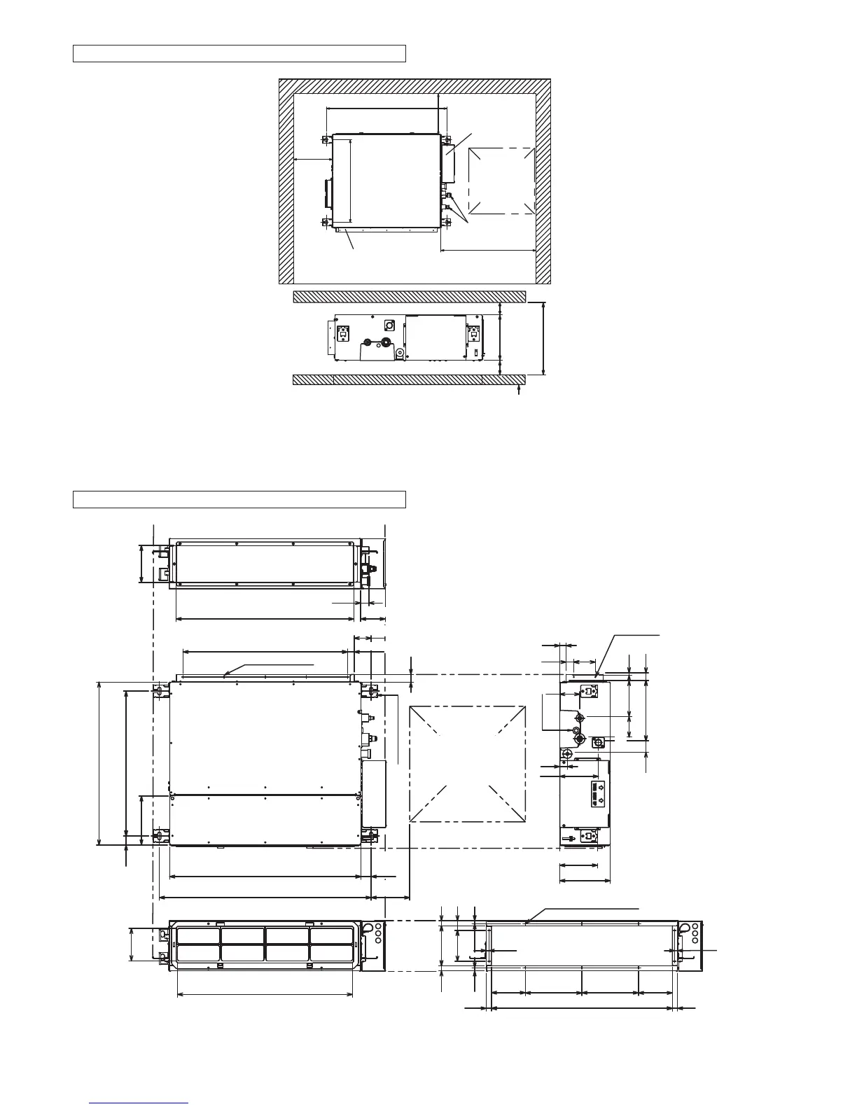
Required Minimum Space for Installation and Service
Flange for air outlet duct
32
7
/16" (
824) (Suspension bolt pitch)
Inspection
access
17
23
/32
"
x
17
23
/32
"
(
450 x 450)
Electrical
component box
Refrigerant tubing
Min. 25
19
/32
"
(
650) or more
Min. 7
7
/8"
(
200) or
more
22
7
/32
"
(
564)
Min.
7
7
/8
"
(
200)
or
more
Min.
25
/32" (20) or more
Min.
25
/32" (20) or more
7
7
/8
" (200)
*H=Min.
9
7
/16
" (240)
Min 3
15
/
16
" (100 mm) or more for bottom
air intake
Ceiling
x
H dimension means the minimum height of the unit installation space.
x Select H dimension such that a downward slope of at least 1/100 is ensured. Refer to 11.1.4 “Connecting
the
drain pi
ping
Dimension of the Indoor Unit
5
23
/32
" (145)
1
5
/32
" (29)
3
25
/32
"
(96)
2
5
/8
"
(66)
1
1
/32
"
(26)
1
1
/16"
(27)
1
3
/16
" (30)
1
3
/32
" (28)
3
5
/16
"
(84)
2-ø
1
/8
"
(ø3.1)
(Hole)
10-ø
1
/8
"
(ø3.1)(Hole)
1
3
/16
"
(30)
13
/32
"
(10)
3
5
/32
"
(80)
9
3
/8
" (238)
5
5
/8
"
(143)
Water inlet
1
23
/32
" (44)
3
3
/16
" (81)
1
5
/16
"
(33)
5
29
/32
" (150)
7
7
/8
" (200)
5
29
/32"
(150)
29
/32
"
(23)
5
3
/16
"
(132)
5
3
/16
"
(132)
8
21
/32
"
(220)
8
21
/32
"
(220)
27
23
/32
" (704)
29
/32
"
(23)
9
/16
" (14)
9
/16
"
(14)
9
/16
"
(14)
7
/8
"
(22)
26
25
/32
"
(680)
1
9
/16
"
(40)
6
3
/32
"
(155)
4
31
/32
"
(126)
25
3
/16
"
(640)
7
5
/8
" (
194)
6
1
/32
"
(153)
4
23
/32
"
(120)
27
1
/4
"
(692)
(Flange for air outlet duct)
1
15
/32
"
(37)
1
1
/2
"
(38)
29
/32
"
(23)
19
/32
"
(15)
Suspension lug
5-ø
1
/8
"
(ø3.1)(Hole)
25
3
/16
" (640) (6
5
/16
" (160) x 4)
Inspection access
17
23
/32" X
17
23
/32"
(450x450)
(Field supply)
22
7
/32
" (564) (Suspension bolt pitch)
32
7
/16
" (824) (Suspension bolt pitch)
29
17
/32
" (750)
* Filter Uninstalled

Other manuals for Panasonic CS-E9SD3UAW

Related product manuals