EasyManua.ls Logo

Panasonic CU-L50DBE8 - Page 95

Panasonic CU-L50DBE8
106 pages
Print Icon
To Next Page IconTo Next Page
To Next Page IconTo Next Page
To Previous Page IconTo Previous Page
To Previous Page IconTo Previous Page
Loading...
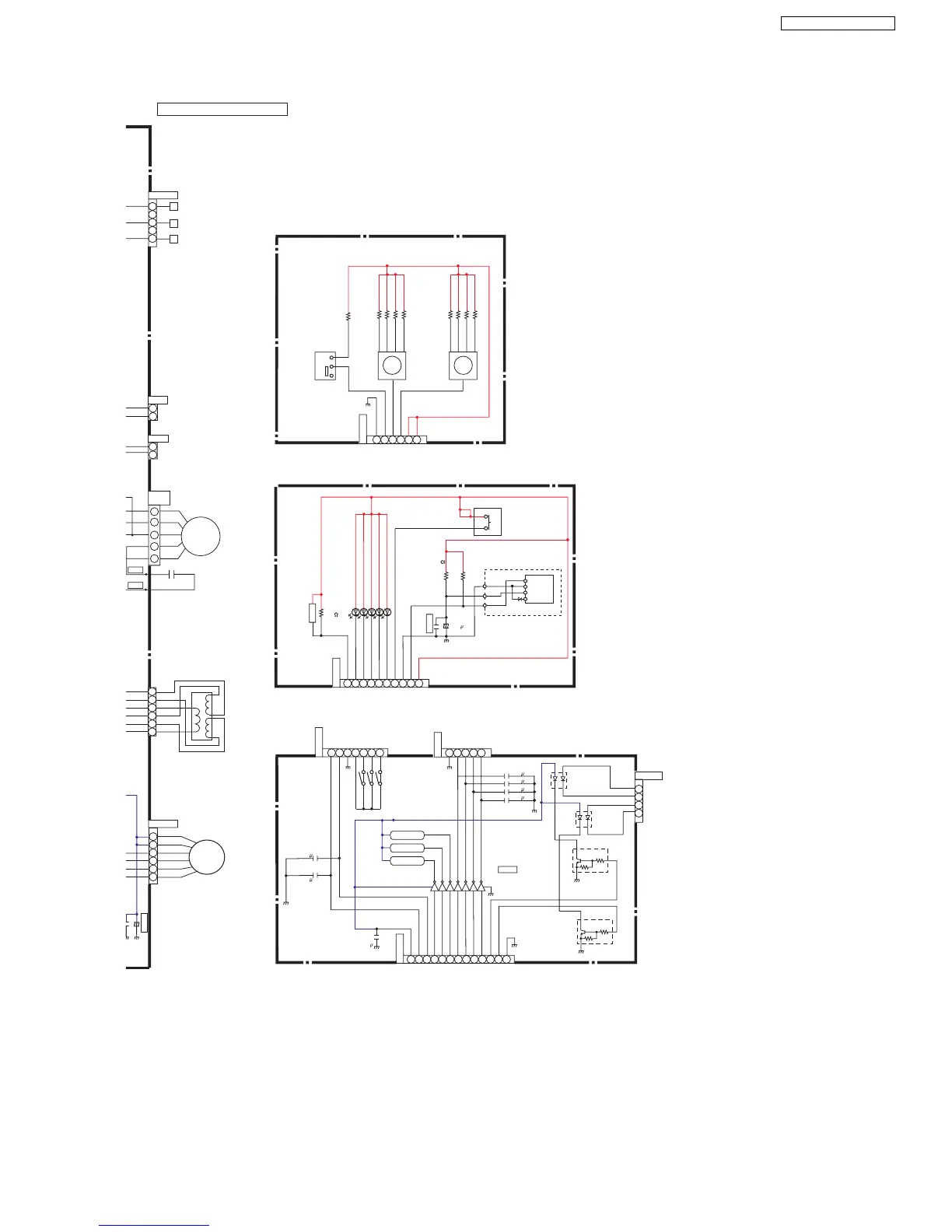
ELECTRONIC CONTROL UNIT
3
2
1
++
CN-EV
1
2
3
4
5
6
1
3
5
1
3
7
9
SCHEMATIC DIAGRAM 4/4
1
3
CN-T
7
28-0612
(RED)
C-FV1
(RED)
(BLU)
C
C-FV2
RED
TRANSFORNER
RED
WHITE
WHITE
BLACK
BLACK
CN-FM
(VH9-5)
CN-DRV
CN-LYN
DNDN DC782
LND2 DC782
FAN MOTOR
EXPAND
VALVE
M
1
2
3
4
5
6
CN-PWR
1
2
3
4
5
R310 80.6k 1%
R309 40.2k 1%
R308 20k 1%
R307 10k 1%
R314 80.6k 1%
R313 40.2k 1%
R312 20k 1%
R311 10k 1%
CN-OPT2
123456
34 2 1
SW303
COM
34 2 1
SW302
COM
SW301
FROM CN-OPT2
1
2
4
3
SSR401
SSR402
1
2
4
3
Q401
RT1N141C
b
c
Q402
RT1N141C
b
c
IC401
LM2003ADR
C404 0.01
TN2
1234567
RY403
RY402
RY401
C403 0.01
C402 0.01
C401 0.01
RT403
RT402
RT401
TM1
11
10
9
8
CN1
2345 1
CN-OPT2
13121110987654321
FROM CN-OPT3
LED201
LED202
LED203
LED204
LED205
BZ201
R203 5.1k
R202 47
C202
C201
47
25V
3 GND
2 Vcc
1 Vout
PD
CN-DISP
10987654321
R201
1k 1%
SW201
IC201
+
FROM CN-DISP
R301 80.6k 1%
C407
0.01
C405
0.01
25V
C406
0.01
25V
C64
95
CS-F50DTE5 CU-L50DBE8

Table of Contents