EasyManua.ls Logo

Panasonic CU-L50DBE8 - Page 98

Panasonic CU-L50DBE8
106 pages
Print Icon
To Next Page IconTo Next Page
To Next Page IconTo Next Page
To Previous Page IconTo Previous Page
To Previous Page IconTo Previous Page
Loading...
10
10
8
9
1
1
C64
1
00
µ
R2
69
A
D
R
I
C8
U
LM2
003
AD
R
3V
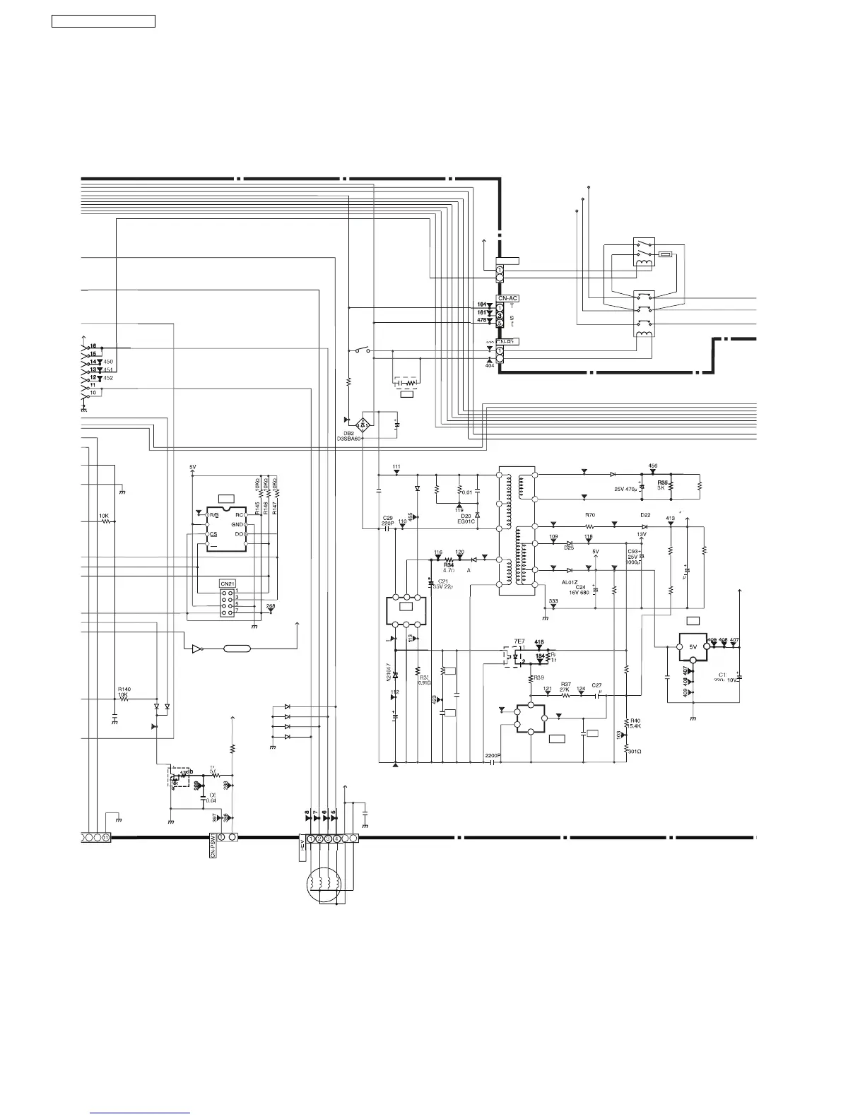
SCHEMATIC DIAGRAM 3/5
C
N-RY1
1
2
c
R1
38
5
.
6
K
2
4
6
8
2
1
3
4
8
5
4
02
VC
C
S
K
DI
I
C6
D1
5
D
1
6
D15
,
D16
HR
U0
1
03C
26
1
Q
24
RTLN4
3
2
C
65
47
µ
R139
6K
K
1
3V
RY
-
HT
1
3V
5
6
T
O
PRE
SS
URE
S
WITC
H
C8
4
0
.
0
4
7
µ
1
3V
D
33
D
3
4
D
35
D36
D
D33
~D
36
H
R
U0
1
03
A2
EXPAND VALVE
RL4Z
D24
0
.4
7
µ
AL
0
1Z
R42
1K
R5
0
1.7
8
K
C26
2
5
V
4
7
0
R66
470
4
R
4
9
17.4K
4
35
1
07
117
104
15.7V
C
2
3
R47
3
K
D21
E
G0
1Z
1
0
5
1
8
1
7
8
6
3
2
11
1
1212
1515
1616
1
1717
1
1818
REGULAT
OR
C9
1
0
.
01
µ
26
220
µ
5V
45
K
1
.
5K
2.4
9
5
V
REGULAT
OR
2
38
302
C
2
5
R36
R38
15K
1
C
1
9
I
C
12
P
C
7
P
C8
1
4
1
9
0
.
1
3
4
4
14
1
1
5
R4
6
47K
R
3
2
47K
C
22
µ
D
2
A
M
0
1
Z
C90
0
.2
2
µ
D
2
5
L0
1
Z
ZD
4
MA
C
2
0
50
V 1
0
µ
C9
2
R
4
3
C26 680P
3
1
82
T1
ET
S
29AK7W1A
C
C
12
9
4
50
V
56
µ
4
7
4
R1
05
7.
8
1
3V
RY
-
PWR2
C
R4
403
I
C
4
2
4
8
3
5
7
S
TR-Y152
I
C
2
CN-EV
MAGNET RELAY
MAGNET RELAY
PTC
CN-RY2
C
1
4
L1-OUT(BLU)
L2-OUT(YLW)
L3-OUT(BLK)
TO
(NOICE FILTER)
OF SCHEMATIC DIAGRAM 5
2
1
T
O
(
CN-001
)
IN
S
CHEMATIC
D
IA
G
RAM 4
98
CS-F50DTE5 CU-L50DBE8

Table of Contents