EasyManua.ls Logo

Panasonic TH-37PV60E - P-Board (3 of 6) Schematic Diagram (37 Inch)

Panasonic TH-37PV60E
217 pages
To Next Page IconTo Next Page
To Next Page IconTo Next Page
To Previous Page IconTo Previous Page
To Previous Page IconTo Previous Page
Loading...
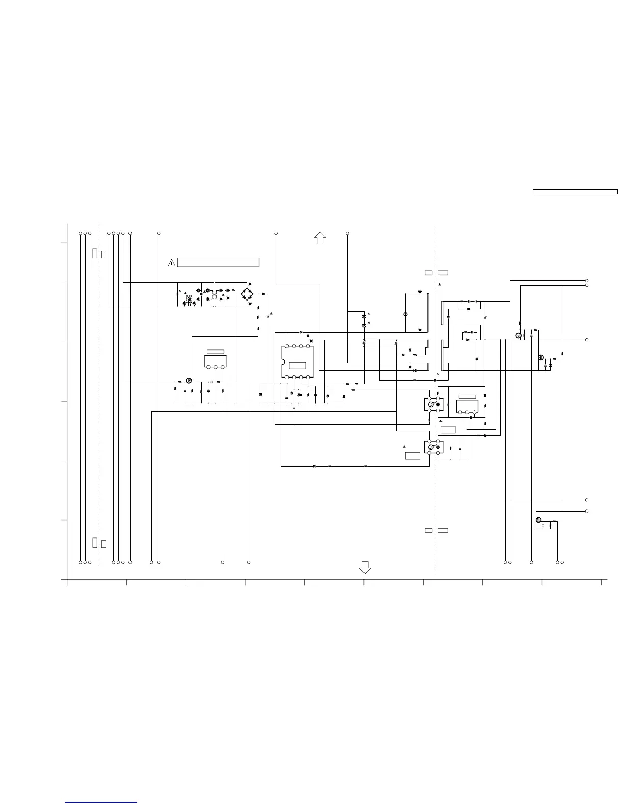
14.7. P-Board (3 of 6) Schematic Diagram (37inch)
R429
4.7
ZH59
D430
MA111
D595
WA5001=5
R459
680K
C630
0.01
C513
50V
470P
IC411
TL431A1LPM5
123
R677
470K
ZH63
ZH67
C512
50V
470P
ZH5
C585
0.1
C408
1000P
D444
D1NL20U
D601
02DZ5.1
R404
1K
D435
ERA15-10
D432
RB520
R521
10
IC504
TL431A1LPM5
123
C494
1u/250V
R413
10/5W
Q521
2SK3018
R435
430K
IC408
ON3171
2
1
4
3
ZH88
D563
02DZ6.2
R539
10K
C529
1.0
ZN405
510V
C402
1.0
ZH68
Q434
2SK3302
D436
MA4200-M
R412
0
ZH89
C467
220P
C627
1000P
R544
330
IC409
MIP2G4
Vdd
1
FB
2
CL
3
Vcc
4
DRAIN
56
SOURCE
7
SOURCE
8
ZH6
D404
S1WB(A)80
C413
0.1
ZH44
R422
330K
C497
47/50V
D437
MA4200-M
R461
10K
R423
1K
D438
MA4200-M
C507
0.01
D509
D2S6M
ZH41
C407
22u/450V
R418
22
R594
150
R530
33K
R524
1K
C517
220u
IC410
ON3171
2
1
4
3
1mm
ZN406
510V
R488
100K
R416
3M
C654
1.0
L410
40mH
1
2
4
3
R921
33K
R541
1M
R507
220
ZH45
1mm
ZH60
R434
0
ZH61
D511
D1NJ10
D411
ST02D-170
D596
ERA15-10
C414
0.047u
R432
1K
C433
0.1
T410
ETS25AF115AH
9
7
5
4
1
2
10
11
12
13
14
16
15
C514
50V
470P
Q524
2SK2090
C515
1200
D416
1SR153
C425
0.01
R943
1M
R540
1M
D412
D1NL20U
R483
4.7M
C434
1.0
R420
0
C516
0.47
R938
4.7K
ZH52
R542
1K
R407
430K
R522
10
C493
47/50V
D441
D1NL20U
D445
MA4360-H
R425
39K
R427
430K
ZH53
R549
10K
Q537
RTR040N03
93
D
B
7
A
4
E
6
F
1258
C
COLD
HOT
COLD
HOT
COLD
HOT
COLD
HOT
P-BOARD TNPA3912 (3/6)
FBE IA JCD HG K
13
12
14
11
15
BG BKBEBDBB BIBHBA BJBFBC BL BM BN BO BP
P-BOARD
(1/6)
TO
TO
P-BOARD
(5/6)
DC POWER
CONTROL
COUPLER
PHOTO
COUPLER
PHOTO
ERROR DET
ERROR DET
TH-37PV60E, TH-37PX60B
P-Board (3 of 6) Schematic Diagram
TH-37PV60E, TH-37PX60B
P-Board (3 of 6) Schematic Diagram
TH-37PV60E / TH-37PX60B / TH-42PV60E / TH-42PX60B
81

Table of Contents

Other manuals for Panasonic TH-37PV60E

Related product manuals