EasyManua.ls Logo

Panasonic TH-42PV500E - H and TA-Board Block Diagram

Panasonic TH-42PV500E
260 pages
To Next Page IconTo Next Page
To Next Page IconTo Next Page
To Previous Page IconTo Previous Page
To Previous Page IconTo Previous Page
Loading...
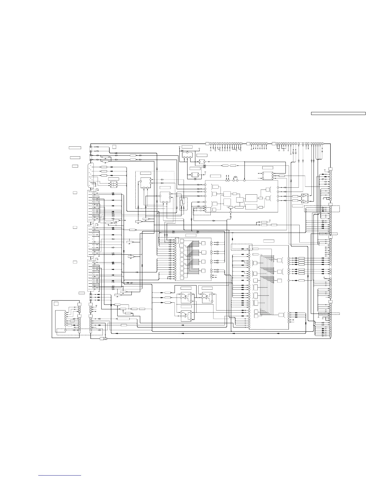
14.17. H and TA-Board Block Diagram
AV4C_Y
AV2_QLINK
AV4C_PR
AV4C_PB
AV1_SLOW
MAIN_L
AV1_V
MAIN_R
AV2_SLOW
AV2_VOUT
AV1_VOUT
AV4_QLINK
AV2_V
AV2_C
PC_LIN
PC_RIN
PC_LIN
PC_RIN
TV_L
TV_R
AV1_ L
AV1_ R
AV2_ L
AV2_ R
AV4_ L
AV1_GREEN
AV1_RED/C
AV1_BLUE
AV4_RED/C
AV4_BLUE
AV4_GREEN
AV4C_Y
AV4C_PB
AV4C_PR
RMCN
AV4_SLOW
AV1_RED
AV1_GREEN
AV1_BLUE
AV1_ L
AV1_R
AV1_SLOW
AV1_VOUT
AV2_VOUT
AV2_V
AV2_C
AV2_R
AV2_SLOW
AV2_L
AV4_V
AV4_RED/C
AV4_L
AV4_R
AV4_VOUT
DC_OUT
O2
O4
AV4_ROUT
O4
DVB_L
DVB_R
DVB_V
DVB_R
DVB_L
DVB_V
AV4_LOUT
AV1_V
AV4_SLOW
AV4_BLUE
AV4_GREEN
PC_B
PC_G
PC_R
PC_VD
PC_HD
AV2_QLINK
AV4_QLINK
O2
AV2_LOUT
AV2_ROUT
AV1_FB
AV4_FB
AV4_VOUT
FB
SIF
SIF
AV1_SW
AFC1
AM
AM
AV4_RED/C
AV4_ V
HDMI_L
HDMI_R
AV4_R
SD_MONO_IN
AV3_R
AV3_L
AV2_LO
AV2_RO
AV4_LO
AV4_RO
MAIN_L
MAIN_R
SD_V
SD_A_RO
SD_A_LO
AV3_ C
AV3_ Y
AV3_ V
AV3_ S
DC_OUT
AV1_SW
HP_ROUT
HP_LOUT
AI_SENSOR
LED_G
AV3_ R
AV3_ L
AV3_ Y
AV3_ V
AV3_ C
AV3_ S
HP_LOUT
HP_ROUT
RMCN
LED_R
LED_G
AI_SENSOR
LED_R
KEYSCAN
KEYSCAN
SD_V
SD_MONO_IN
SD_A_RO
SD_A_LO
SD_RX
SD_TX
SD_IRQ
SD_RST
SP_MUTE
SOS2
SOS2
RESET
SP_MUTE
MAIN_DEF
RESET
AFC1
FB
SD_REC_V
SD_RX
SD_TX
SD_RST
SD_IRQ
PC_VD
PC_HD
PC_R
PC_B
PC_G
HDMI_L
HDMI_R
SD_DTC
SOUND_MUTE
AV1_ROUT
TV_R
TV_L
AV1_LOUT
1
2
3
6
7
8
10
11
12
15
16
19
20
1
2
3
6
7
8
10
11
15
19
20
1
2
3
6
8
10
15
19
20
1
2
3
4
5
6
7
8
9
10
11
12
13
14
15
SDA3
17
SCL3
18
MAIN
COUT1
IN
IC3005
AV2
65
OUT
58
VIDEO SW
68
SA1
59
OUT
PROUT1
AV1 IN
SUB
60
VOUT1
55
VOUT2
56
COUT2
71
Y2
C2
V2
73
74
SA2
5
3
7
Y4
C4
V4
36
SC1OR
27
SCART
AUDIO
SOUND
24
SELECT
DACM L
57
PROCESSING
DACM R
DSP
LOUDSPEAKER
OUT
OUT
OUT
HEADPHONE
SOURCE
PROCESSING
SC1IL
25
56
SC1OL
HP
PRESCALE
DAC
MSP
INPUT
37
SC1IR
DACA R
SCART
28
SP
OUTPUT
DACA L
SELECT
IC2106
IN
MAIN
SELECT
SOUND
SURROUND
ADC
DAC
DAC
+
7
Q2104
1
Q2105
3
5
-
-
+
IC2104
VAO
SC2OR
33
34
OUT
SC2OL
TV
AV4
L
R
Q2103
Q2102
Q2002
Q2001
Q3017
Q3011
46
VOUT4
TV
OUT
Q3010
PB
PR
Y
Q3002
Q3004
Q3003
JK3004
JK3005
JK2002
AUDIO OUT
H
AV TERMINAL
67
ANA IN+
SCL
45
SDA
44
SDA1
SCL1
MAIN PB/C/R
MAIN PR/B
9
11
SUB CY/Y/V
SUB PB/C
3
1
RMCN
AV2 QLINK
AV4 QLINK
AFC1
40
39
35
38
H5
10
8
TUNER
AFT1
TA5
VIDEO_OUT
2
8
TUNER
17
TA
TNR001
12
SIF
11
4
S-CLOCK
14
RF AGC
AFT
SIF1(MSP1)
10
S- DATA
MAIN VIDEO
8
RFAGC1
2
10
4
43
41
39
PB4
PR4
CY4
AV4C
61
VOUT
V7
17
R
L
23
SDA1
SCL1
YPBPR
SCART
COMPONENT
VIDEO
42
IC2108
RESET
321
IN SW OUT
IC2107
AVR 5V
AUDIO VIDEO SWICTHING MSP
R IN
BLUE IN
TV VIDEO OUT
TV VIDEO OUT
TV R OUT
RED IN
BLUE IN
FB IN
L IN
Q-LINK
BLK IN
GREEN IN
TV R OUT
TV L OUT
AV4 SLOW
RED IN
R IN
Q-LINK
L IN
VIDEO IN
CHROMA IN
TV R OUT
VIDEO IN
VIDEO OUT
TV L OUT
L IN
SDA2
AV1 SLOW
GREEN IN
SCL2
R IN
AV2 SLOW
VIDEO IN
TV L OUT
SWITCHING
IC3001
1
2
4
6
PC_L
PC_R
2
4
16
IC3004
SWITCHING
4
2
16
IC3002
SWITCHING
H6
1
2
9
14 14
TA6
9
2
1
SCL
SDA
SUB 30V
15
BTL
SUB 5V
Q2106,Q2108
60
59
18
19
16
17
1
2
3
4
9
10
34
29
30
35
L8
R8
L7
R7
L1
R1
L2
R2
L4
R4
PC
IN
TV
IN
AV1
IN
AV2
IN
AV4
IN
MAIN
ROUT2
ROUT1
OUT
LOUT1
AV4
LOUT2
OUT
OUT
AV2
SDA
SCL
32
33
IC2105
AUDIO SW
30V_BT
SDA1
SCL1
SUB 5V
Q003
SDA1
SCL1
75
4
SA4
29
CY2
PR2
PB2
31
27
PR3
35
33
PB3
CY3
37
AV4
IN
AV1
RGB
IN
RGB
IN
AV4
VOUT5
51
PROUT2
54
7
Q3014
MAIN Y/V/G
SCL3
SDA3
21
SCL2
20
SDA2
SDA2
SCL2
SDA1
SDA1
SCL1
SCL1
24
23
SOS2
31
SOUND_MUTE
30
SP_MUTE
29
RESET
28
H2
TO DG2
Q3016
Q3019
Q3020
Q3021 Q3022
O1
64
O2
66
O3
72
Q3006
Q3005
SDA2
SCL2
Q3001
Q2006
Q2007
MUTE
MUTE
SC5IL
SC5IR
6
SUB 9V2
AVR 8V
13
IC2103
IN OUT
8V
21
RESETQ
SUB 9V2
2
MAIN 3.3V
48
SUB 5V_SD
SUB 9V2
10 22
SUB 3.3V
12
SUB 5V
BT 30V
14 2318 2721
+10VS
616
SUB 5V_SD
H30
TO PA30
28
MAIN 9V
+10VS
+10VS
+9VS
+9VS
SUB 5V
SUB 5V_SD
SUB 9V2
MAIN 9V
SUB 3.3V
MAIN 3.3V
30V_BT
+10VS(WO)
+9VS(SQ)
Q3015
MAIN CVBS(RGB)
13
SUB PR
5
LED_R
26
KEYSCAN
33
SRQ
32
TO G51
H51
21
STBY_LED
KEYSCAN
STB 5V
REMOTE
34
25
33
2
SRQ
41
STB 5V
SCL3
5
SDA3
7
SDA2
86
SCL2
SCL1
9
SDA1
LOADER
EEPROM
DEVICE
STB 5V
15
FB_OUT
STB 5V
SDA3
SCL3
SDA2
SCL2
SDA1
SCL1
SDA
SCL
XIN
72
XOUT
71
X2101
Q002
SUB 5V_MSP
JK3003
SCART
AV2
JK3002
SCART
AV1
JK2003
PC AUDIO IN
16
H15
1
AGC1
TV
IN
27
STB 5V
STB 5V
IN
TV
7
IC2111
1
AV1L OUT SW
3
42
VIN1
VIN2
VOUT
SW1 SW2
VIN1
VIN2
VOUT
7
1
IC2112
AV1R OUT SW
24
SW1
3
SW2
15
14
L6
R6
DVB
IN
Q2009
Q2010
78
DC OUT
O4
62
Q2004
Q2003
MUTE
MUTE
OPT
22
DVB_CVBS
DVB_ L
8
DVB_ R
6
10
TO DG1
H1
19
DVB IN
V1
V8
FOR
FACTORY
USE
MUTE
MUTE
PV500B ONLY
PV500E ONLY
PV500B ONLY
6
AUDIO_OUT
AM
13 6
PV500E ONLY
PV500E ONLY
PV500B ONLY
PV500B ONLY
JK3001
PC IN
Q3333
Q3332
Q3331
PC_R
PC_G
PC_B
SW
5
IC3301
3
62
SIF TRAP
13
12
L5
R5
HDMI
IN
7
8
L3
R3
AV3
IN
37
IN
R9
L9
SD
38
23
24
ROUT4
LOUT4
OUT
SD
ROUT3
26
25
LOUT3
15
V6
C3
79
77
Y3
V3
1
IN
AV3
2
S-3
SD-V
IN
MAIN DEF
Q2012Q2011
Q2013
STB5V
Q3009Q3008
V DET
2
SWO
9
SW2
DAC2
5
MSP_RST
SDA
14
SCL
15
SCL1
SDA1
Q3101
IC3006
EX.I/O
SRQ
H12
Q3013
Q3018
Q3012
SD
OUT
VOUT3
49
Q3023
SUB5V
27
28
29
18
HP_ROUT
HP_LOUT
16
AV3_C
AV3_S
AV3_Y
8
AV3_V
12
6
AV3_L
10
3
1
AV3_R
AI_SENSOR
36
LED_G
25
23
ON_LED
SUB5V
SUB5V
SUB 5V
16
SD_DTC
SD_IRQ
SD V_IN
SD_RX
5
20
SD_TX
28
1
2
9
30
TO GS52
H52
6
SUB5V
24
29
SD V_OUT
SUB3.3V
AUDIO R IN
AUDIO OUT
12
AUDIO L IN
11
SD_RST
SUB5V
STB3.3V
27
SDA1
MAIN_DEF
2
STB 5V
SCL1
+9VS(S)
15 23
R_OUT
31
H50
MAIN 9V
3313
SDA1
35
RESET
+10VS(W)
HP_LIN
5
SP_SHORT
L_OUT
18
SCL1
+9VS(S)
17
TO Z50
HP_ROUT
621
+10VS(W)
MAIN 9V
11
+10VS(W)
HP_LOUT
29
HP_RIN
7
SP_MUTE
20125
+10VS
STB 5V
+9VS
HDMI_R
30
HDMI_L
28
SD_RXDO
26
25
SD_TXDO
23
SD_RST
SD_IDO
22
PC_HD
18
16
PC_G
14
PC_B
20
PC_VD
PC_R
12
Q2111
Q2110
SUB5V
IRD_LED
24
MODEM_LED
24
PV500B
ONLY
PV500B
ONLY
TH-37/42PV500E/B
H and TA-Board Block Diagram
TH-37/42PV500E/B
H and TA-Board Block Diagram
TH-42PV500E / TH-42PV500B / TH-37PV500E / TH-37PV500B
111

Table of Contents

Other manuals for Panasonic TH-42PV500E

Related product manuals