EasyManua.ls Logo

Panasonic TH-42PV500E - D-Board (5 of 6) Schematic Diagram

Panasonic TH-42PV500E
260 pages
To Next Page IconTo Next Page
To Next Page IconTo Next Page
To Previous Page IconTo Previous Page
To Previous Page IconTo Previous Page
Loading...
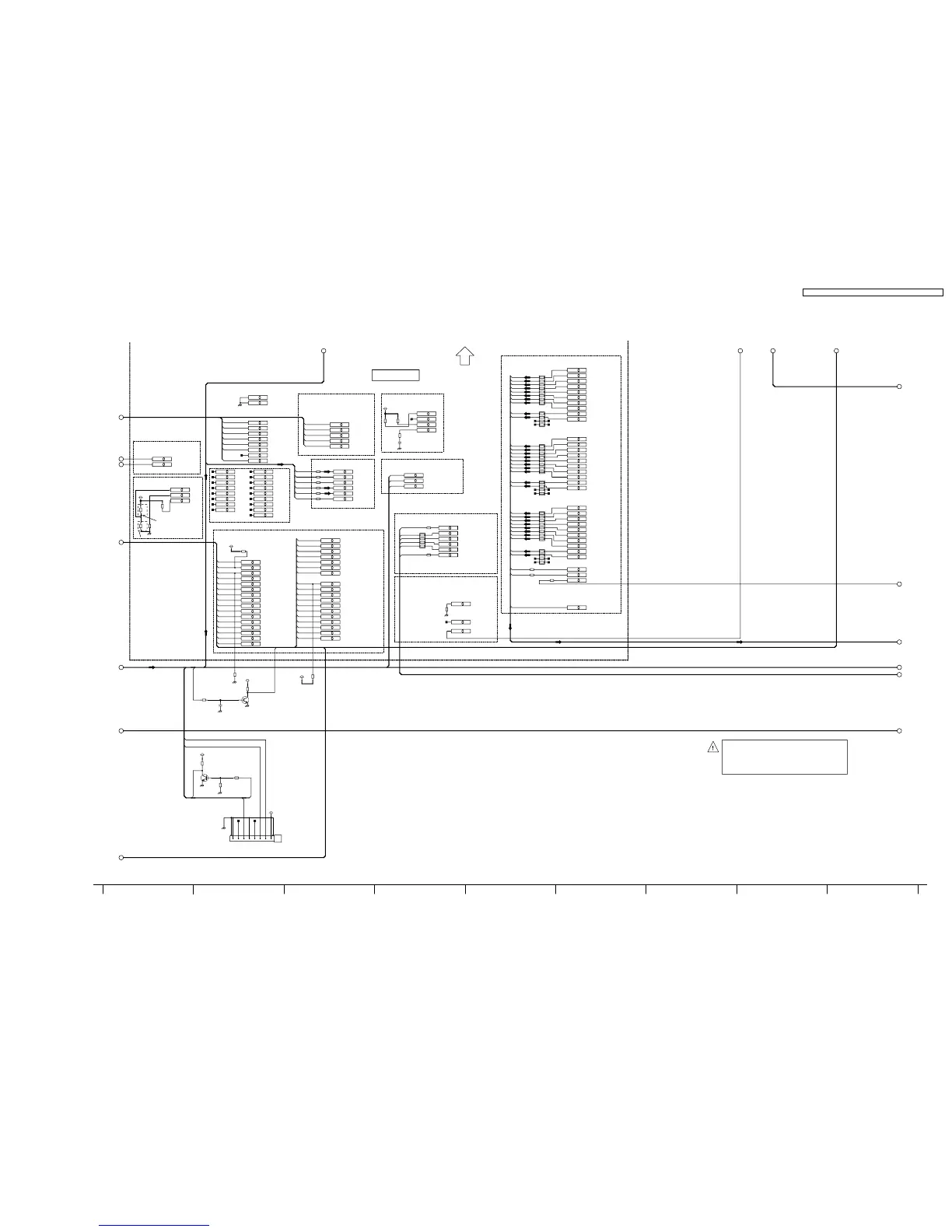
14.55. D-Board (5 of 6) Schematic Diagram
DRVRST_DATA
AA_BYTE
L8_R2
L8DO_UA19
L8_B3
L8DO_UB16
L8DO_UC21
L8DO_UA18
L8DO_UA11
L8_G8
L8_G0
L8_G3
L8DO_UA9
SFVRST
L8_B7
L8_G6
L8DO_UC12
L8DO_UA10
L8_B5
L8_G1
L8_R0
L8_R4
L8_R9
L8DO_UA16
L8_R6
L8_G4
L8_B2
L8DO_UA20
L8_HIN
L8_G2
L8DO_UC11 L8DO_UA17
L8_G5
L8DO_UC20
L8DO_UB11
NRST
L8DO_UC18
L8DO_UA21
L8_R1
L8DO_UC15
L8_B0
L8_B8
L8DO_UB21
L8_B9
L8DO_UC10
L8_B6
L8_VIN
FPDAT0
FPCLK
L8DO_UB17
L8_R7
DRVRST
L8_B1
L8DO_UA14
L8DO_UB18
SFRST
L8DO_UC17
L8DO_UB19
FPDAT1
LATCH
L8_R8
L8DO_UB20
L8DO_UA15
DRVMUTE
L8DO_UB15
L8_R3
L8_B4
AA_XOE
L8DO_UB10
L8_G9
L8DO_UC16
L8DO_UC19
L8_G7
PSTB
PDB1
PDB0
PSLCT
PBUSY
NCS
DATA0
ENHMASK
ASDIO
NCE
DCLK
AD_REMCON
REM_IN
NCONFIG
CONF_DONE
LED_R
LED_G
DRVRST_5V
AA_UCOM14
AA_UCOM15
AA_UCOM19
AA_UCOM18
AA_UCOM17
AA_UCOM16
L8_R5
AA_XCE
AA_XWE
AD_REMCON
IC9500 M5 DPCLK7
IC9500 B2 LVDS15p
R9133
4.7k
R9501
10k
IC9500 F12 DPCLK4
R9502
10k
IC9500 E9 IO
IC9500 F14 LVDS41nIC9500 H4 nCEO
R9509
100
IC9500 B10 LVDS28p
IC9500 D13 LVDS35p
IC9500
E6 VREF2B2
IC9500 J3 MSEL0
R9525
47
IC9500 P5 LVDS68n
IC9500 B13 LVDS32n
R9508
100
IC9500 C13 LVDS33p
IC9500 N6 LVDS67n
IC9500 G16 LVDSCLK2p
IC9500 K16 LVDS44p
IC9500 J15 TMS
IC9500 G14 LVDS43n
IC9500 L3 IO
R9507
100
IC9500 C14 LVDS35p
IC9500 D2 LVDS11n
IC9500 G4 nCSO
IC9500 M3 LVDS3n
IC9500 D7 LVDS22n
R9523
EXB2HV470JV
IC9500 L5 DPCLK0
IC9500 C7 LVDS22p
IC9500 A6 LVDS21p
IC9500 R2 LVDS71p
IC9500 E10 VREF1B2
R9521
EXB38V470JV
IC9500 A2 LVDS15n
IC9500 D14 LVDS37p
IC9500 F3 LVDS9p
R9519
EXB38V470JV
IC9500 C11 LVDS29n
IC9500 F13 LVDS41p
IC9500 C15 LVDS36p
IC9500 M13 LVDS48p
IC9500 B11 LVDS29p
IC9500 B15 LVDS34n
R9131
4.7k
IC9500 T2 LVDS71n
IC9500 K5 VREF2B1
R9520
EXB38V470JV
IC9500 E7 IO
IC9500 H2 DATA0
IC9500 M16 LVDS46p
IC9500 T6 LVDS65p
IC9500 M14 LVDS47n
Q9011
B1ABCF000138
IC9500 A11 LVDS28n
3.3V
IC9500 B12 LVDS31n
R9537
10k
IC9500 D16 LVDS39p
IC9500 K2 PLL1_OUTn
IC9500 L14 LVDS45n
IC9500 G12 VREF0B3
R9524
47
IC9500 E16 LVDS40p
IC9500 E13 LVDS37n
IC9500 E15 LVDS39n
IC9500 K14 IO
R9534
10k
IC9500 H12 VREF1B3
IC9500 K15 PLL2_OUTn
IC9500 K4 DCLK
IC9500 E11 VREF0B2
IC9500 R6 LVDS66n
R9529
47
IC9500 G3 LVDS9n
R9505
100
IC9500 D15 LVDS38n
IC9500
D6 LVDS19n
IC9500 M15 LVDS46n
IC9500 N2 LVDS3p
R9536
68
IC9500 B8 LVDS23p
IC9500 A9 LVDS26n
R9528
47
IC9500 G13 LVDS43p
IC9500 G15 LVDS42n
IC9500 B9 LVDS26p
IC9500 H15 TDO
D8
1
2
3
4
5
6
7
8
IC9500 J4 nCE
IC9500 J14 TCK
IC9500 A15 LVDS34p
IC9500 P6 LVDS66p
STB3.3V
IC9500 H14 TDI
IC9500 E5 DPCLK2
R9081
10k
IC9500 C6 LVDS20p
R9526
47
IC9500 L13 LVDS47p
IC9500 R4 LVDS69p
IC9500 E8 LVDS24n
IC9500 R15 LVDS52n
IC9500 B5 LVDS18p
IC9500 F16 LVDS42p
IC9500 D5 LVDS19p
IC9500 R3 LVDS70p
IC9500 C12 LVDS31p
IC9500 L16 LVDS44n
R9132
4.7k
IC9500 B3 LVDS16p
IC9500 A8 LVDS23p
IC9500 P14 LVDS51p
IC9500 B6 LVDS20n
R9538
10k
3.3V
R9527
EXB38V470JV
R9522
EXB2HV470JV
IC9500 H3 nCONFIG
R9506
100
IC9500 D8 LVDS24p
IC9500 K3 ASDO
IC9500 N5 LVDS67p
IC9500 F15 LVDS40n
IC9500 J1 PLL1_OUTp
IC9500 D9 LVDS25n
IC9500 L15 LVDS45p
IC9500 K13 CONF_DONE
IC9500 C10 LVDS27n
Q9010
B1ABCF000138
IC9500 A13 LVDS32p
IC9500 H13 IO
IC9500 D10 LVDS27p
IC9500 B16 LVDS36n
IC9500 T15 LVDS52p
IC9500 E14 LVDS38p
IC9500 D11 LVDS30p
IC9500 C5 LVDS18n
R9510
100
R9503
10k
IC9500 R5 LVDS68p
IC9500 D12 LVDS30n
IC9500 C8 LVDS24n
IC9500 T4 LVDS69n
P5V
3.3V
IC9500 E12 DPCLK3
C9519
50V
100p
R9518
EXB2HV470JV
IC9500 J16 PLL2_OUTp
R9080
22k
STB5V_M
IC9500 C9 LVDS25p
IC9500 R14 LVDS53p
IC9500 B7 LVDS21n
IC9500 L4 IO
IC9500 K12 VREF2B3
IC9500 B14 LVDS33n
IC9500 J2 MSEL1
IC9500 P4 LVDS70n
C9013
50V
0.01u
R9533
10k
R9543
10k
IC9500 G5
VREF0B1
IC9500 F4 IO
IC9500 E4
LVDS12n
3.3V
R9531
10k
R9530
10k
F_ADRS19
M_GOUT9
M_GOUT5
M_BOUT0
NRST
M_ROUT9
F_ADRS15
FPCLK
DRVRST
M_ROUT7
F_ADRS3
FPDATA0
M_BOUT1
F_ADRS2
M_GOUT4
F_ADRS11
DRVMUTE
F_ADRS7
F_ADRS4
FPDATA1
OSDCK
F_ADRS18
F_BYTE
M_GOUT3
F_ADRS10
SFRST
OSDG
F_ADRS8
LATCH
MODEL[1]
F_DATA6
M_ROUT3
F_ADRS20
MODEL[0]
M_ROUT6
F_ADRS17
SDA
M_GOUT1
OSD
SCL
F_DATA7
RESET
Flash_Control
M_ROUT2
LSI58
M_ROUT1
M_ROUT5
SFVRST
F_DATA1
F_ADRS16
F_DATA5
F_ADRS13
F_DATA0
F_ADRS5
M_GOUT6
F_DATA4
F_OE
ROM58AD[2]
PICTURE_OUTPUT
F_DATA3
F_CE
NC
IIC
F_DATA2
F_ADRS0
CONTROL
ROM58AD[1]
M_ROUT4
ROM58AD[0]
M_ROUT8
M_ROUT0
M_GOUT2
M_BOUT3
M_BOUT4
M_GOUT8
MODEL[2]
OSDHD
F_ADRS-1
M_BOUT5
JTAG
OSDVD
F_ADRS9
M_BOUT6
OSDB
M_GOUT0
M_DCKO
F_ADRS14
M_HDO
M_BOUT7
OSDR
F_WE
F_ADRS1
M_VDO
M_BOUT8
M_GOUT7
M_BOUT9
MODEL SELECTION
F_ADRS6
M_BOUT2
F_ADRS12
STB5V
LED_G
LED_R
KEY_SW
CPU_GND
REMOCON
OPT
GND
MASK
p_db1
p_db0
p_stb
p_slct
p_busy
PRCKI
FREE-RUN CLK
PRCK_OUT
11 1615141210 1713 18
(2/6)
TO
D-BOARD
37
31
36
34
35
32
33
45
46
43
41
44
42
AB ADAA AC
FPGA/SYNC/OSD
C1ZBZ0002599
DISCHARGE CONTROL
IC9500
NO USE
37inch ONLY
42inch ONLY
D-BOARD (5/6)
TXN/D2XRSE (42inch)
TXN/D2XSSE (37inch)
TH-37/42PV500E/B
D-Board (5 of 6) Schematic Diagram
TH-37/42PV500E/B
D-Board (5 of 6) Schematic Diagram
TH-42PV500E / TH-42PV500B / TH-37PV500E / TH-37PV500B
149

Table of Contents

Other manuals for Panasonic TH-42PV500E

Related product manuals