EasyManua.ls Logo

Panasonic TH-42PV7MR - D-Board Block Diagram

Panasonic TH-42PV7MR
135 pages
To Next Page IconTo Next Page
To Next Page IconTo Next Page
To Previous Page IconTo Previous Page
To Previous Page IconTo Previous Page
Loading...
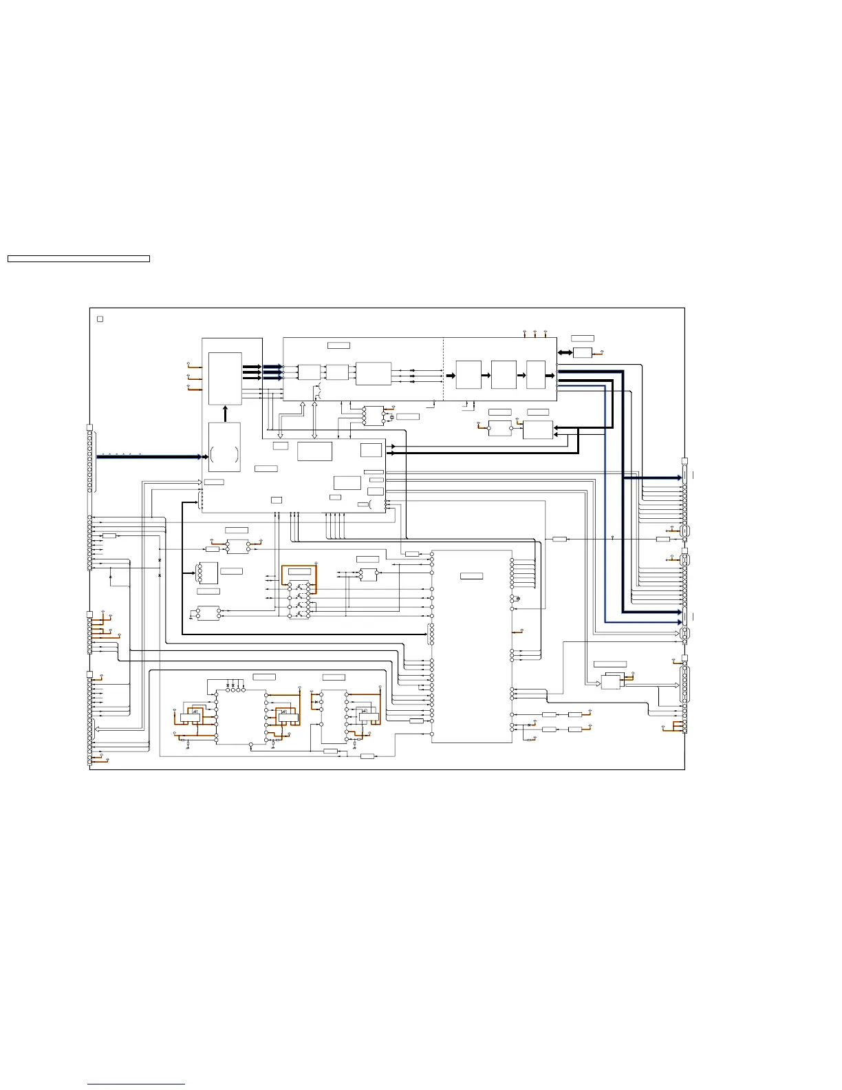
15.30. D-Board Block Diagram
TXD_PC
RXD_PC
PANEL_MAIN_ON
ALARM
READY
RXD_PC
IIC_INT
TXD_PC
RXD_PC
SOS8_SS
ALARM
LED_R
REMOCON
IIC_CONT
TXD_PC
VDATA_DET
VDATA_DET
SOS6_SC1
SOS7_SC2
SOS7_SC2
SOS6_SC1
PCD3
SOS4_PS
LED_R
LED_G
REMOCON
LED_G
SOS4-PS
PCD1
PCD2
ODED1
ODED2
PCD4
CLRD2
READY
PANEL_MAIN_ON
SOS9_CONF
FVSEL
LVDSBIT
FVSEL
SOS9_CONF
LVDSBIT
OSD_YS
OSD_VO
OSD_HO
OSD_CLKO
OSD_B
OSD_G
OSD_R
IIC_CONT
INEXCH
DRVCLKD0
DRVCLKD3
DRVCLKD1
DRVCLKD2
LED1
LED2
DRVCLKU1
DRVCLKU2
DRVCLKU3
DRVCLKU0
CLRD1
STB_SCL01
STB_SDA01
STB_SCL02
STB_SDA02
OSD_R
OSD_G
OSD_B
OSD_CLKO
OSD_YS
INEXCH
IIC_CONT
DRVMUTE
X9200
TP9101
TP9100
TP9010
P+3.3V SOS / LED BLINKING : 3TIMES
P+5V SOS / LED BLINKING : 5TIMES
P+15V SOS / LED BLINKING : 2TIMES
LED BLINKING : 4TIMES
POWER SOS
R 10bit
Scan Control DATA 16bit
G 10bit
B 10bit
B 10bit
R 10bit
Sustain Control DATA 7bit
G 10bit
14
40
PROCESSOR
DRIVER
TO C11
TO C21
30
50
49
33
29
TXD1
32
RXD1
IIC_CONT
IIC_CONT
LVDS INPUT
DISCHARGE
CONTROL
IIC1_SDA
70
IIC2_SCL
69
67
71
Voltage
66
IIC2_SDA
43
2
IC9500
1
FPGA
LSI_RST
XRST
SUB-FIELD
PLASMA AI/SUB FIELD PROCESSOR/PEAKS DATA DRIVER
IC9003
IC9303
MICOM
XIN
XOUT
X9000
9.216MHz
IIC1_SCL
Video DATA 48bit(DA00-DC13,DB14-DC15)
Low
ROMDATA04-15,ROMADDRESS00-20,(UA05-UC15)
D32
D31
55
1
SOS7_SC2
93
91
90
SOS8_SS
36
READY
ALARM
37
DRVMUTE
IC9011
IIC_CLK1
IIC_DATA1
23
18
ALARM
19
21
DISPEN
READY
PANEL_STBY_ON
20
24
RXD
TXD
6
D5
RA+
RCLK-
14
TO DG5
RC-
7
15
11
12
RD-
10
3
RB-
1
9
RE-(LSB)
2
RA-
RCLK+
RD+
RB+
4
RC+
STBY5V
+5V
D25
VDATA_DET
6
PANEL_MAIN_ON
1
+5V
5
2
+15V
+15V
11
13
9
TO P25
RXD
13
14
8
6
TXD
7
SDA1
PDB0
4
PSTB
5
IIC_INT
11
PSLCT
PBUSY
9
D6
SCL1
12
15
LED_R
PDB1
17
16
LED_G
st-r
IC9900
CONVERTER
XRST
CTI/TINT
WB-ADJ
I/P
COLOR
FORMAT CONVERTER/RGB PROCESSOR
CONVERTER
CONTRAST
FORMAT
Differential
Signaling
RECEIVER
FPGA
SOS4-PS
92
PANEL_MAIN_ON
100
P_ON/OFF
P3V_SCL02
P3V_SDA02
TO SC20
D20
2
12
14
19
SCAN
DATA
15
16
1
P5V
48
46
5VDET
53
55
3
SOS6_SC1
SUSTAIN
DATA
47
53
3
1
SS_SOS8
P3V_SCL1
P3V_SDA1
P15V
P5V
STB5V_M
NRST
DRV_RST
DATA DRIVER
16/32M FLASH MEMORY
RESET
45
VOUTVCC
IC9502
RESET
P3.3V
SS PULSE
SCAN OUT
SC PULSE
6
UMH,UML,USH,USL,UEH,NUEL(URH)
OC1,OC2,CLK,SIU,SID,SCSU,CPH1,CPH2,(LAT),CEL,(CBK)CSL,CSH,CML,CMH,SC_DRV_RST
IC9901
DDR SDRAM(128M)
Q9302 Q9301
CLK7
12
CLK5
CLK6
14
13
4
CLK9
XT
1
20
XTN
IC9200
PCK OCK
D
P5V
CONTROL
STBY5V
P15V
21
19
IC9007
NCS
ASDIO
DATA 0
DCLK
P5V
86
SOS3_3V
SOS2_15V
85
87
SOS5_5V
Q9054 Q9053
Q9052 Q9051
P5V
P15V
STB3.3V
PROM(FPGA)
CLOCK GENE.
DIGITAL SIGNAL PROCESSOR
PLASMA AI
SUB-FIELD PROCESSOR
FOR
FACTORY
USE
P5V
P5V
DRVCLKD0-D3
24bit
(DA00-DC07)
20bit
ODED1,ODED2,CLRD1,CLRD2,PCD1,PCD2,PCD3,PCD4,LED1,LED2
(LSI58 COMM)
TDO,TDI
TMS,TCK
JTAGDCK
HD
VD
JTAG
PD1-Mplus
FPCLK
FPDAT0
FPDAT1
SFVRST
LATCH
SFRST
R0-R9
G0-G9
VD
B0-B9
HD
DCK
PICTURE
OUTPUT
LVDS
LVDS RECEIVER
SYNC PROCESSING
WB ADJ
DISCHARGE CONTROL
FLASH CONTROL
FPGA CONTROL
CONTROL
RESET
CONTROL
FLASH
CLKM PRCKI
-IN
17
Q9044
IIC_CLK2
27
26
IIC_DATA2
IIC_CONT/C_SEL
31
IC9001
6
5
32k EEPROM
SDA
SCL
7
WP
35
EEP_WR_CTL
P15V
STB5V_M
REMOCON
18
15V->2.5V
OUT2
G2
13
S1
20
D1
OUT1
17
D2
21
12
D1D2
VO
23
16
15
LX
VB VCC
VDD
19
G1
IC9806
S2
DC-DC CONVERTER
24
FB
-INC
8
CTL
CB
P15V
P2.5V
Q9805
Q9806
7
NCS
DATA
ASDI
DCLK
10
IIC_CONT
1
2
STBY3.3V
STB3.3V
SDA2
SCL2
VDATA_DET
84
NCS
26
27
ASDIO
28
DATA0
DCLK
29
1
VOUT
RESET
34
VDD
CE
6
STB5V
Q9046
STB3.3V
72
RESET
Q9050
XRST
SOS9_CONF
10
DRVRST
PLASMA AI
NEW
DATA
ROMDATA00-03
DQ4-DQ15
A0-A19
DQ0-DQ3
ROMDATA00-03
ROMDATA04-07/ROMADDRESS00-20,-1,CE,OE,WE,BYTE
4bit
SOS4_PS 12
XRST
54
LED_R
REM_IN
53
34
LED_G
Q9010
INEXCH
RA
,RB ,RC ,RD ,RE ,RCLK
RE+(LSB)
STB_SCL02
STB_SDA02
STB_SDA02
STB_SCL02
OSD
SC_SOS6_SC1
SOS7_SC2
P3.3V
STB_SDA02
STB_SCL02
P3V_SCL1
P3V_SDA1
1
2
5
6
D9811
DCDC_ON
Q9809
VB1_5V
VCC
OUT2-2
G2
25
20
S1
26
D1
-INC1
D1D2
4
FB1
P15V
P3.3V
VO1
3
24
Q9807
D2
23
OUT1-1
G1
7
IC9805
S2
DC-DC CONVERTER
15V->1.2V,15V->3.3V
LX1
OUT1-2
Q9808
D2
G1S2G2 S1
D1D1D2
P15V
P1.2V
DOUTDC15
DOUTDA8
PC1_C1(PCD1)
LE_C1(LED)
ODE_C1(ODED1)
PC2_C1(PCD2)
(DA14,DA15-DC15)
47
49
P5V
7
8
9
(DA14,DA15-DC15)
FORMAT CONVERTER
STB 3.3V/RESET
P1.2V
P2.5V
P3.3V
OSD_HD
OSD_VD
36.6MHz
60MHz
20MHz
84MHz
D9802
NCS_FPGA
INEXCH
P15V_MOTO
D9804
STB3.3V_ON
6
SDA
SCL
1
3
A1
A0
5
IC9002
DIGITAL
TEMPERATURE
SENSOR
SCL
SDA
IIC
P3V_SCL01
P3V_SDA01
P3V_SCL02
P3V_SDA02
11
13
12
8
10
9
2
1
6
3
4
5
IC9013
IIC SWITCH
DRVCLKU0-U3
P2.5V
P2.5VP1.2V P3.3V
LVDSbit
FVSEL
K_DONE
5
LVDSBIT
30
FVSEL
23
OSD_CLK
16
OSD_YS
17
OSD_B
OSD_G
18
19
OSD_R
OSD_VD
20
OSD_HD
21
42
INEXCH
18
22
26
20
SC_DRV_RST
+15V
P15V_MOTO
30
29
+15V
28
+15V
3.3V->5V
LEVEL CONVERTER
IC9802,03
P5V
P3.3V
CLK1N_C1(CLK(1)(-))
CLK0P_C1(CLK(0)(+))
CLK2P_C1(CLK(2)(+))
CLK3N_C1(CLK(3)(-))
3
5
42
44
5
CLK3N_C2(CLK(3)(-))
CLK2P_C2(CLK(2)(+))
11
CLK0P_C2(CLK(0)(+))
13
CLK1N_C2(CLK(1)(-))
45
43
SC_DRV_RST
50
CLR_C1(CLRD)
14
VCC
STB3.3V
16
CTL
11
FB2
VO2
12
8
-INC2
19
LX2
OUT2-1
18
30
OVP
27
CB1 CB2
17
VB
21
FSW
10
OSD_YSI
OSD_BI
OSD_GI
OSD_RI
OSD_CLKO
(FREE_RUN)
P3V_SCL02
P3V_SDA02
SCL SDA
P3.3V
Control DATA 10bit
STB3.3V
NCS_FPGA
52
DCDC_ON
CE,OE,WE,BYTE
DOUTDA0
DOUTDC7
15
41
ODE_C2(ODED2)
PC3_C2(PCD3)
CLR_C2(CLRD)
LE_C2(LED)
PC4_C2(PCD4)
(DA08-DC13,DB14,DC14)
TH-42PV7AZ/HS/M/MR, PX7A
D-Board Block Diagram
TH-42PV7AZ/HS/M/MR, PX7A
D-Board Block Diagram
TH-42PX7A / TH-42PV7AZ / TH-42PV7HS / TH-42PV7M / TH-42PV7MR
82

Table of Contents

Related product manuals