EasyManua.ls Logo

Panasonic TH-42PX60U - SS-Board Block Diagram

Panasonic TH-42PX60U
210 pages
To Next Page IconTo Next Page
To Next Page IconTo Next Page
To Previous Page IconTo Previous Page
To Previous Page IconTo Previous Page
Loading...
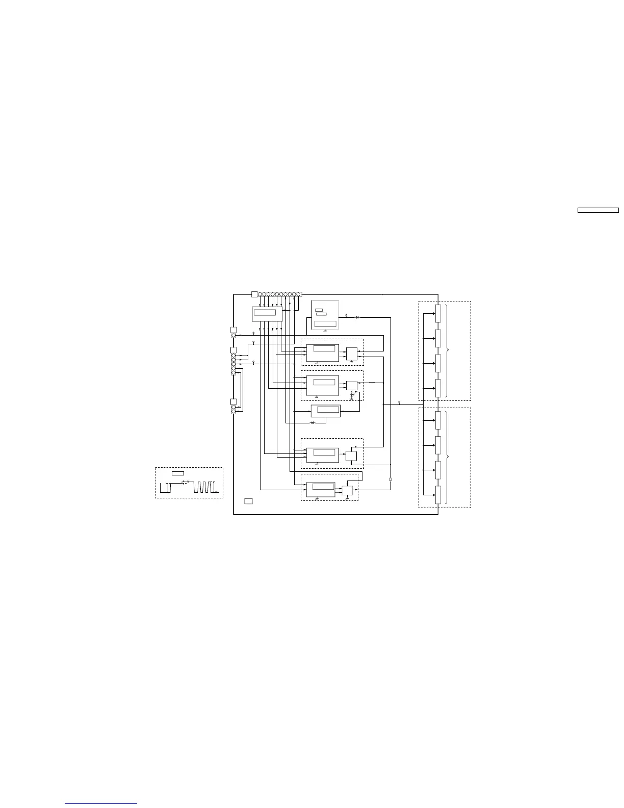
14.75. SS-Board Block Diagram
D6221
TPVSUS
D6253
TP15V
TPSS1
TPVE
TPVDA
D6255
R6113
Q6051,Q6052
Q6141-Q6142
+15V
DRIVER
LED(G)
FET DRIVER
VCC
FET
SS
IC6191
TPSS1 SIGNAL WAVE
1
Q6103,Q6104
4
Vsus Gen.
STB PS
34
Q6021-Q6023
VCC
Vda
Q6001-Q6003
SS_SOS8
OUTPUT
VSUS
TPSS1
VE
1
2
8
STB12V
VCC
Vda
DRIVER
TO C23
Ve Gen.
VCC
10
VCC
3
IC6251
STB PS
IC6131
12
Ve2
BUFFER
FET
IC6241
P12
SS
57
11
38
12
1246
23
SS
Adj.
(+150V)
VE Gen.
TPVE
IC6221
Q6221,Q6222
VR6000
ENERGY RECOVERY
FET
OUTPUT
FET
COMPARATOR
OUTPUT
FET
SS
SUSTAIN DRIVE
Vsus
11
SS
1
TO P11
NO USE
UMH
UEH
SS_SOS8
5V
Vda
Vda
NUEL
USH
USL
UML
Q6146-Q6147
IC6151
Q6041,Q6042
L6011-L6013
L6001-L6003
VCC
FET
OUTPUT
IC6211
(+5V)
IN
Q6112,Q6114
Ve2 Gen.
FET DRIVER
SUSTAIN
ELECTRODE
PA NE L
SS43A
SS41A
SS44A
SS42A
SUSTAIN
ELECTRODE
PANEL
SS43
SS41
SS44
SS42
37INCH
42INCH
STB12V
Q6101,Q6102
Q6111
LED BLINKING : 8 TIMES
ENERGY RECOVERY SOS DET
TH-37/42PX60U
SS-Board Block Diagram
TH-37/42PX60U
SS-Board Block Diagram
TH-37PX60U / TH-42PX60U
149

Table of Contents

Other manuals for Panasonic TH-42PX60U

Related product manuals