EasyManua.ls Logo

Panasonic U-100PE1E5A - Page 473

Panasonic U-100PE1E5A
659 pages
To Next Page IconTo Next Page
To Next Page IconTo Next Page
To Previous Page IconTo Previous Page
To Previous Page IconTo Previous Page
Loading...
3-19
3
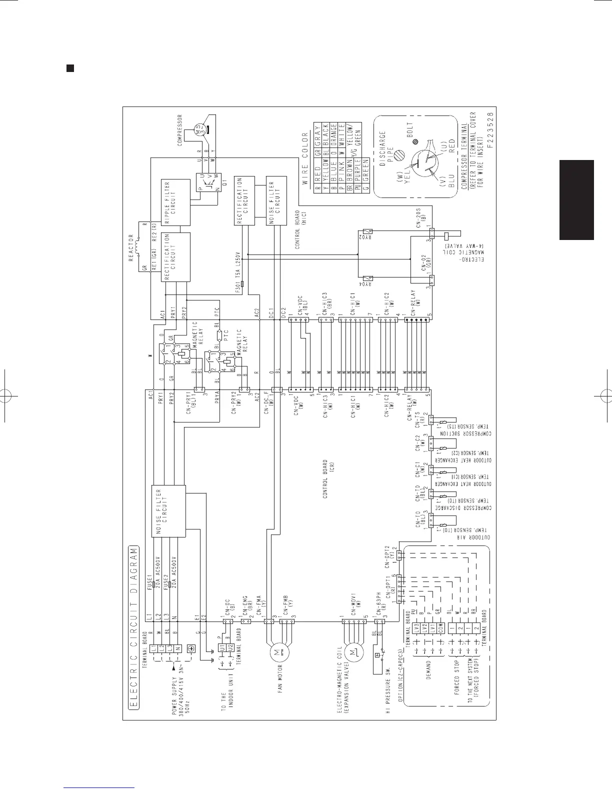
3-2. Outdoor Units
3-phase U-100PEY1E8 / U-125PEY1E8
SM830231-00Single欧州.indb19SM830231-00Single欧州.indb19 2014/06/2014:26:412014/06/2014:26:41

Table of Contents

Other manuals for Panasonic U-100PE1E5A

Related product manuals