EasyManua.ls Logo

Petter AB1W - Page 56

Default Icon
58 pages
Print Icon
To Next Page IconTo Next Page
To Next Page IconTo Next Page
To Previous Page IconTo Previous Page
To Previous Page IconTo Previous Page
Loading...
55
(e) Solenoid
The solenoid should move freely and contact faces be clean and
unburnt Do not attempt to clean the solenoid without disconnecting the
battery
Dynamo and instrument box
(a) Mounting
(i) The dynamo and instrument box must be installed as close to the
engine as possible
(ii) The framework containing the engine and dynamo must be of
sufficiently rigid construction as to prevent any movement
between the engine and dynamo when running This is
particularly important when anti-vibration mountings are used
(iii) IT IS IMPORTANT that the driving and dynamo pulleys are in line
and parallel with each other to within 0.020in (0.50mm). Pulley
alignment may be checked by placing a Straight edge across the
pulley faces The distance between pulley centres to allow for
belt removal and replacement should be 11 in (279mm) A further
11/16 in (17.5mm) is required for tensioning the belt. If further
adjustment is found necessary the belt must be replaced
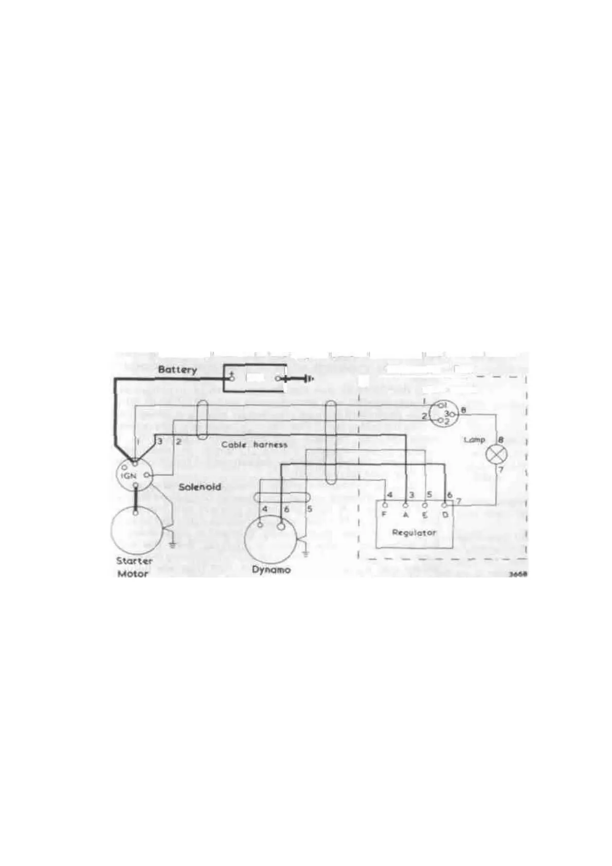
Instrument Box
fig. 23
.
1 Brown 14/0.25mm 0.75mm
2
(14/0.010 in)
2 White/Red 14/0.25mm 0 75mm
3
(14/0.010 in)
3 Brown 28/0 30mm 2 Omm
2
(28/0.012 in)
4 Brown/Green 14/0.25mm 0.75mm
2
(14/0.010 in
5 Black 14/0.25mm 075mm
2
(14/0.0I0 in)
6 Brown/Yellow 28/0 30mm 2 Omm
2
(28/0.012 in)
7 Brown/Yellow 14/0 25mm 0 75mm
2
(14/0.0I1 in)
8 White 14/0.25mm 0 75mm
2
(14/0.010 in)

Related product manuals