EasyManua.ls Logo

Philips CDI 220/31 - Page 33

Philips CDI 220/31
55 pages
Print Icon
To Next Page IconTo Next Page
To Next Page IconTo Next Page
To Previous Page IconTo Previous Page
To Previous Page IconTo Previous Page
Loading...
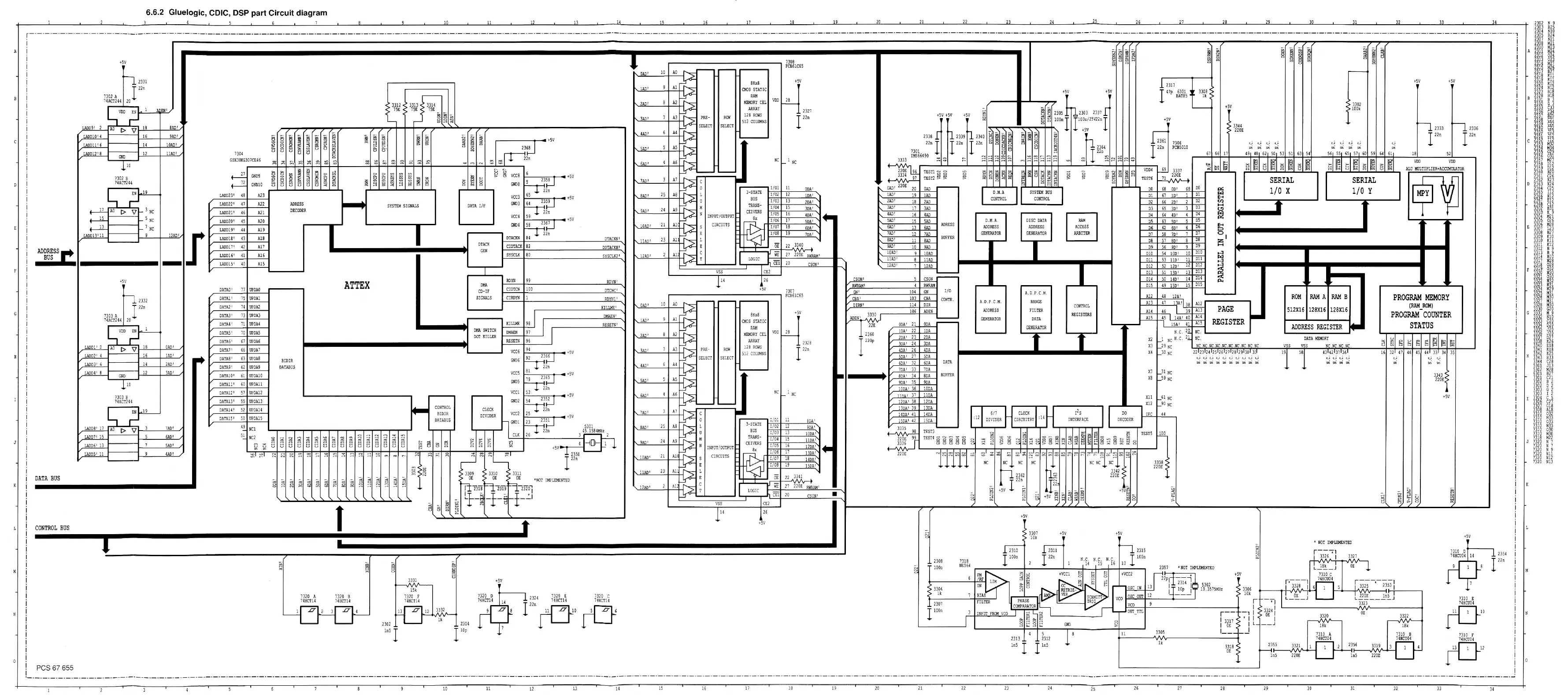
6.6.2 Gluelogic, CDIC, DSP
part
Circu
it
diagram
11
21
22
24
31
r-·-----------
---
------
-------------
----
--
---
-
---------
-------------
---
-------
-------
----------------------------------
--
---------------
-----
-
-------
--
---
-------
-------
---
-----------
--
-------
---------------
---
---- - --
---,
i
i
i
i
i
ADDRESS
r
BUS
DATA
BUS
CON
T
ROL
BUS
PCS
67
655
LADD91
2
LADDlO!
4
LADDll'
6
LADDl2'
8
V
+IV
1
2331
1
302
A
14ACT244
20
I
22n
L,
VDD
~L
I
EN
'
AO
C>
,;,
...._.
1~8
--+-~
8
=
AD
~
!
GNO
1
10
13
02
B
14ACT24
16
9AD!
14
lOAD!
12
llAD!
7304
GSX38KGJ
0
1CE46
L,
ES
1,-li---
LAOD2l'
48
AlA2
2
3
r
LADD22'
41
+---11-
AO
C>
'7
-
J
NC
LADD2
1'
46 All
+--1,L
-
S
NC
LAOD20'
45
Al0
~
-
l
NC
V
I.ADDI!'
44
Al!
LADD13
1
11
--~
'
--+_
~
1~2AD
='·
1
I ,
.,._
:_
:~
_:_: _:_:
t-_
::
_:
.....
+IV
n
2332
T
22n
1303
A
l
14ACT244
20
L,
VDD
~
1
.,.=
LAD
=D~l~' ~2
-,
AO
C>
,;,
f--'
1"-8-
-+_
0
~AD~•
~
I
LADD
2
1
4
16
lAD
1
LAD03
1
6
14
2AD
1
LAD04
1
8
GND
12
3AD
1
1 10
7303
B
14ACT244
L,
EN
19
LA008'
17
AO
C>
,;,
,-
~3
__
_ 1~
AD~•
~·
~
1
U.00
11
15
LADD6
1
13
LADD5
1
11
I
5
6AD!
7
5AD
1
4AD
1
LADD16
1
41
A16
I.ADDIS'
40
AIS
DAT
A
O'
11
IJPDA0
O
ATAl
'
75
UPOAl
DATAl'
74
UPDAl
OA?Al'
73
UPD
AJ
DATU
I
H
UPDA4
DA?
AS
'
70
IJPOAS
DAT
A6
1
67
UPDA6
0A1A7
1
66
UP0A7
..
I
~-'-DA-'-IA-'
8-'
__
il
-+-
UP
_D_A_S
--1
0ATA9'
62
UPDA9
DATA10
1
61
UPDAlO
DATAl
1
1
60
UPDAll
OATA12
1
57
UPOA12
DATA13
1
55
IJPOA!l
0ATA14
1
52
UPDA14
DATA15
1
50
UPOA15
ADRESS
DECODER
B!DIR
DATABDS
....
ATTEX
l
I
1320
A
1320
B
14HCT14 14HCT14
~
<:,
m2
<i;
3313
'>
33
14
<
lSE
>
15
E
>
15E
z
iii - ·
IHl!:J
-
SYSTEM
SIGNALS
...
1331
lsk
1320
F
1
4HCT14
C0
NT
ROC
Bl0
IR
DATAB
liS
,------~-
+sv
23
~
:::
:::
rr-1
2•
DATA
I/ F
DTACK
GEN
OMA
CD-lF
SIGNALS
OMA
SWITCH
DOT
KILLER
CLOC
K
DIVIDER
VCCS
1-
6
--="'"""-4
+SV
s
2358
I
GNDS
~
I-'
..
..1-
22n
VCCl
1-
6
_
5
_.....,
=
...,.
......
tSV
GNDJ
VCC4
GNDI
OTACKN
CIDTACK
64
2
;;:J
~
2n
1-
5
-'-.....,=----
t
SV
58
2
;~
~
2n
84
82
SYSCLJ<
80
RDYN
99
C!DTCN
100
C!
RDYN
I
KIWO:
DMAEN
RESETN
,a
I I
91
I
96
VCC6
f-
'-
4
-.....,=
----
+sv
91
2366
I
GND2
VC
C2
GND6
~
I-'
""
..1-
22n
VCC5
>-
B_l
_~~-+---
+5V
19
ms
l
GNDS
-'-1"--l
t-'
" .J,
21n
V
CC
l
f-
S_l
_~
=
----
+SV
54
2
;;'.J
~
2n
>-
2_5
_~=----
+SV
DTACKNI
DO
TA
C
KN'
SYSCLIC2
1
RDYN
'
DTCNC
1
ROY?Jll
KILOO'
OMA£~•
RES&TN'
~
GNDI
13
2
\!:.J
.........
-......
tT1
2n
4l
3
neum,
C
LX
26
l 2
~~
--+--------t
4
-IOI-
I
+sv
~ I
2350
I
12.
,
JJ09
>
mo
>
im
,
OE
>
OE
>
OE
NOT
IMPLEMENTED
1!1
1iia
fi
2m
n_
7rro
7
;;
Lt
-~
-f
-~"--
J
_.'..
I
~
1310
D
1
4HCT14
t
+SV
T
1310
C
HHCT14
13
D
.,.__
12
_..,
.l'illll
\1
1~
_,
lk
..
14
D
8
23
02
1304
lnS
I
I
!O
p
,------------------,
m!im
I '--""
0AD,
"'-
'
__
10
-+_
A_O
-,p
.--
..-
lAD!
Al
p
A2
~
l
'--~
JAD
...._
__
1
-+-
~-+-tl.f-,s;-
PRE
·
W'
SE
LEC
T
SELECT
A4
~
AS
~
A6
12
2AD!
4AD
!
SAD'
6AD'
ROW
e..:l
.--
---
8Kx8
OIOS
STATIC
RAM
+sv
MEM
ORY
CEL
VDD
-2!..._
ARRAY
12
8
ROW
S
512
COLUMNS
2321
I
22.
NC
_ 1
NC
1'---"
lAD
,._'
__
J
-+_
A_J
-H~
~
1
~=
SAD
= '
__
15
-+_
A_B
....,~
~
9AD'
24 A!
L.f'-s:;
M
1
~=
---+--+-<W'
N
!l!POT
/O
OTPOT
I
,~
l0
~AD~
__
21
-+_
A_
ll
-H~
:
CIR
CO
ITS
l
/0
8
19
7D
A'
I
,~
ll
~AD~•~
_
2l
-+_
A_l
-H
p
~
I
,~
12
~AD~•--2
-+_
A_l
-HPL...
~
.L..---.1
L
OG
IC
l,
ffi
20
CS0N'
vss
I
C£1
'--+
--
--"'
=-
--•
-...
L-------..-------+-----'
1 14
!
26
+IV
22
334
0
r
WE
27
"
2;0;
RWIW!'
tSV
+SV
+
5V
+5V
+SV
~
~
s
2ios
1,
2io1
1ii1
I
"'
....
,.......,,---,,...,...-
ii
.,.
i;
-+-
l,
OOn
I
r ::;25V2
1n
I
1Jl8
r
1339
1
2340
a
~
~ ~ ~
j
a
~
JJ33
i::m:2•
~
- r
2~
r 2•
~
8 J : : -: --
!
~
TESTl
8
ci
t-
~
3
11!v
34
'\r-~
'1,
TEST2
!a! !a!
O
AD'
21
0E
20
0AD
-
}ADI
19
lAD
2
AD
1
18
2AD
lAD'
11
JAD
4AD
1
16
4AD
1
'--
--,
:.n
,.,,
AD
,..,
:
--~
:~:
+~
::
~-t
ADRESS
7AD
1
12
7AD
, -
...,
8~
AD
""'
!
--~
l~l
-+-
~
8AD
~~
B~FER
9AD!
10
9AD
l0AD
!
9
l0AD
llAD' 8
llAD
12AD
1
7
12AD
-
C
SON'
5
CS
ON
-
RWRAM
1
4
RWRAM
GN'
104
GN
1/0
~
~
t1
a
~ ~
;
8
8 5
.......................
I
0.H.A
SYSTEM
BUS
CONTROL
CONTRO
L
0.H.A.
ADDRESS
GENERATOR
DISC
DATA
ADDRESS
GENERATOR
A.0.P.C.H.
RAH
ACCESS
ARBI
TER
l
2111
I
47p
6301
r
BAT85
33
08
<
lk ,
-
+sv
I
[i:
1306
PC
B50
10
+S
V
<:,
3344
>
22
0E
I
12•
61 66
11
VD0I
,._l!
3331
TEST6
11
}~
OE
00
DI
D2
OJ
DI
05
06
01
08
D9
010
D11
012
DI]
014
015
vv
68
00
1
67
lD
!
66
20
1
65
JD
!
64
40
1
63
<0
1
62
60'
58
70!
57
8D!
56
9D!
54
10D'
53
llD'
52
110'
51
l
lD
'
50
14D'
49
150'
68
00
01
D2
DJ
DI
OS
D6
01
08
09
10
D10
11
011
12
012
1J
D1
3
14
01
4
15
D15
u u u u
:ae
z
::;;e
:z;
49
1 481
62
1 501
SJ
51
63
54
SE
RIAL
1
/0
X
...
~ ~ ~ ~
~
:z;
::;;e
:z
56
1
55
1
65
1
57
1
60
59
64
61
1
SER
I
AL
1
/0
Y
+sv
+s
v
n 23JJ
1
2336
r
2•
r
2•
18
51
VDD
\/DD
AL
O
HUL
T
IPL
!
ER+ACctlMULATOR
'
.
1301
~----------------,
F
CB61C65
l
'--"
OAD
,._'
_ _
10
-+_
A_O
-l
p
.-- .--
l
r"'
r1
B.,A_
'
------~
l~
Ol
+~
C~
BA
'---1
CO
NTR
.
A.0.P.C.H.
RANGE
FILTER
DAT
A
A12
48
12
A!
ROM
A
ll
41
llA'U!..
A12
RAM
A
RAM
B
PROG
RAM
MEM
ORY
(
RAM
_
ROM
)
!AD'
1AD
1
Al p
Al
~
,
,~
JAD
~
--
1
-+_
A_l
+-t
l.f'-s:;
PR£-
ROl/
W'
SELECT
SELECT
4AD
1
Al
p
5AD
1
AS
P
I
'--"'
6AD
~ '
--
'
-+_
A_6 Hp
'-- '--
8
Kx8
CM
OS
STATIC
RAM
lo!EMORY
en
ARRAY
128
RO.S
511
CO
LUMNS
t
5V
VD
O
-2!..._
2328
I
12.
NC
_
lNC
1
-~
lAD
~'
__
J
-+-
_A_l
HU"-5-
CO
W'
.-----.
J/
01
11
BOA'
I
,=S
AD
~ '
__
2 5
-+
_A_S
-
U"-5-
Lu
3-S
TATE
t-
r
'"
/
"'
02-+-""
11
,-
- ~
90
~.'"'-,
W'
B
US
!/OJ
13
!ODA'
24
Ag
~
MN
TRANS-
t/0
4
15
llDA'
!AD
'
CE!V!:RS
/
1
'=
---+--+-<
INP
UT
/
OUTPUT
I
o
5
16
12D
A
1
I
.....
Sx
l-
!,-,/.,,06
,+-""
11
,--~
l l~
DA
c.,
',
11....,.
1
, 10~
--
21
-+_
A_
ll
tP
:
CIRCUITS
/
I
01
18
14DA'
I/08
19
!SDA'
I
,~
ll
~AD~•
__
2l
-+_
A_l ·-Hu---._,
EL
~
22
3141
'--'
1
"'
2
AD
"'-
'
__
z
+-
A_1
-+
u----._,-i
L-
c
1
.i...
___
_,
..
,-,-r'
l...!
c:WE
:i..
~
21
,_2
_
10
_,
..J:
RWRAl~•
!!..
'
_~
=-
,
1
~
LOGIC
l,
CEl
20
CSON'
V
SS
1
26
+5V
I
Im
OIRN
1
114
DIR
ADEN
'
3
!
3
~
I
1
2z'Ev
2360
I
120p
10
6
ADEN
ODA'
21
ODA
/
IDA'
22
lDA
1DA'
23
2DA
JOA'
24
JOA
4DA
1
26
4DA
~OA
1
27
5DA
6DA'
32
6DA
V
1DA
1
33
J
OA
-
-
DAT
A
~
..,_8D"
A'--'
--"'
31+ ~8
,=
DA
'---1
BUFFER
9DA
1
35
V
10DA
1
36
11
,u
t
)7
110A'
38
13DAt
39
14
DA
1
41
1
5DA'
42
90A
!ODA
llDA
120
A
!
JOA
140A
1
5DA
2308
!00n
ADDRESS
GENERATOR
I I
617
:
12
DIVIDER
1318
NE
56
4
IN
Gl$ERATOR
t
CLOC
K
I
CI
RCUITRY
:
14
+5
V
',>
3301
>
!Ok
[mo
I
100.
6
?'RF
~
IM
1
BIAS
1,---.._-,,fl
+-
2-
30
-1
----
-+
~Fl~~~E~R~
PHASE
COMPARATOR
+sv
-tVCCl
CONTROL
REGISTERS
All 46
39
r,JT
AlS
45
I
1
4A
' 40
Al4
..................
-="-h "
!SA!
41
AlS
PAG
E
REGIS
T
ER
t
I
N.C. N.
C.
N.
C.
14
15
16
DO
DECODER
N.C.
2.Q.
NC
.
._
_____
_.
X2
t-_l
NC
N.C.
21
N
C.
Xl
,
..
_19
NC
NC.NC.NC.NC.
N
C.
N
C.
NC.
NC
.
NC
.
NC
.
X4
_ JO
NC
12
l
23
l14l25l2612J
l1Sl291
JOI
Jll
X7
_ 31
NC
XS
..,_
59
NC
Xll
t-
61
NC
X
12
..,_
90 NC
!FC
44
~
~
~ ~ ~ ~ ~
~ ~
~
T£ST5
J.QQ_
+
IV
2JIS
I
1
00
n
10
2351
*
NOT
IMPLEMENTED
8
;
§
+vCC2
i-f·
tSV
s
~
~
22
P!
l
2114
7
~TRIE-"" -...:::
!::
--
OSC
IN
13
IT
_:~
J
VER
~
OSC
0111
11
'-f·
5302
19.JSl
SHllz
>
3306
>
!Ok
G
VCO
....
"-'"'-I
-'--
--_.
>-
---'
._v'-'c"-o
-+-
'
-------------+
r--.,
I
3314
I
512Xl6
128
Xl6
128Xl6
ADDRESS
REGISTER
..
----
DATA
MEMORY
VSS
VSS
NC
.N
C.
NC.NC.
11
51
4
3ttt~
I
L-=-~-
J
1
NOT
IMPLEHENTE:D
r -
--;-1
I
ll26
I
l
PROG
RAM
COUNTER
S
TA
TUS
16
321
47
46
45
44
1
JJI
34
JS
u
z
u u
z z
+SV
+sv
T
131
0 D
74HCU04
14
1310
E
14R
C00
4
1
--
oor_nL
'--
----
--'
I
lOOn
l
!!!POT
FRCJ!
VCO
I
2
L
l;i
§§§§
r
--
- ,
I
33!1
<>
1
1
I
OE
>
I
>
OE
I
rOIO
2313
lnS
I
5
2312
I
ln5
GND
11
3305
~k
I
___
_
J
me
OE
<:,
l _ _ _
J
1310
A
1310
8
t--
1
-1
Jst-s _ _
11
lvl2,1,,_.
.....
1
.....
rL
~5
>-
6
-~
.r
,1,
1..,iv'"-"-
3
....
rL
l
n5
2
i'O
E
~
l
n5
y
2ioi
~
1310
F
74
HC00
4
r0
11
2354
r
2n
I
I
i
i
i
i
- -- ·- ·- ·-·-·-·- ·- ·
- -- ·- ·-·-
--
-- ·- ·- ·- ·
-·-·
- -- --
·-
·- -- ·-·- -- ·- ·- ·-·- ·- ·-
·-·-·---·-·-·-·-·
- ·
-·-·-·-
-- ·- ·- ·
-·-·-
·- ·- ·-·-·- ·
-·-
·
-·-·
- -- ·- -
- ·- ·
-·-
·-
·- ·-·- ·- ·- ·- -- ·- ·-·- ·-
·-·-·-·
- ·- ·- ·
-·-
·- ·- ·- ·- -- -- -- -- -- -
---
·- ·- ·
-·-
-- ·- ·- ·- ·- ·- - -
---
--
---
- -- -- -- ·- ·- -- -
--
- -
---
-- -- -- -- -- -- -- --
---
- -- ----·-·- ·- -- -- -- -
-----
-- -- ------ -- -- -- -- -- ---- -- -- -- -- -- -- --
--·-·---·-·-
-- ·- ·- -- -- --
·-----
·- ----
10
11
12
13
14
15
16
11 18 19
20
21
12
23
24
15
26
21
28
19
30
31
31
33
34
2l02
N
9
li!l
m
23
05
824
2101
N
21
l
!~
~l
2
11
1<24
lm
8ll
lll!
~l
im
m
1319
Kil
m~
Kl 2
B
llli
i
t1
2
2lll
B
!m
b
1m
m
mtm
2340
C2
2
ljl!
m
2
51
!12
2
SJ
Hl2
llll
~li
2356
OJI
lm
~l
mi
m
im
m
D
2363
K24
1364
C
15
2365
!12
ll!!
m
2368
Cl1
33
01
Bl!
lj
0J
K
9
ll!!
~l
3306
1<28
3301
L2
3
3308
B2
1
33
09
Kl0
mo
Ki
l
mi
~
1
!
llll
:
1!
l
lll
N28
F
lllt
g
l2!
jfao
N 0
33
21
030
l
322
Nj1
313
N I
324
N29
325
Ml!
l
m
j!
!
3
32
Nl0
llll
5l
!
llll
m
3jj
1
D21
3338
K26
ll40
£1
8
H
Jlg
g!
3Jo
Hll
ll4
4
C2
8
53
01
Jll
ljil
~!
1
01
C2
1
1 02 B 1
ll!l
g
!
1303
I 2
1j
j 4 C 5
1
0
6
C21
ll
ol
m
lll!
~ll
731
0
033
731
0 Nll
731
0
010
mi
~
~,
mi
:
l
1320
N 9
llli
m
1310
Nil

Related product manuals