EasyManua.ls Logo

Philips DVD963SA - Double SCART Panel: Switching (Only for EU models)

Philips DVD963SA
82 pages
Print Icon
To Next Page IconTo Next Page
To Next Page IconTo Next Page
To Previous Page IconTo Previous Page
To Previous Page IconTo Previous Page
Loading...
72DVD963SA 7.
Electrical Diagrams
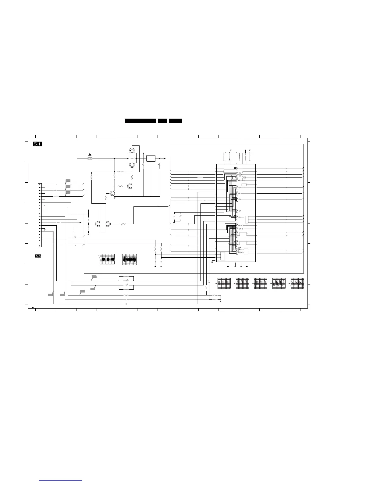
Double SCART Panel: Switching (Only for EU models)
M
M
M
M
M
M
M
M
M
M
M
MONO
STEREO
MONO
STEREO
MONO
STEREO
TRAP
I/O MONITOR
SLOW BLANK
DECODER
2
I C BUS
0V
4V
2V
11V
S1-3
S2-16
S2-20
SWITCHING
BC327-25
S2-10
DC vtg measured in STOP-MODE
V
S2-8
S2-18
11V9
3V3
12V
4V
*
C
D
E
F
G
H
1300 C1
2100 B7
2101 B6
2102 A10
2103 A10
2104 H5
2105 F6
2106 F7
2107 A11
BARE BOARD 3139 243 30291
0V
0V7
S2-29
S2-25
S2-19
S2-21
S2-11
S2-13
TO 1301 of A/V BD
S2-7
S2-15
S2-9
S2-17
1V3
4V
6V5
11V3
-0V5
123456789
S2-12
S2-14
S1-2
S1-1
OPTION
10 11 12 13
12345678910111213
A
B
C
D
E
F
G
H
A
B
4V
0V
3V3
*
5V8
4V
S1-6
2V
0V7
0V
0V7
0V
1V6
2108 C9
2109 A11
2110 D8
2111 D7
2112 B9
2113 A10
2114 C2
2115 C2
2116 C2
2117 H9
2118 G9
2119 H5
2120 H5
2121 G5
2122 G5
3100 A3
3102 D5
3104 B5
3105 B3
S2-24
S2-23
S2-30
S1-2
S1-3
4V
2V
2V
4V
S2-26
S2-27
S2-28
4V
S1-1
3106 B4
3107 F6
3108 F7
3109 B5
3110 C5
3111 C4
3112 D3
3113 H9
3114 H5
3115 H5
3116 H9
3117 E3
4101 A5
4102 D2
4103 E2
7101 A5
7102 C5
7103 C4
S2-4
2V
2V
1V3
1V3
4V
1V6
2V
4V
3V
2V
7104 D4
7105 D3
7106 B5
7500 A6
7501 B9
4
5
6
7
8
9
3V
2V2
2V2
4V
4V
2V4
S2-22
S1-6
4V
*
S2-5
12V
4102
4K7
3104
2115
470n
1
1300
100n
2112
+12V+8VSTBY
22n
2111
LF80C
7500
2
GND
1
IN
3
OUT
10K
3105
7102
BC847B
4K7
3109
3116
10K
TP2
TP1
2122
100n
TP3
TP4
+8VSTBY
10
11
12
13
14
15
16
17
18
19
2
20
21
22
3
1K
3111
2116
7103
BC847B
470n
100n
2113
100n
2104
2118
10u
VREF51
24
YCVBSIN-AUX
YCVBSIN-ENC
36
52
YCVBSIN-TV
YCVBSIN-VCR
50
YCVBSOUT-AUX
15
YCVBSOUT-TV 3
YCVBSOUT-VCR 7
YIN-AUX26
YIN-ENC
38
RIN-VCR47
ROUT-AUX 4
ROUT-CINCH 58
ROUT-TV 64
ROUT-VCR 60
SCL21
SDA22
SLB-AUX 31
SLB-TV 25
SLB-VCR 27
VCC12
23
VCCA
55
VCCV1
33
VCCV2
16
VCCV3
12
VOUT-RF
9
LIN-AUX35
LIN-ENC45
LIN-STB41
LIN-TV53
LIN-VCR49 LOUT-AUX 6
LOUT-CINCH 59
LOUT-TV 2
LOUT-VCR 62
RCIN-AUX28
RCIN-ENC42
RCOUT-TV 1
RIN-AUX37
RIN-ENC43
RIN-STB39
RIN-TV56
CIN-TV54
CIN-VCR48
COUT-AUX
13
COUT-VCR 5
CVBSIN-STB34
FBIN-AUX18
FBIN-ENC19 FBOUT-TV 17
FILTER 11
GIN-AUX
30
GIN-ENC44
GNDA
57
GNDV1
29
GNDV2
14
GNDV3
10
GOUT-TV
63
STV6410A
7501
ADD20
AOUT-RF 8
BIN-AUX32
BIN-ENC
46
BOUT-TV
61
CIN-ENC40
10u
2119
4103
2103
100n
7104
BC847B
7106
3117
4K7
BC327-25
TP25
7101
TP5 TP25
TP6
3106
10K
4R7
3100
3110
10K
10u
2100
10K
3102
100R
3107
2121 100u
3115
470R
470R
100n
2109
3114
4K7
3112
BC847B
7105
47p
2106
100R
3108
47p
2105
2107
100n
470n
2120
100u
2110
100n
2102
10u
2117
4101
100n
2108
100u
2101
470n
2114
SLB_VCR
+12V
RIN_AUX
LIN_TV
LIN_AUX
RIN_TV
10K
3113
COUT_AUX
YCVBSOUT_AUX
FBOUT_TV
FBIN_AUX
YCVBSIN_AUX
SLB_TV
SLB_VCR
RCIN_AUX
GIN_AUX
SLB_AUX
BC_AUX
BO
GO
RO
ROUT_TV
GOUT_TV
BOUT_TV
YCVBSIN_TV
CVBS
P50
KILL
RO
GO
BO
YIN
BC_TV
-5V
RCOUT_TV
LOUT_TV
YCVBSOUT_TV
ROUT_AUX
LOUT_AUX
+8VSTBY
+12VSTBY
CIN
I2C_CLK
I2C_CLD
+5V
STEREO_R
STEREO_L
CL 16532086_023.eps
260701
200mV/div AC
20us/div
200mV/div AC
20us/div
200mV/div AC
20us/div
200mV/div AC
20us/div
200mV/div AC
20us/div
TP1 B_vid in TP2 G_vid in TP3 R_vid in TP4 CVBS TP6 Y_vid
200mV / DIV AC
20us / DIV
TP5 C_ENC
ch1
1
ch1
200mV / DIV AC
10ms / DIV
ch1
CH1!2.00 V~ MTB 500ns ch1+
1
PM3392A
ch1
CH1! 200mV~ MTB10.0ms ch1+
1
ch1
1
TP25
Audio Pinknoise
OUT

Table of Contents

Other manuals for Philips DVD963SA

Related product manuals