EasyManua.ls Logo

Power Sentry PSQ500 MVOLT - One Lamp Instant Start Ballast Wiring; Two Lamp Instant Start Ballast Wiring

Default Icon
12 pages
Print Icon
To Next Page IconTo Next Page
To Next Page IconTo Next Page
To Previous Page IconTo Previous Page
To Previous Page IconTo Previous Page
Loading...
Installation Instructions for Power Sentry Emergency Battery Packs QD MVOLT Series
Page 9
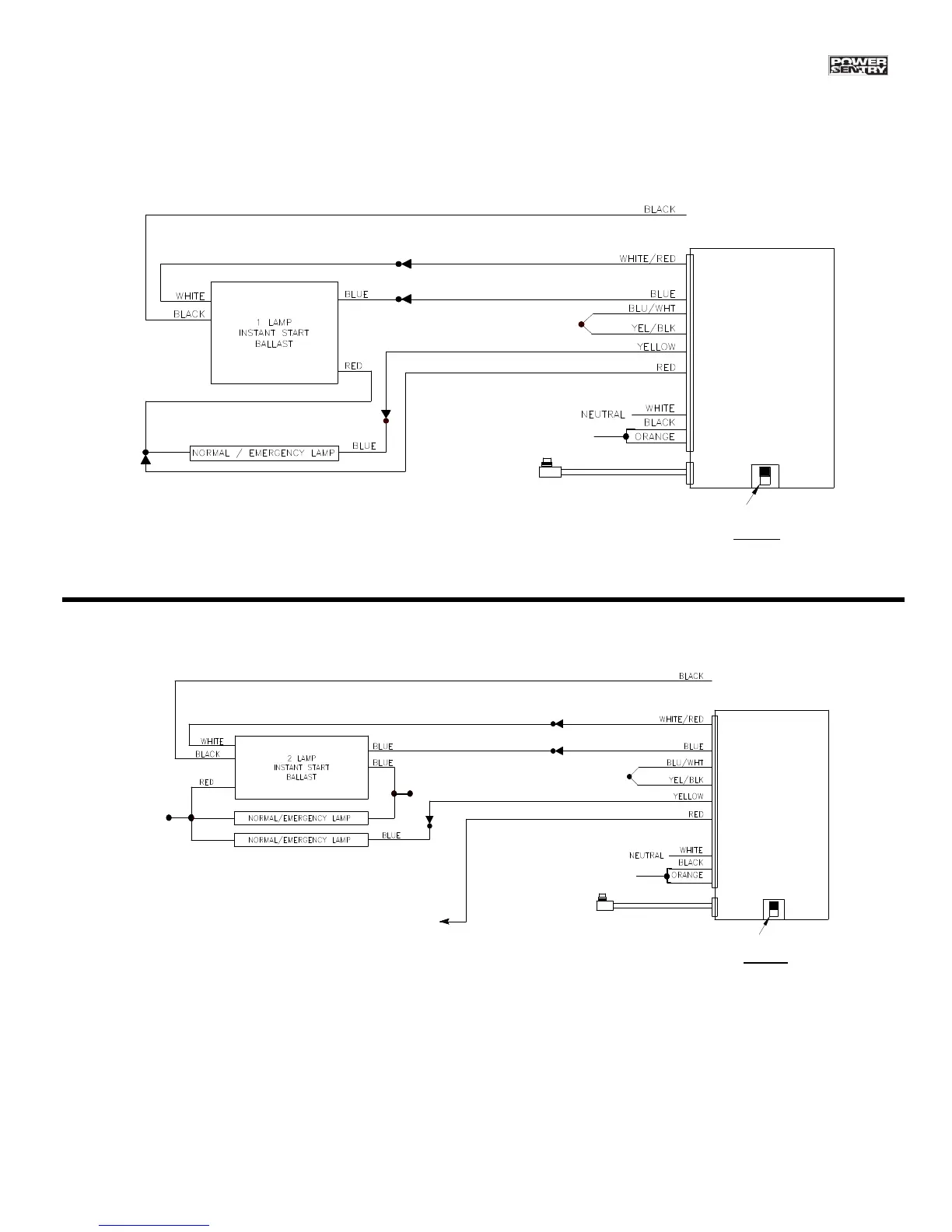
CAUTION
REFER TO LAMP SELECTOR TABLE
BEFORE CHANGING POSITIONS
LAMP SELECTOR (PS 1400 ONLY)
TEST SWITCH/PILOT LIGHT
CONNECT BLACK AND ORANGE
LEADS TOGETHER IF ORANGE
WIRE IS PRESENT
120 TO 277 VAC
UNSWITCHED LINE
BALLAST POWER CONNECTION
120 TO 277 VAC SWITCHED OR
UNSWITCHED LINE
NOTE; VERIFY VOLTAGE RATING
ON LAMP BALLAST
MVOLT
BATTERY PACK
ONE LAMP INSTANT START BALLAST
Figure G
CONNECT BLACK AND ORANGE
LEADS TOGETHER IF ORANGE
WIRE IS PRESENT
CONNECT RED WIRE TO POINT “A”
FOR ONE LAMP OR TO POINT “B”
FOR TWO LAMP EMERGENCY
OPERATION
CAUTION
REFER TO LAMP SELECTOR TABLE
BEFORE CHANGING POSITIONS
LAMP SELECTOR (PS 1400 ONLY)
TEST SWITCH/PILOT LIGHT
120 TO 277 VAC
UNSWITCHED LINE
MVOLT
BATTERY PACK
BALLAST POWER CONNECTION
120 TO 277 VAC SWITCHED OR
UNSWITCHED LINE
NOTE; VERIFY VOLTAGE RATING
ON LAMP BALLAST
“A”
SINGLE
EMERG. LAMP
CONNECTION
“B”
TWO EMERG. LAMP CONNECTION
TWO LAMP INSTANT START BALLAST
Figure H

Related product manuals