EasyManua.ls Logo

Pramac P3500i - Page 57

Pramac P3500i
59 pages
Print Icon
To Next Page IconTo Next Page
To Next Page IconTo Next Page
To Previous Page IconTo Previous Page
To Previous Page IconTo Previous Page
Loading...
55
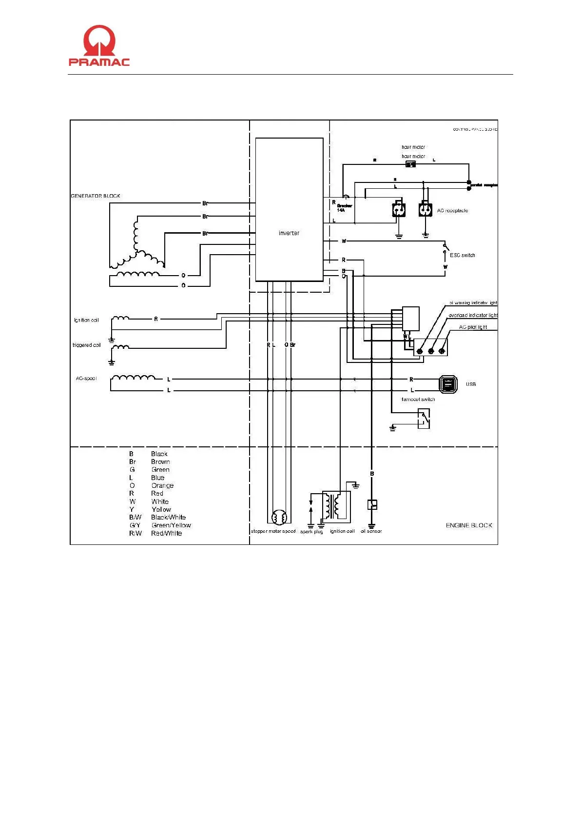
12 Diagram
12.3 P3500i/o