EasyManua.ls Logo

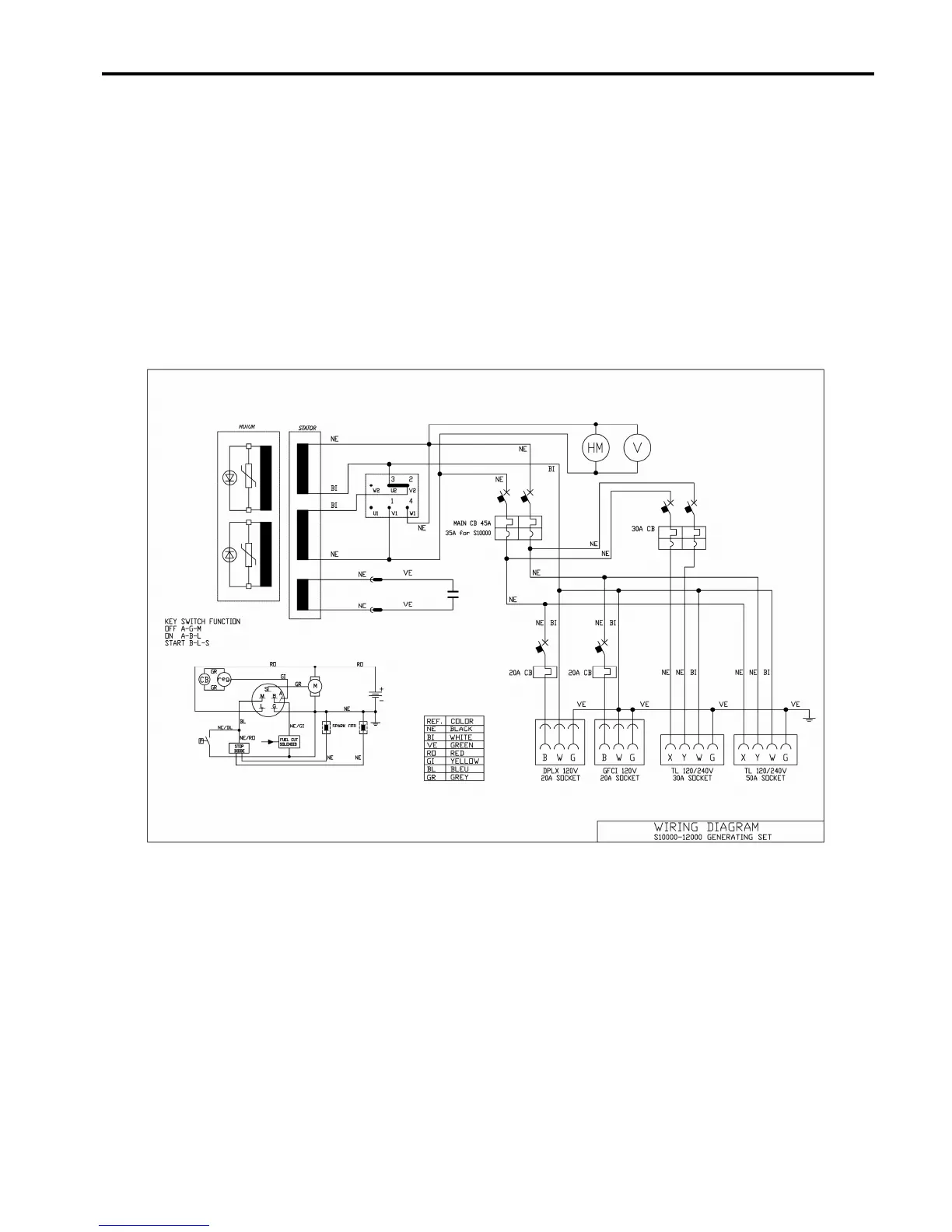
Pramac S10000 - Wiring Diagram S10000-12000 Generating Set

Pramac S10000
66 pages
Print Icon
To Next Page IconTo Next Page
To Next Page IconTo Next Page
To Previous Page IconTo Previous Page
To Previous Page IconTo Previous Page
Loading...
Schematics
36

Table of Contents

Related product manuals