EasyManua.ls Logo

pratic T-Project T-Hide - Page 7

pratic T-Project T-Hide
38 pages
Print Icon
To Next Page IconTo Next Page
To Next Page IconTo Next Page
To Previous Page IconTo Previous Page
To Previous Page IconTo Previous Page
Loading...
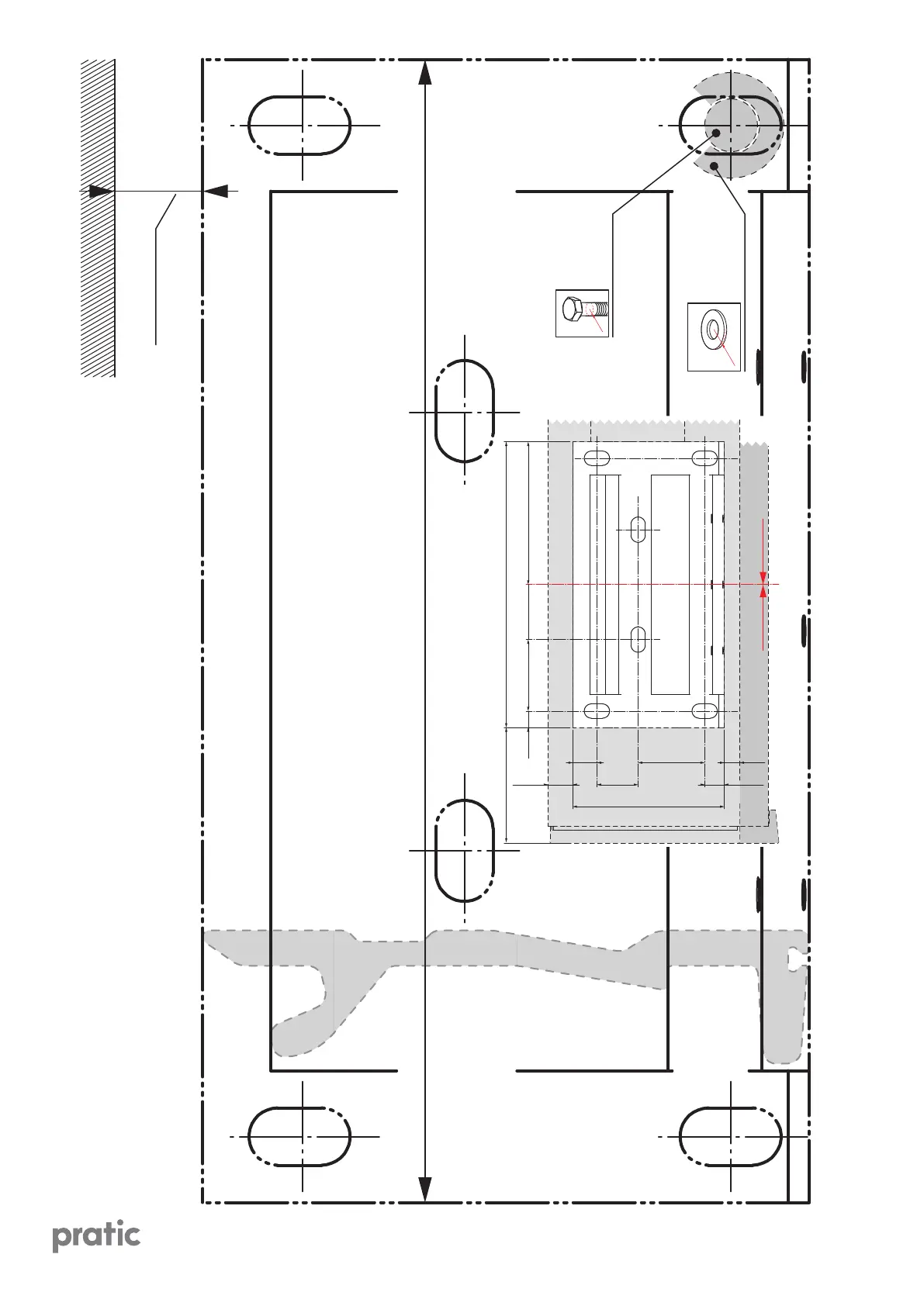
PAG. 7 T-Hide - Istruzioni d’installazione Rev. 11/18
(Dimensioni di ingombro in mm) Vericare la quota * prima di utilizzare il presente disegno
(Overall dimension in mm) Please verify the measure * before using this drawing
(
Dimensions d'encombrement en mm
) Vériez la mesure * avant d'utiliser ce dessin
(Außenabmessungen in mm) Bevor der Verwendung der vorliegenden Zeichnung, überpüfen Sie das Maß *
≥ 50 mm
260 mm*
15
23
22
37,5
60,5
17,9
14
137,9
65
45 (min
Θ
) 260
50 130
IB
Θ
Variabile
Variable
Variable
Veränderlich
Ø MAX
12mm
Ø
Øe MAX
24mm
Øe
Montaggio a parete
Fixation au mur
Wall mounting
Wandaufhängung