EasyManua.ls Logo

Prime Tech WF08 - INSTALLATION GUIDELINES; Winch Mounting Procedures; Mounting Plate and Fasteners; Lubrication and Cable Installation

Default Icon
13 pages
Print Icon
To Next Page IconTo Next Page
To Next Page IconTo Next Page
To Previous Page IconTo Previous Page
To Previous Page IconTo Previous Page
Loading...
5
INSTALLATION
MOUNTING YOUR WINCH
1a)The winch is to be mounted into a suitable steel mounting frame using the 4 point foot
mounting system in either a horizontal or vertical plane.
b) It’s very important that the winch be mounted on a flat surface so that three sections (motor,
cable drum and gear housing) are properly aligned.
c)Before commencing installation ensure the mounting facility being used is capable of
withstanding the winches rated capacity.
d) The fitment of winched and / or a frontal protection system may affect the triggering of SRS air
bags. Check that the mounting system has been tested and approved for winch fitment in the
airbag equipped vehicle.
2. Winch mounting frames and / or Frontal Protection system are suggested to suit most popular
vehicles. Winch frames are packaged with detailed fitting instructions.
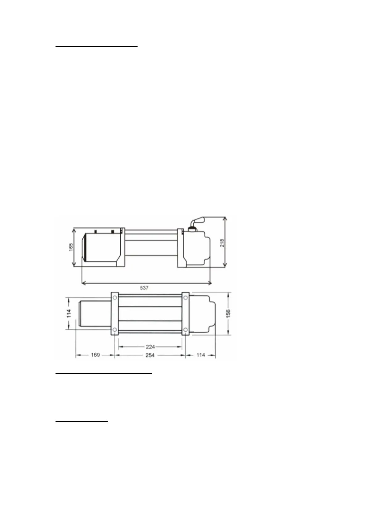
3. Should you wish to manufacture your own mounting plate the dimensions below will assist. A
steel mount plate 6mm thick is recommended. Fasteners should be steel high tensile grade 5 or
better. A poorly designed mount may void warranty.
4. The winch should be secured to the mounting with 3/8UNC*1-1/4stainless steel bolts and
spring washers provided.
5. The roller fairlead is to be mounted so as to guide the rope onto the drum evenly.
LUBRICATION INSTALLATION
All moving parts in the winch are permanently lubricated with high temperature lithium grease at
the time of assembly. Under normal conditions factory lubrication will surfice. Lubricate cable
periodically using light penetrating oil. Inspect for broken strands and replace if necessary. If the
cable becomes worn or damaged it must be replaced.
Cable installation
Unwind the new cable by rolling it along the ground, to prevent kinking. Remove old cable and
observe the manner in which it is attached to the cable drum flange.