EasyManua.ls Logo

Proluxe DP1350 - Page 16

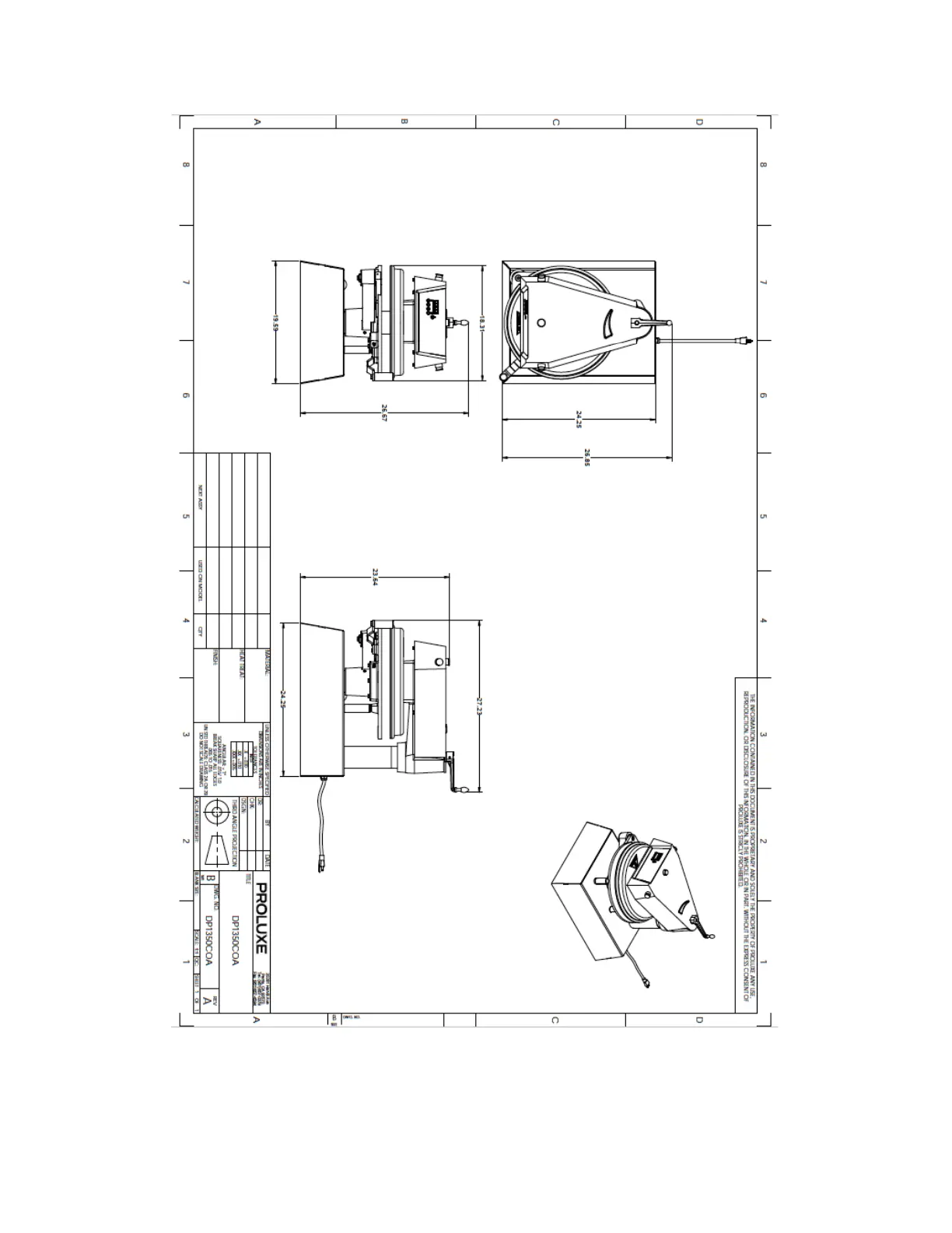
Proluxe DP1350
18 pages
Print Icon
To Next Page IconTo Next Page
To Next Page IconTo Next Page
To Previous Page IconTo Previous Page
To Previous Page IconTo Previous Page
Loading...

Related product manuals