EasyManua.ls Logo

protech MX405 - MX405 Connections and Wiring Diagrams

Default Icon
2 pages
Print Icon
To Previous Page IconTo Previous Page
To Previous Page IconTo Previous Page
Loading...
Protech Audio Corp. 192 Cedar River Road, Indian Lake, New York 12842 Voice 518-648-6410 Fax 518-648-6395
PROTECH
®
INSTALLATION & OPERATION
MANUAL
MX405 AUDIO DISTRIBUTION AMPLIFIER, Rev. A
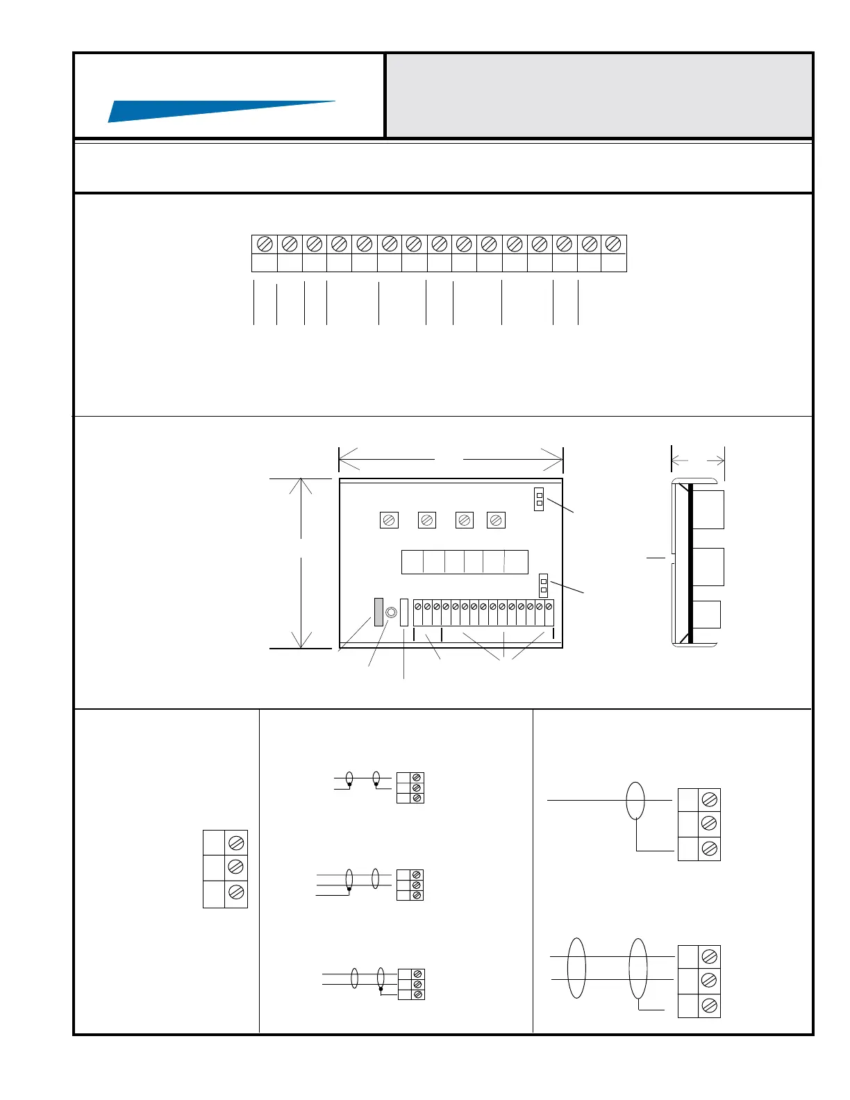
POWER INPUTS AND OUTPUTS
GROUND LIFT
FUSE
POWER ON INDICATOR
4.5"
3.375"
SOCKETED IC'S
1.0"
MOUNTING
HOLES
ALL
QUICKTRACK
PRODUCTS
USE
CONSISTENT
GROUNDING
SCHEMES
AND
PACKAGING
PHANTOM
POWER
JUMPER
JP3
On = 0dB
Off = +10dB
WWW.PROTECHAUDIO.COM
18
VAC
18
VAC
G
N
D
OUT #2
- +
OUT #1
- +
INPUT #1
- +
S
H
S
H
CONNECTIONS
OUT #3
- +
OUT #4
- +
SH
LO
HI
UNBALANCED LINE OUTPUT
CONNECTION
SH
LO
HI
BALANCED LINE OUTPUT
CONNECTION
POWER FROM
MXT
TRANSFORMER
RED - AC
BLACK - AC
GREEN - (GND)
SH
LO
HI
UNBALANCED LINE
INPUT
CONNECTION
BALANCED LINE INPUT
CONNECTION
SH
LO
HI
MICROPHONE INPUT
CONNECTION
SH
LO
HI