EasyManua.ls Logo

Qlima LK 2035

Qlima LK 2035
84 pages
Go to English
To Next Page IconTo Next Page
To Next Page IconTo Next Page
To Previous Page IconTo Previous Page
To Previous Page IconTo Previous Page
Loading...
12
0°C, muss der Wassertank geleert und mit einem trockenen Tuch gereinigt
werden, um Frostbildung zu vermeiden.
5. Verwenden Sie ein nassen Tuch (ggfs. mit Reinigungsmittel), um die
Außenfläche des Geräts zu reinigen. Verwenden Sie hierfür keine Scheuermittel
oder Lösungsmittel. Das Abspülen mit Wasser ist strengstens untersagt.
6. Wenn das Gerät zur Lagerung oder für den Transport verpackt wird, leeren
Sie den Wassertank und lassen Sie das Gerät noch einige Minuten lang laufen.
Nachdem es vollständig getrocknet ist, verpacken Sie es, um die Bildung unan-
genehmer Gerüche zu vermeiden.
7. Lassen Sie den Netzstecker nicht stecken, wenn das Gerät über einen längeren
Zeitraum nicht genutzt wird, da es andernfalls beschädigt wird.
8. Wenn das Netzkabel beschädigt ist, muss es durch den Hersteller oder seinen
Kundenservice, oder durch eine ähnlich qualifizierte Person ersetzt werden, um
eine Gefahr zu verhindern.
9. Das Gerät sorgt für eine hohe Luftfeuchtigkeit. Schalten Sie diese Funktion
daher in einer luftdichten Umgebung ab.
10. Füllen Sie Wasser nach, wenn der minimale Wasserpegel erreicht wurde.
11. Dieses Gerät ist nicht für den Gebrauch durch Personen (einschließlich Kindern)
mit verringerten körperlichen, sensorischen oder geistigen Fähigkeiten, oder
mit mangelnder Erfahrung und Wissen geeignet, sofern diese nicht von einer
für ihre Sicherheit verantwortlichen Person beaufsichtigt oder in die Nutzung
des Geräts eingewiesen werden.
12. Kinder sind zu beaufsichtigen, um sicherzustellen, dass sie nicht mit dem Gerät
spielen.
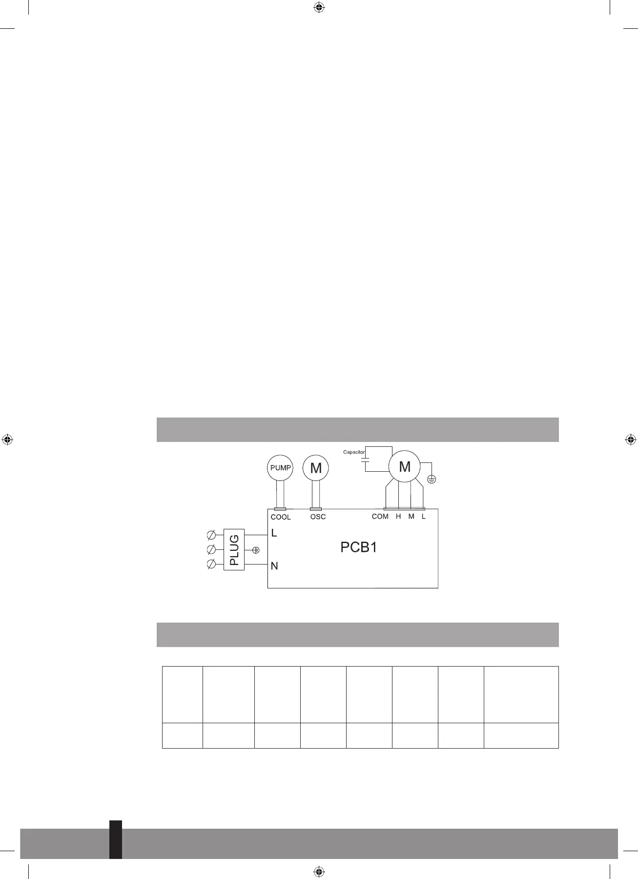
ELEKTRISCHES SCHALTDIAGRAMM
TECHNISCHE DATEN
Modell Spannung Eingangs-
leistung
Geräusch-
pegel
Was-
sertank
Kapazität
Luft-
menge
N.W. Abmessungen
(mm) LxBxH
LK2035 AC220-
240V,50Hz
50W 58dB(A) 7,0 l 700m³/h 5,3 kg 320x290x690
Anmerkung:
1. Das obige Datum dient nur als Referenz. Der Nutzer sollte die Parameter auf dem Typenschild nachsehen.
2
man_LK2035 ('19).indd 12 29-01-19 11:52

Related product manuals