EasyManua.ls Logo

RAS 74.30 - Page 127

Default Icon
263 pages
Print Icon
To Next Page IconTo Next Page
To Next Page IconTo Next Page
To Previous Page IconTo Previous Page
To Previous Page IconTo Previous Page
Loading...
F,
:';11-i?
I
,
I
J
J
-'t
Y15
24U
I
I,
I
I
IF.'
-1
I
I
rY'
I
_J
Nr.
14
set up
fon
:,60-435
]b/in'
B3
Stuak
Bertennun-o
Sach-Nr Werkstoff
Rohmo0e
Beme*ung
I
Ohne unsere
Genehmigung
dorl dese
Zerchnung weder
kop!erl,
noch veNEl.
lititigl, noch
ditten
Persanen
oder
Konkune
nzhme
n
z ugongiic h
ge
mdc ht
werden
(S
i u
ll
des Gesetzes
vom 19
7 l90ll
REINHARDI
MASCHINENBAU
GmbH
ZO32
SINDELFINGEN
1993
Taq
Name
Beorb
4.3
Noth
eep.
Hydnau
1 ic-contno
1-diagnam
with
equipment
iist
Ma1stab
RAS 7
4.?A-25-30-40
Aus-
gabe
Name
Anderung
Tag
I
I
T
-t
I
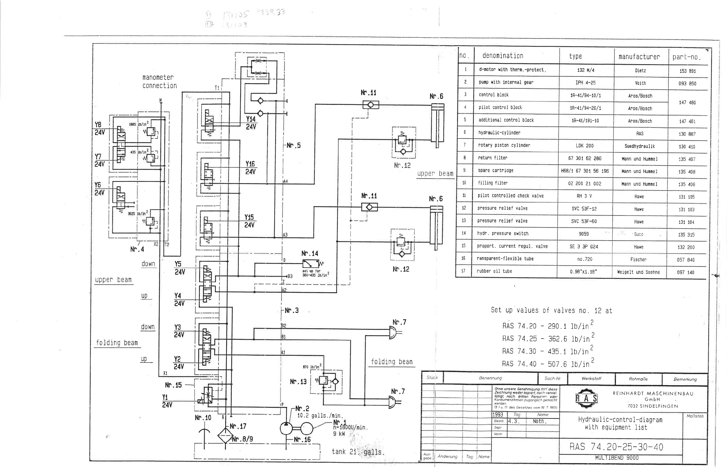
n0
denomi
nat
i on
type
manu
f actunen
part-no
153 891
lllan0tlleten
cOnnecti0n
T
093 850
1r
th
11
?i-,
Nr.5
147
48A
Y8
t47 4Bt
24V
130 887
I
I
Nn
tr
J
130
410
I
L-
135 407
24U
F'$yt. 12
uppen beaIIl
135 408
Y6
135 406
v
l,k'
11
131
105
--
-J
I
Nr.6
131 103
13t 104
135 315
Y)
I
I
I
I
I
I
132
200
Nr.4
down
L
057
840
Y5
Nr. 12
097 140
uppen bealfl
up
Y4
24V
Nn.3
Set up values
of
valves
no.
RAS
74.20
-
290.1 lblin
FAS
74.25
-
362.6
tblin
RAS 74.30
-
435.1
lblin
RAS 74.40
-
507.6
lblin
12 at
down
!{.''.7
2
(
2
n
(
24U
folding
beam
up
folding beam
24V
e7o
tb/in2
X1
--
Nn.15
--l-
Nr. 13
L
YT
Nn. l0
l.ln.2
10.2
ga11s./min
Nn.
17
Nn.1
n=180QU/min
9 kH
.i..
,rj
i
-t
L_
I
d-moton
xith
thern.-protect
132
t4/4
0ietz
I
punp
t{ith
intennal
gean
IPH 4-?5
Voith
3
contnol
block
!n-4u94-10
/ !
Aros/Bosch
4
pilot
control block
1A-4t/94-?0/
t
Anos/Bosch
5
additional
contnoi
block
1R-41/191-10
Aros/Bosch
hydnaulic-cyl
inden
RAS
7
rotary
piston
cyjinden
LDK
2OO
Sue dhydrau
I ik
netunn
filten
67
301
62
286
l.lann
und
Hunmel
I
spaPe
cantnidge
H68/1
67 301
56
196
Mann und
Hulllll}el
10 filling
filter
02
200 21
002
Mann und
Hunnei
tl
pilot
contnolled
check valve
RH3V
Hawe
L?
pressure
relief valve
svc
53F-12
Hawe
t3
pressune
nelief valve
svc
53F-60
Hawe
14
hydr.
pressune
switch
9059
'":
'suco
TE
IJ
propont.
cunnent
negul.
valve
SE
3 3P G24
Hawe
16 nanspanent-f
lexib
le tube
n0.720
F is chen
l7 nubben
oil tube
0.98'x1.18'
Heigelt
und
Soehne
24U
-1
.B/s
Nn.16
_J
tank
21
Nr.7
MULTIBEND
9OOO

Related product manuals