EasyManua.ls Logo

RAS 74.30 - Page 158

Default Icon
263 pages
Print Icon
To Next Page IconTo Next Page
To Next Page IconTo Next Page
To Previous Page IconTo Previous Page
To Previous Page IconTo Previous Page
Loading...
7
65
4
3
2
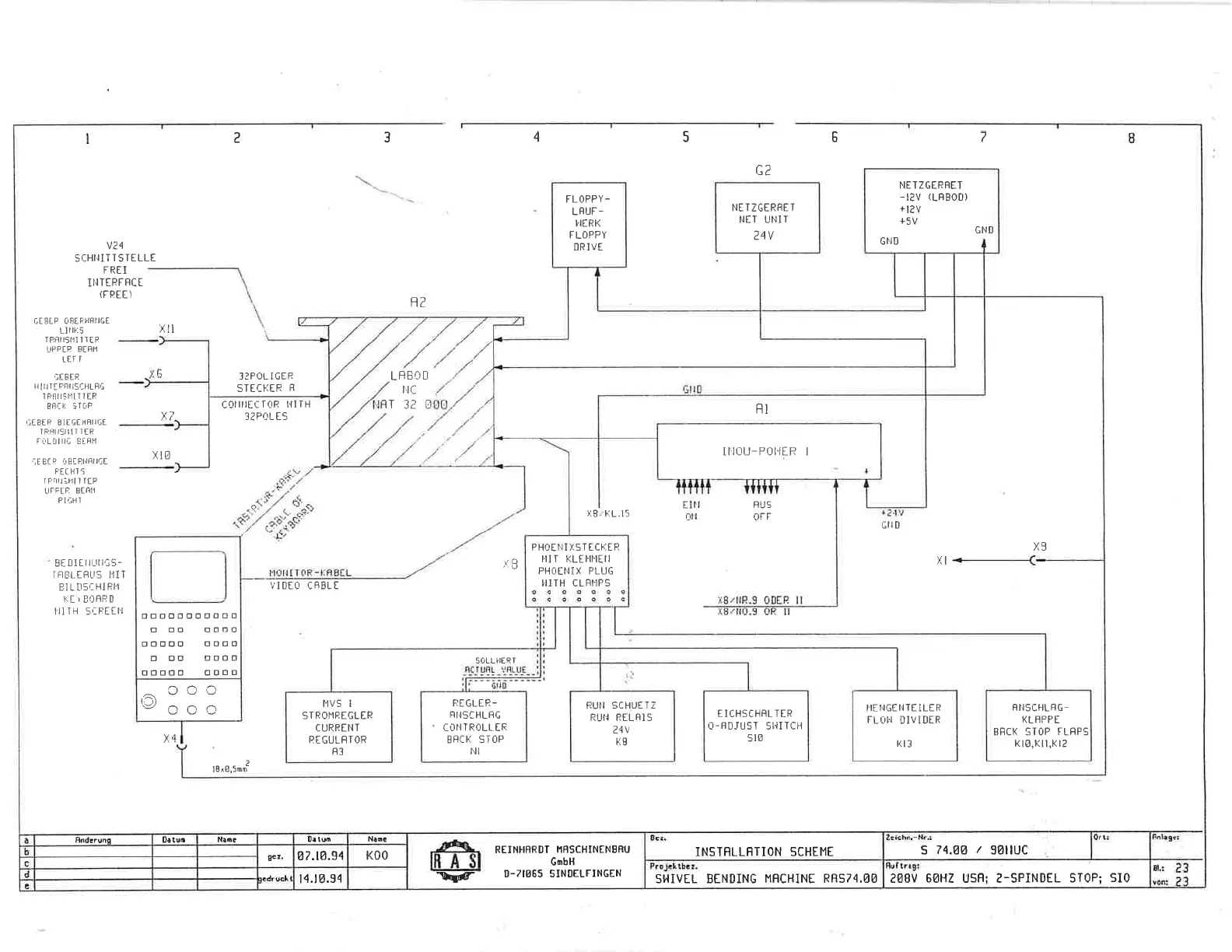
v24
SCHNITlSTILLE
FREI
INTERFFCT
(FREI)
Elil
0r'l
C2
BUS
OFF
RZ
CTSLP OBEE}If,IIGE
Llrll:s
TPBI|9ilI I
I
EF
LIPPEP BEFIl
LEF
T
iEBEP
H
I
ilTtFnilSCHLCC
IFNilSI'lITIEP
Bnak 5T0P
i:EPEP
BITI:THNIICE
TRnrglil
r rtR
FiL!III6
DTRH
iEEfP.rBtCHgl16E
PEI
HT
5
TFnI3Hll
IEp
tIFFI,P
SENH
PI'HT
XII
5
32POLIGER
STECT(ER
R
COI.IUIC
TOP HI TH
32P0Lt5
V]
t}EO CFBLE
I I
r0,5nmZ
Ytn
X4
q.
X3/HL.l5
CII D
VA
EtDltilullcs-
TFIELEBUS IIIT
BIttISiHIRIl
l.ti
B0HRD
Irl
TH
5aFEil'l
;,1
g
SOLL'JER
T
XI
RN5CHLHG_
KLRPPE
BHCK
gTOP
FLFPS
Kl0,Klt,Kl2
CNO
Gl'lD
I'IE T Z GERRET
_I2V
(LFBOD)
+
l2v
+5V
Kl3
I.IE
I'I6E Il T
E
ILE
R
FLOI.I
DIVINIR
NETZGERFET
NET UNIT
24V
E ICHSCHRL
TER
O-RDJUSl SI.IITCH
5rg
lt't0u-P0l.lER I
FI
RUiI SCHUET:
RUII RILRlS
24V
K8
FLOPPY-
LRUF-
I^IERK
FLOPPY
t]RlVE
PHOENIXSTICKER
I,II T I(LTHHEII
PHOENIX PLUG
t'IITH CLFtlPS
FECLER-
RNSCHLFG
C OI.IT
ROL
LtR
gRCK
STOP
NI
L
FBOD
I'lc
J( ART
hvs I
5T ROITREGLER
CURRENT
PEGULFTOR
R3
oootrotrooooo
B Otr trCRO
oo000
00Bo
o oo Booo
ooooo oooo
I^l
'v
ooo
ooo
20BV 60HZ USfl; Z-SPINDEL
ST0P; SI0
El.:
INSTRLLFTION SCHET,IE
SHIVEL BENDING
MRCHINE RRS74,OA
s
74.44
/
goilUC
RIINIIRRDT
T|RSCHINENBRU
GnbH
D-71065 SINDELFINGEN
ifro"
tftAst
w
Naic
K00
O:tun
a?.t4.94
t4.l 6.94
get.
N.o?Detur
nndirunq

Related product manuals