EasyManua.ls Logo

RAS 74.40 - Page 116

Default Icon
263 pages
Print Icon
To Next Page IconTo Next Page
To Next Page IconTo Next Page
To Previous Page IconTo Previous Page
To Previous Page IconTo Previous Page
Loading...
I
_i
I
I
I
,l
\
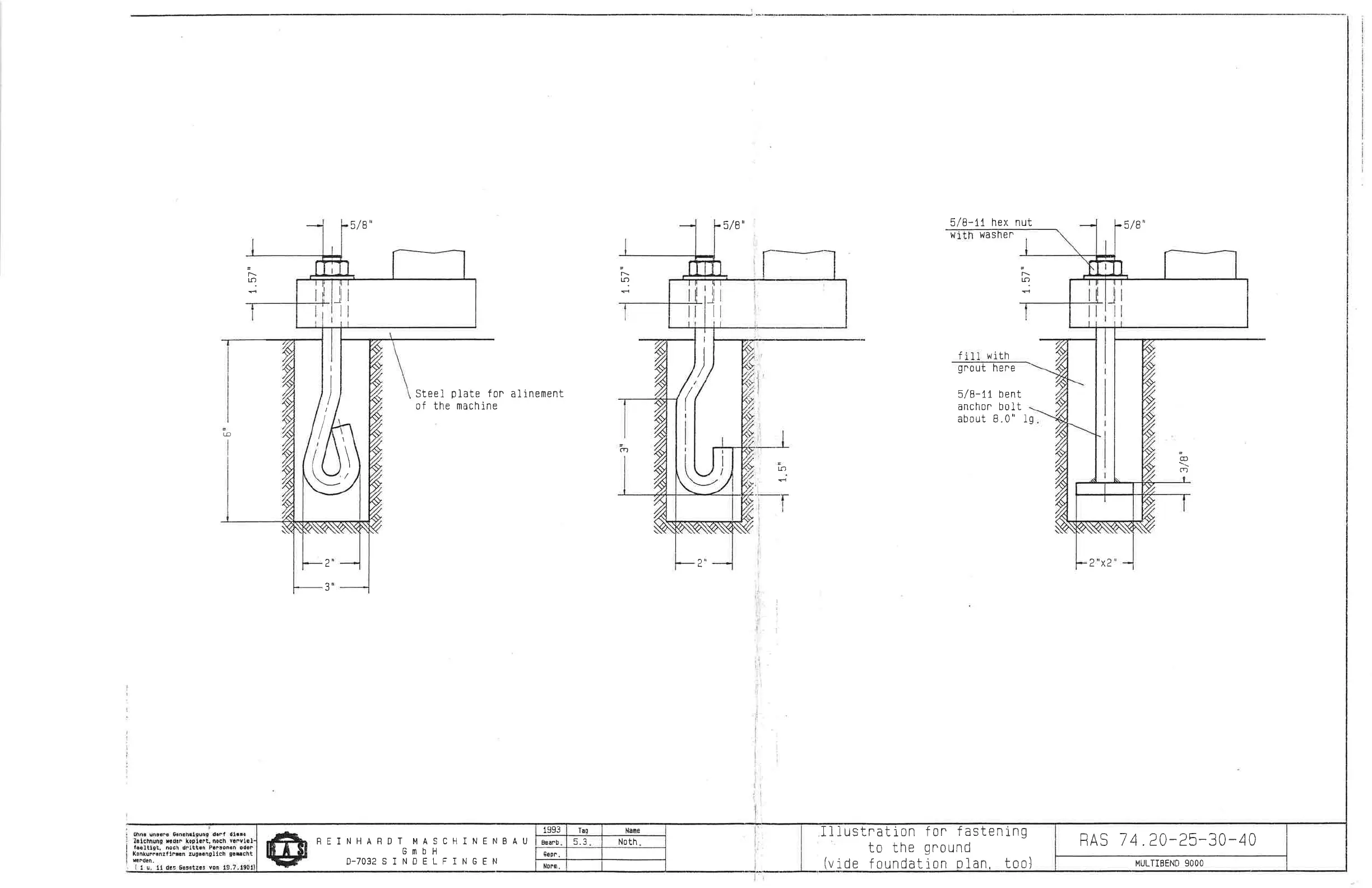
s/8"
5/8',
5/8-tt hex nut
!1l washe n
5/8'
|-\
LN
l--
l.r)
f--
r.rl
f
with
gnout
hene
5/8-11 bent
anchon bolt
about 8.0
"
1S
Steel
plate
fon
alinement
of the machine
1,
I
1
to
m
ul
co
cr)
1
ri
j
t
i
,
I
:
:.
i
.t
2" x2"
t-
t
I
I
:
I.
t
_l
I
(
I
a
a
J
1993 Taq
Nane
9eanb 5.3
No
th
FAS
7 4.?0-25-30-40
6epn
MASCHINENBAU
nbH
DELFINGEN
BEINHARDT
t
D-7032 S I N
Nonn
t
i.
,
,
I
Iiirrstnation
fon fastening
to
lhe
gnound
(v
ide foundat ion
p
lan, too)
MULTIBEND 9OOO
l(onkun.!nzf
1nf,n zugraf,gllsh
grBcht
renden.

Related product manuals