EasyManua.ls Logo

RAS MULTIBEND 9000 - Page 117

Default Icon
263 pages
Print Icon
To Next Page IconTo Next Page
To Next Page IconTo Next Page
To Previous Page IconTo Previous Page
To Previous Page IconTo Previous Page
Loading...
'l
1
I
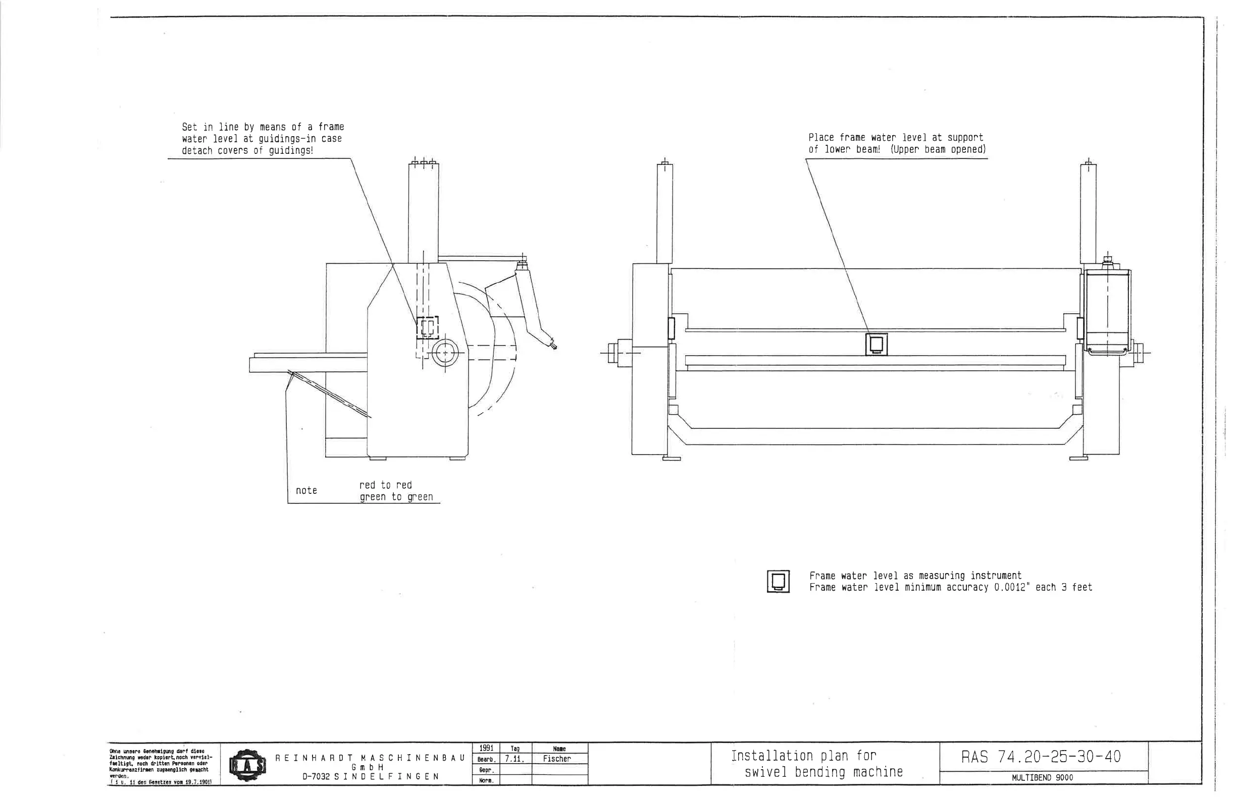
Set
in
line
by means
of
a fname
water
level
at
guidings-in
case
detach covens
of
guidingsl
note
J
P1ace fname
waten
levei
at
suppont
of
lower
beaml
(Uppen
beam
opened)
Fname
waten
level
as measuning
instrument
Fname waten
level
mini.mum accunacy
0.0012"
each 3
feet
ned
to red
een to neen
E
qln!
lxlilF€ Srorhrlgunl drrt
dic!€
Illchnung
ndrr kopicFL noch
vrFylll-
txltigt,
noch
drlttcn Plptonrn odlr
Xs*l,Fmrztlrxn
rugilnellch
gilacht
1991 Tao Nare
Searb 7 .tt Fischen
RAS
7 4 .20-25-30-40
Seon
MULTIBEND
90OO
RET
NHAROT MASCHI NENBAU
GmbH
O.TO32SINOELFINGEN
@
llora.
fon
rnachine
instal
lation
p
lan
si,vivel
bending
)
!
j
.A
!
1

Related product manuals