EasyManua.ls Logo

REXROTH TS2 plus - Page 315

REXROTH TS2 plus
429 pages
Print Icon
To Next Page IconTo Next Page
To Next Page IconTo Next Page
To Previous Page IconTo Previous Page
To Previous Page IconTo Previous Page
Loading...
1
2
3
4
5
6
7
8
9
10
11
12
13
14
15
16
17
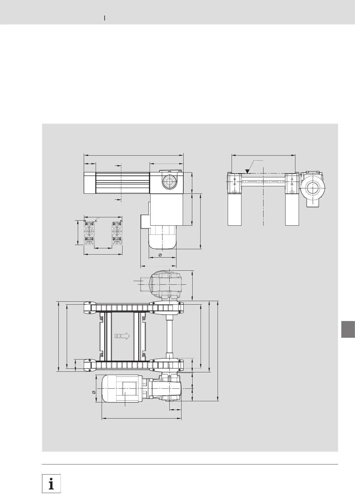
Bosch Rexroth AGTS 2plus 4.1 11–27
BS 2/C-250
BS 2/R-700
160
107
170
70
160
60
l
215
61,7
b
b
310
151,582,560
160
+30
b
b +40
b +181,5
430
60
00013210a.eps
b
(MA = L)
MA = R
A
A
b
106,5
A - A
b+15
b-75
 3-28,  3-54
3 842 999 985
3 842 998 096
Technische Daten · Technical Data · Données techniques
3 842 531 138 (2011.04)
Bandstrecke BS 2/C-250 und BS 2/R-700
BS 2/C-250 and BS 2/R-700 Belt section
Section à bande BS 2/C-250 et BS 2/R-700