EasyManua.ls Logo

REXROTH TS2 plus - Page 323

REXROTH TS2 plus
429 pages
Print Icon
To Next Page IconTo Next Page
To Next Page IconTo Next Page
To Previous Page IconTo Previous Page
To Previous Page IconTo Previous Page
Loading...
1
2
3
4
5
6
7
8
9
10
11
12
13
14
15
16
17
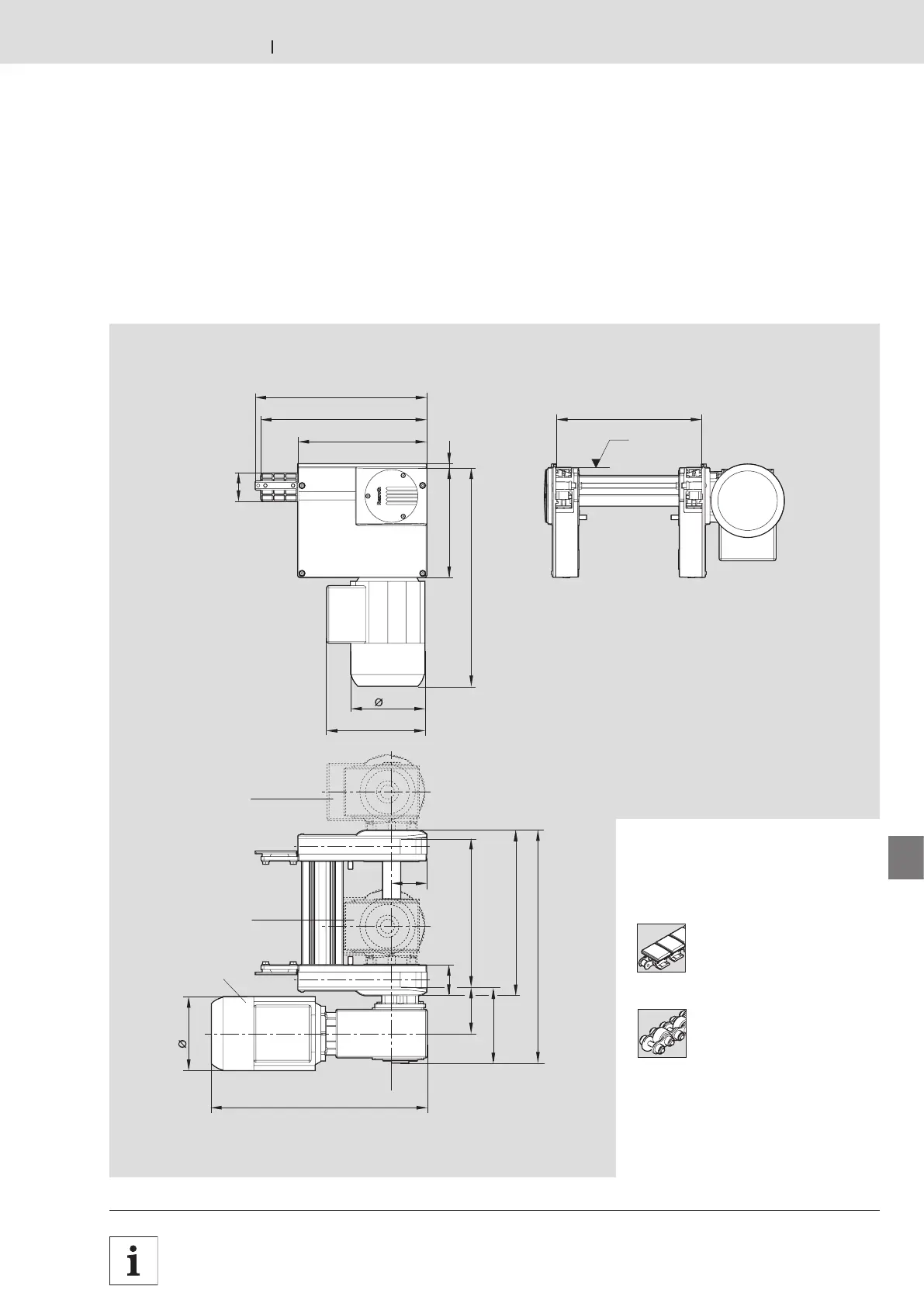
Bosch Rexroth AGTS 2plus 4.1 11–35
b +40
b 105
165
70
b +182
280
217
b
(MA = M)
160
470
160
360
375
40
240
470
7
00013277.eps
70
MA = R
(MA = L)
AS 2/C-700
AS 2/R-2200
l
AS
=
625 mm
l
AS
=
625 mm
 3-36,  3-62
3 842 998 039
3 842 998 041
Technische Daten · Technical Data · Données techniques
3 842 531 138 (2011.04)
Antriebsstation AS 2/C-700 und AS 2/R-2200
AS 2/C-700 and AS 2/R-2200 Drive unit
Poste de entraînement AS 2/C-700 et AS 2/R-2200
Erforderliche Länge des Fördermediums
Required length of the conveyor media
Longueur de convoyeur nécessaire