EasyManua.ls Logo

REXROTH TS2 plus - Page 335

REXROTH TS2 plus
429 pages
Print Icon
To Next Page IconTo Next Page
To Next Page IconTo Next Page
To Previous Page IconTo Previous Page
To Previous Page IconTo Previous Page
Loading...
1
2
3
4
5
6
7
8
9
10
11
12
13
14
15
16
17
Bosch Rexroth AGTS 2plus 11–47
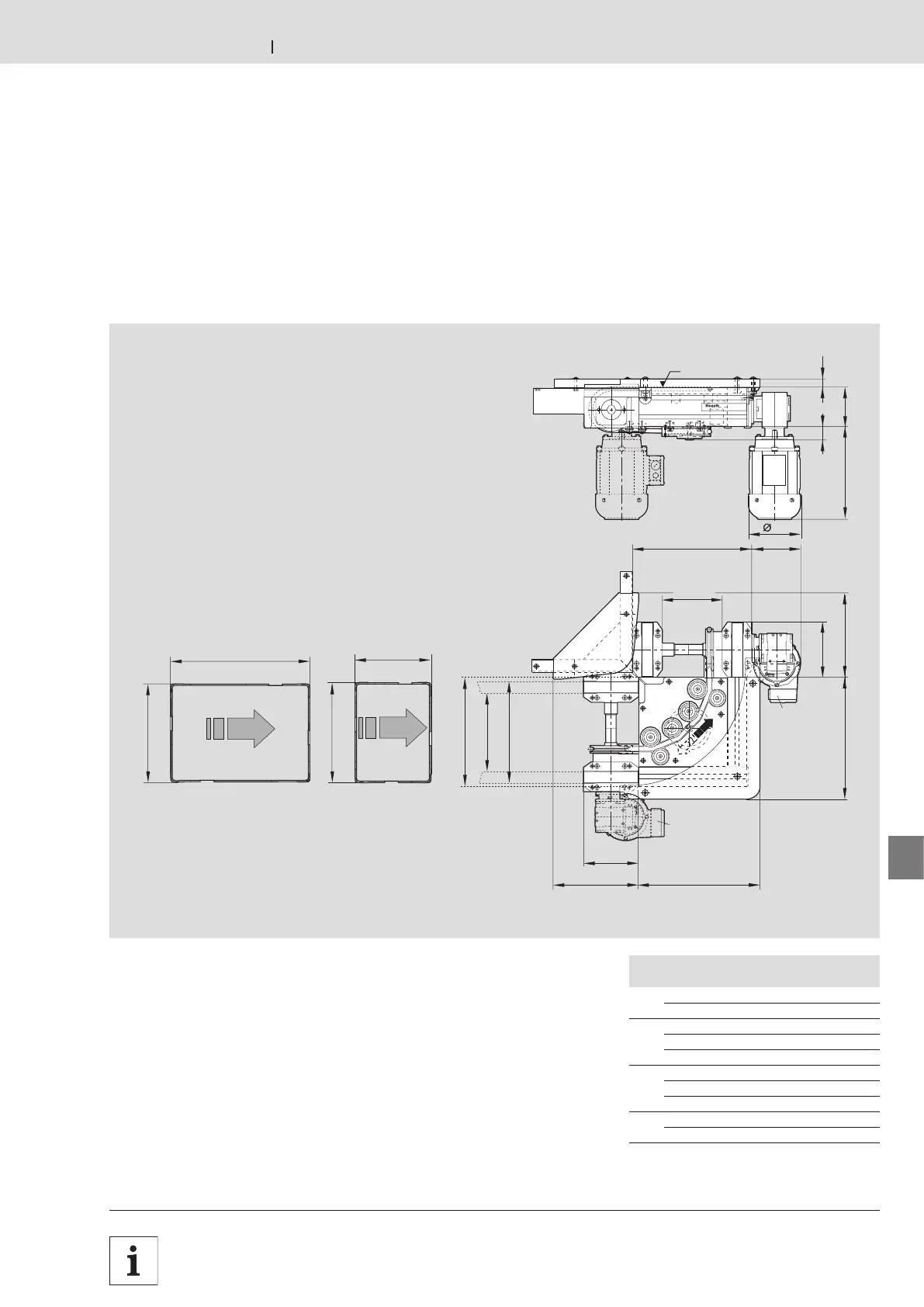
00012771.eps
1932
91190
C
b
T
+45,5
b
T
+45,5
b
T
-99,2
b
T
+39,2 116
130
KR = L
MA = S
KR = R
MA = S
KR = L
KR = R
C
130
b
T
-5
b
T
-55
b
T
+15
b
T
b
T
l
T
l
T
111
3 842 999 727
b
T
l
T
C
[mm] [mm] [mm]
160 160 170
240 170
240 160 200
240 200
320 200
320 240 290
320 290
400 290
400 320 355
400 355
 4-6
Technische Daten · Technical Data · Données techniques
b
T
= Track width in direction of transport
l
T
= Length in direction of transport
b
T
= Spurbreite in Transportrichtung
l
T
= Länge in Transportrichtung
b
T
= Ecartement de voie en direc. du transport
l
T
= Longueur en direction du transport
3 842 531 138 (2011.04)
Kurven KE 2
KE 2 curves
Courbes KE 2
Kurve KE 2/90
KE 2/90 curve
Courbe KE 2/90