EasyManua.ls Logo

REXROTH TS2 plus - Page 347

REXROTH TS2 plus
429 pages
Print Icon
To Next Page IconTo Next Page
To Next Page IconTo Next Page
To Previous Page IconTo Previous Page
To Previous Page IconTo Previous Page
Loading...
1
2
3
4
5
6
7
8
9
10
11
12
13
14
15
16
17
Bosch Rexroth AGTS 2plus 4.1 11–59
00125237.eps
5 1 3
2
46
b
L
+ 16
b
L
+ 15
90
b
L
+ 2
b
L
+ 2
30
437
395
30
b
Q
+ 120
b
Q
L
Q
L
7
6
100
180
280
110
195
7
 5-8
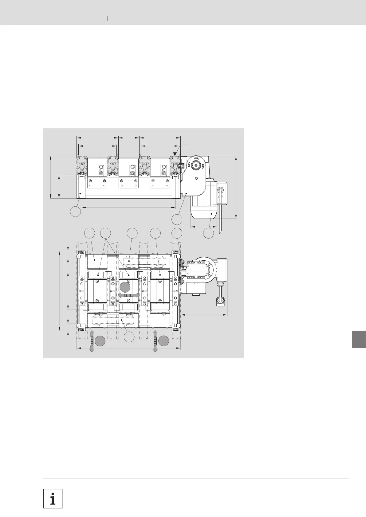
Technische Daten · Technical Data · Données techniques
3 842 531 138 (2011.04)
Elektrischer Quertransport EQ 2/TR-90
EQ 2/TR-90 electrical transverse conveyor
Convoyeur transversal électrique EQ 2/TR-90
L Förderrichtung Längstransport
Q Förderrichtung Quertransport
1 Hub-Quereinheit HQ 2/O
2 Verbindungssatz
3 Motoranbausatz
4 Antriebsmotor
5 Hub-Quereinheit HQ 2/T
6 Antriebsbausatz
7 Schutzkasten
L Transport direction of longitudinal
conveyor section
Q Transport direction of transverse
conveyor section
1 Lift transverse unit HQ 2/O
2 Connecting kit
3 Motor attachment kit
4 Drive motor
5 Lift transverse unit HQ 2/O
6 Drive kit
7 Housing
L Sens de transport de la section
longitudinale
Q Sens de transport de la section
transversale
1
Unité de levée transversale HQ 2/O
2 Jeu de jonction
3 Kit de montage du moteur
4 Moteur d’entraînement
5
Unité de levée transversale HQ 2/T
6 Kit d’entraînement
7 Carter