EasyManua.ls Logo

REXROTH TS2 plus - Page 364

REXROTH TS2 plus
429 pages
Print Icon
To Next Page IconTo Next Page
To Next Page IconTo Next Page
To Previous Page IconTo Previous Page
To Previous Page IconTo Previous Page
Loading...
Bosch Rexroth AG TS 2plus 4.111–76
00013098.eps
1
3
5
2
4
00125225.eps
0
1)
I
T
-66
35,6
38,6
132,8
0
ST 2
3)
1)
2)
40
4,4
33
4)
19,6
9
"X"
"X"
12
 7-6
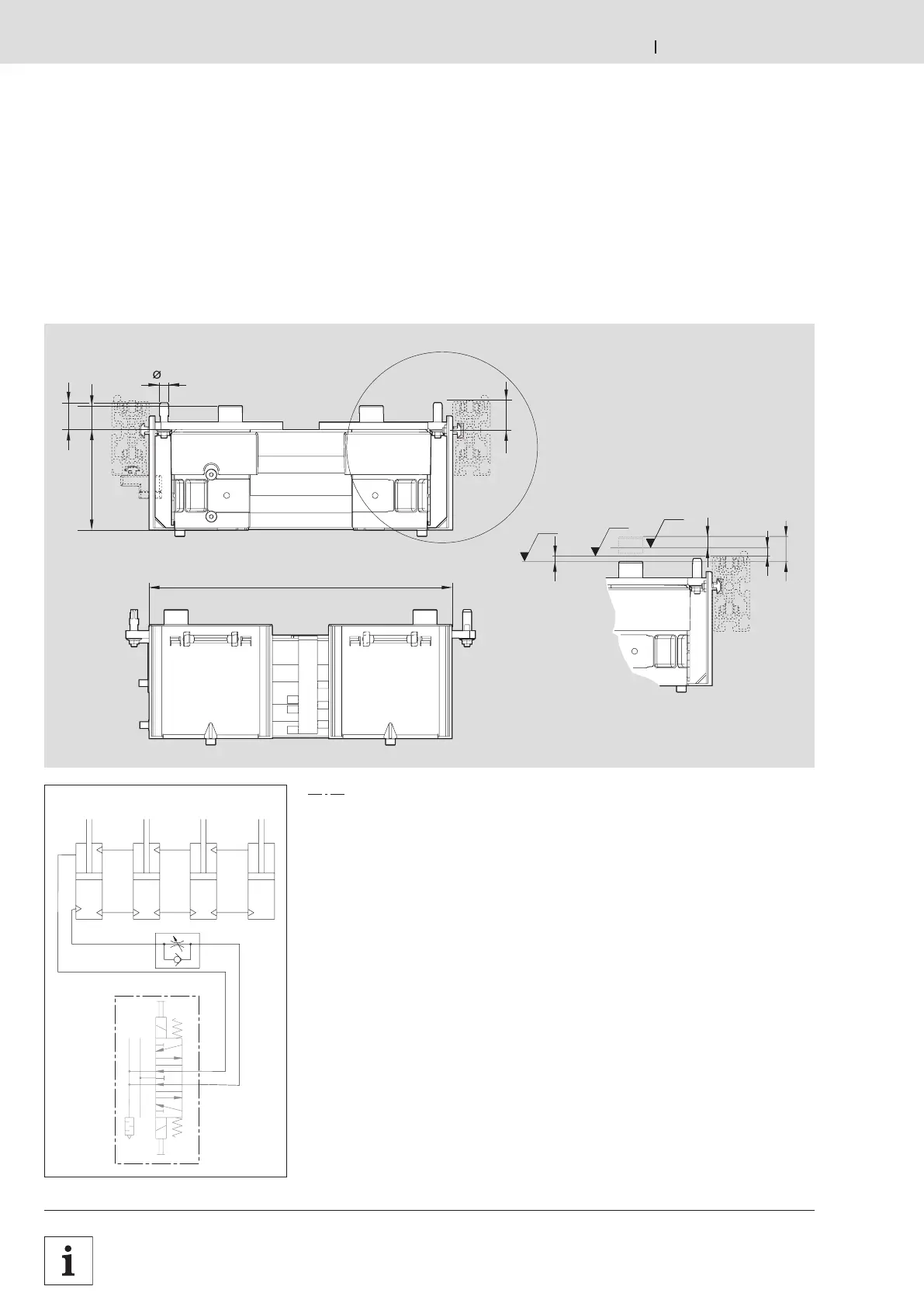
Technische Daten · Technical Data · Données techniques
3 842 531 138 (2011.04)
Positioniereinheit PE 2/X
PE 2/X position unit
Unité de positionnement PE 2/X
nicht im Lieferumfang
not included in scope of delivery
non compris dans la fourniture
1) Förderebene ST 2
2) PE 2/X untere Stellung: 4,4 mm
unter Förderebene ST 2
3) PE 2/X obere Stellung: 9 mm
über Förderebene ST 2
4) Gesamthub 33 mm
1) ST 2 conveyor level
2) PE 2/X, lower position: 4.4 mm
below ST 2 conveyor level
3) PE 2/X, upper position: 9 mm
above ST 2 conveyor level
4) Total stroke 33 mm
1) Niveau de transport ST
2) Position inférieure PE 2/X : 4,4 mm
sous le niveau de transport ST 2
3) Position supérieure PE 2/X : 9 mm
au-dessus du niveau de transport ST 2
4) Course totale 33 mm