EasyManua.ls Logo

REXROTH TS2 plus - Page 368

REXROTH TS2 plus
429 pages
Print Icon
To Next Page IconTo Next Page
To Next Page IconTo Next Page
To Previous Page IconTo Previous Page
To Previous Page IconTo Previous Page
Loading...
Bosch Rexroth AG TS 2plus 4.111–80
F
B
A
40*
h
2
h
1
23
1
25 (AO = AT)
20 (AO = UB)
A = 20
ho
260
100
100
300
h
G
00116006.eps
(L
T
160)
230
160
b-80
max.
110 kg
50
325
h
3
00116008.eps
325
±0,4
165
±0,02
130
±0,02
(b = 240)
200
±0,02
(b = 160, 320, 400, 480)
300
M8
8
H7
(4x)
70
1515
150
115
C 3 842 516 048
140
±0,02
164
±0,02
12
M6
( 25
H7
)
( 8
K8
)
180
20
25
80
40 10
00116007.eps
h
0
h
1
h
2
h
3
h
G
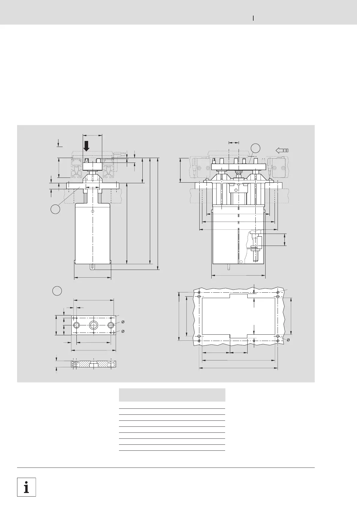
[mm] [mm] [mm] [mm] [mm]
0-59 334 435 462 80
60-104 379 480 508 125
105-154 429 530 558 175
155-204 479 580 608 225
205-254 529 630 658 275
255-304 579 680 708 325
305-354 629 730 758 375
355-404 679 780 808 425
 7-12
3 842 999 678
Technische Daten · Technical Data · Données techniques
3 842 531 138 (2011.04)
Hub-Positioniereinheit HP 2
HP 2 lift position unit
Unité de levée et de positionnement HP 2
A Befestigungssatz (UB oder AT)
B Positionierplatte
C Hubplatte
A Fastening kit (UB or AT)
B Positioning plate
C Lift plate
A
Jeu de pièces de fixation (UB ou AT)
B Plaque de positionnement
C Plaque de levage
h
0
= Hub über Fördermittel
h
0
= Lift above conveyor
h
0
= Course au-dessus du convoyeur
h
G
= Zylinder-Gesamthub
h
G
= Total cylinder lift
h
G
= Course totale du cylindre