EasyManua.ls Logo

REXROTH TS2 plus - Page 373

REXROTH TS2 plus
429 pages
Print Icon
To Next Page IconTo Next Page
To Next Page IconTo Next Page
To Previous Page IconTo Previous Page
To Previous Page IconTo Previous Page
Loading...
1
2
3
4
5
6
7
8
9
10
11
12
13
14
15
16
17
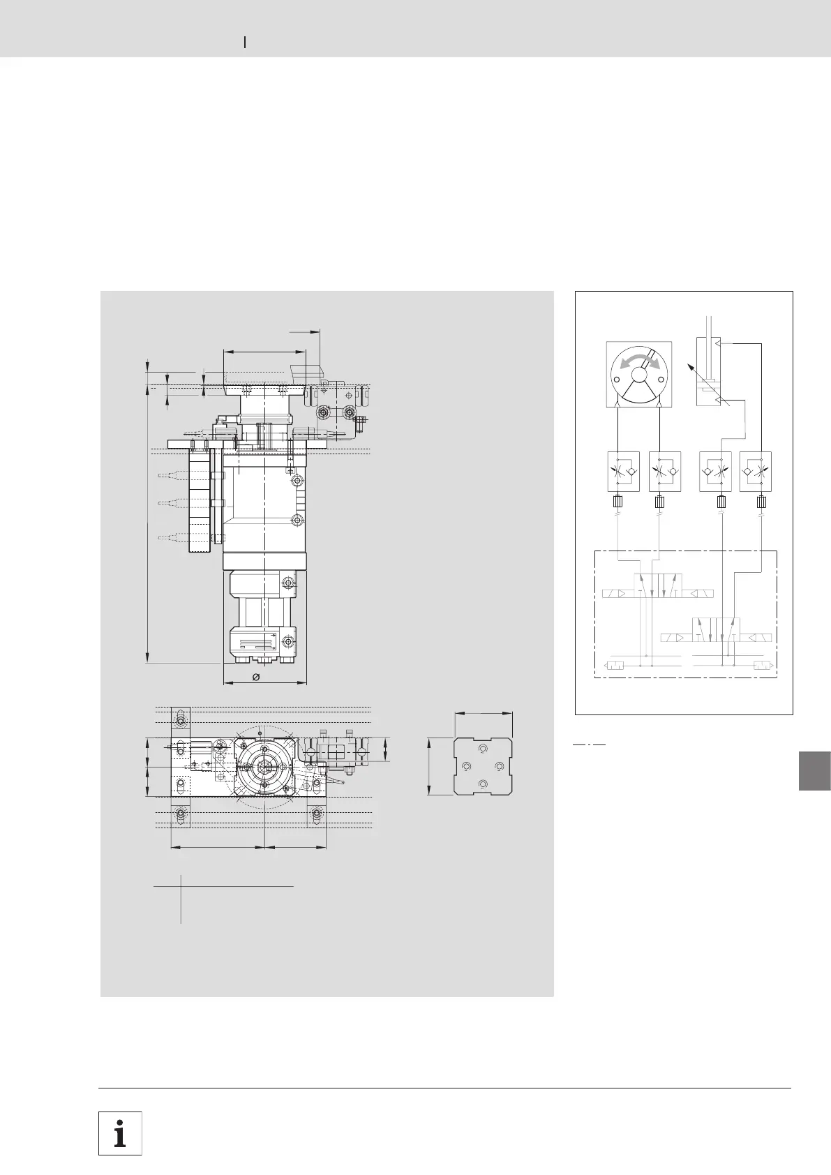
Bosch Rexroth AGTS 2plus 4.1 11–85
00117863.eps
h
1
= h + 400
h
1
1515
l
WT
l
WT-73
120
90e
d
c
f
b
WT
- 73
l
WT
- 73
b
WT
c d e f
160 42 42 140 34
240 82 82 110 42
320 122 122 110 42
 7-24
1 35
2
D 8D 8
4
00116562.eps
D 8 D 8
13 5
2 4
3 842 525 847
...
3 842 525 870
Technische Daten · Technical Data · Données techniques
3 842 531 138 (2011.04)
Hub-Dreheinheit HD 2
HD 2 lift rotate unit
Unité de levée et de rotation HD 2
nicht im Lieferumfang
not included in scope of delivery
non compris dans la fourniture