EasyManua.ls Logo

REXROTH TS2 plus - Page 377

REXROTH TS2 plus
429 pages
Print Icon
To Next Page IconTo Next Page
To Next Page IconTo Next Page
To Previous Page IconTo Previous Page
To Previous Page IconTo Previous Page
Loading...
1
2
3
4
5
6
7
8
9
10
11
12
13
14
15
16
17
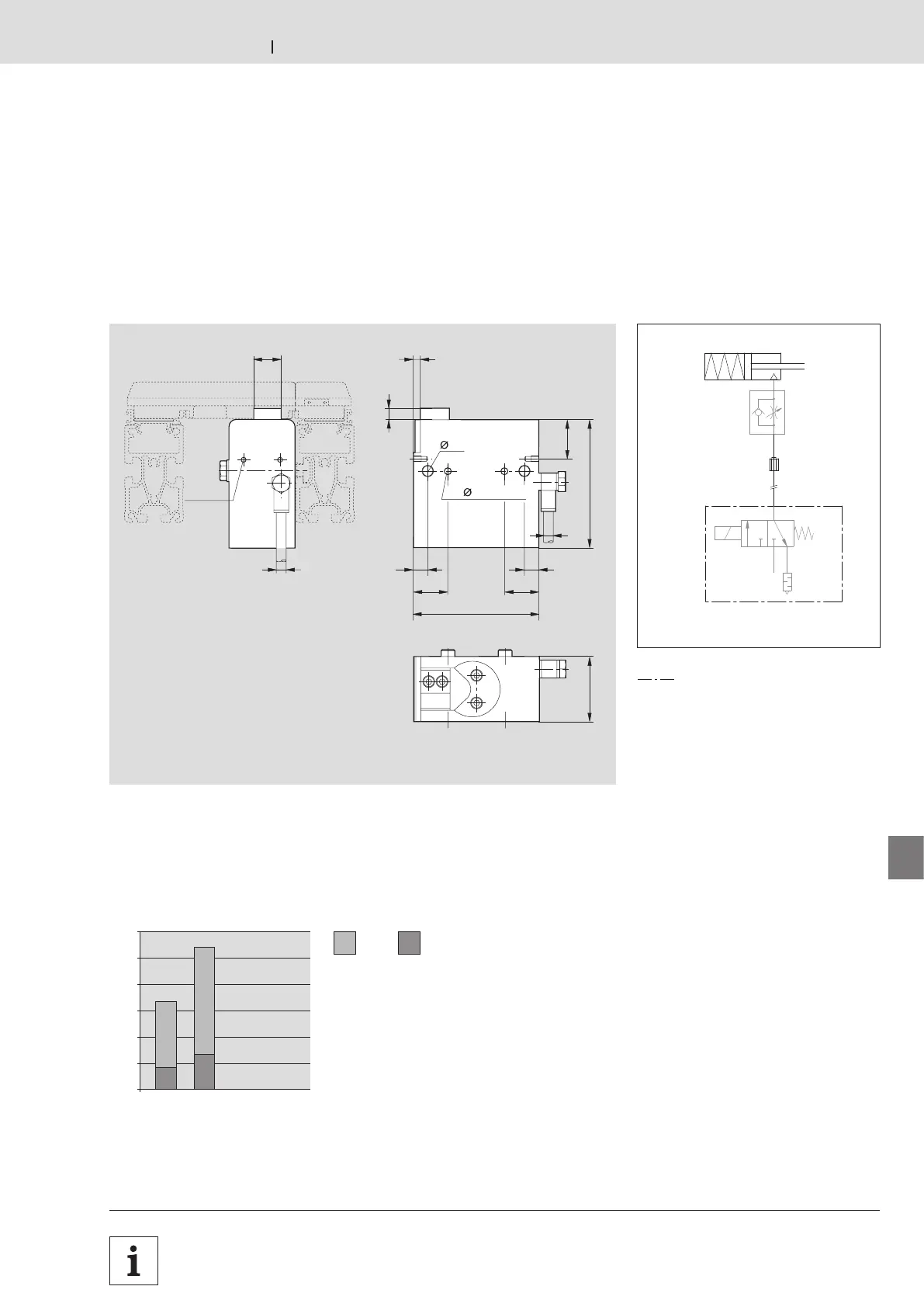
Bosch Rexroth AGTS 2plus 4.1 11–89
8,4
6x1
6x1
10,5
00116776.eps
10,5
25,5
4xM4T6
25,5
95
38
9850
4 x 4,8 H12
9
521
 8-11
4 bar
0
l = 1 m l = 3 m
50
100
150
200
250
300
[ms]
00117861.eps
67,5
202
42,5
125
VE 2/H
1 3
2
D 6
00139052.eps
Technische Daten · Technical Data · Données techniques 
3 842 531 138 (2011.04)
Vereinzeler VE 2/H
VE 2/H stop gate 
Séparateur VE 2/H
nicht im Lieferumfang
not included in scope of delivery
non compris dans la fourniture
Öffnungs- und Schließzeiten
Opening and shutting times
Temps d’ouverture et de fermeture
l = Schlauchlänge
Tube length
Longueur du tube
Schließen
Shutting
Fermeture
Öffnen 4 bar
Opening
Ouverture