EasyManua.ls Logo

REXROTH TS2 plus - Page 384

REXROTH TS2 plus
429 pages
Print Icon
To Next Page IconTo Next Page
To Next Page IconTo Next Page
To Previous Page IconTo Previous Page
To Previous Page IconTo Previous Page
Loading...
Bosch Rexroth AG TS 2plus 4.111–96
 8-21
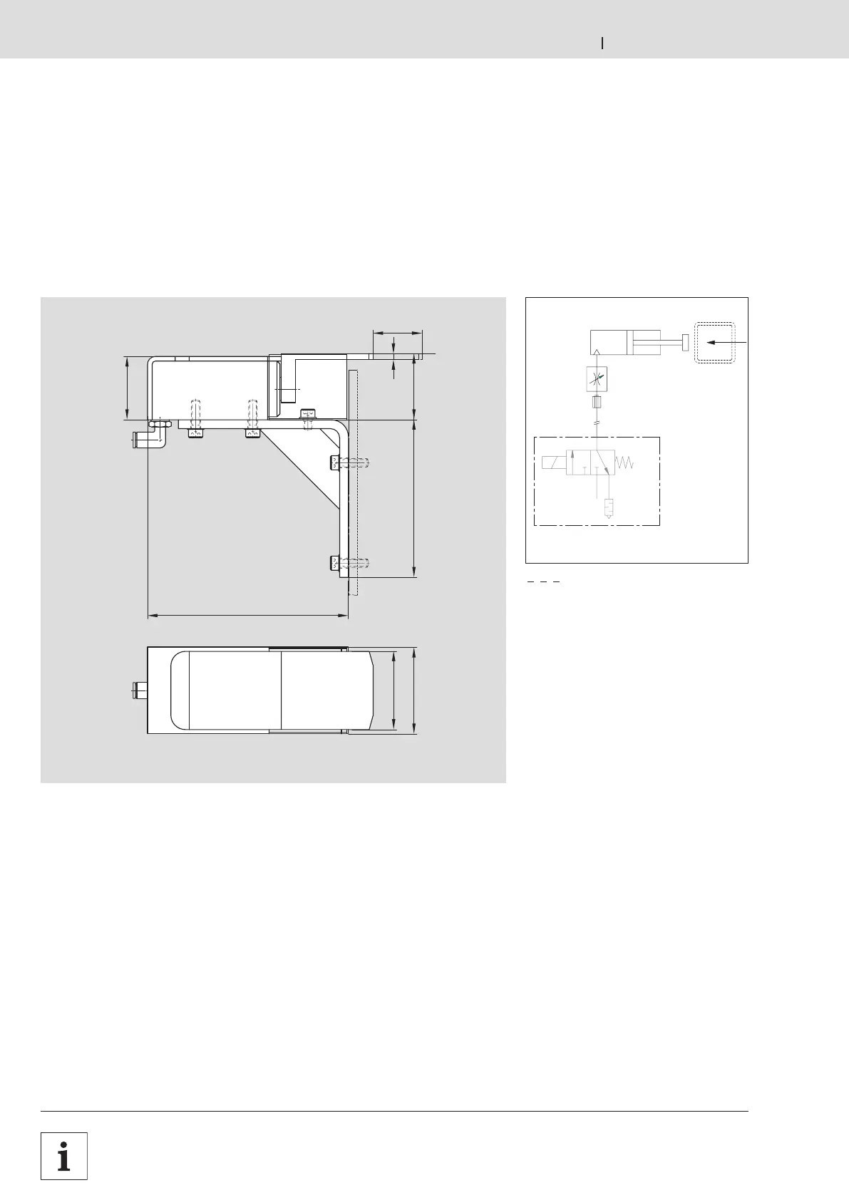
00116083.eps
140
44
54
60 110 46
4
max. 35
3 842 523 645
1 3
2
D 6
00116565.eps
Technische Daten · Technical Data · Données techniques
3 842 531 138 (2011.04)
Dämpfer DA 2/100…
DA 2/100… damper
Amortisseur DA 2/100…
nicht im Lieferumfang
not included in scope of delivery
non compris dans la fourniture