EasyManua.ls Logo

REXROTH TS2 plus - Page 393

REXROTH TS2 plus
429 pages
Print Icon
To Next Page IconTo Next Page
To Next Page IconTo Next Page
To Previous Page IconTo Previous Page
To Previous Page IconTo Previous Page
Loading...
1
2
3
4
5
6
7
8
9
10
11
12
13
14
15
16
17
Bosch Rexroth AGTS 2plus 4.1 11–105
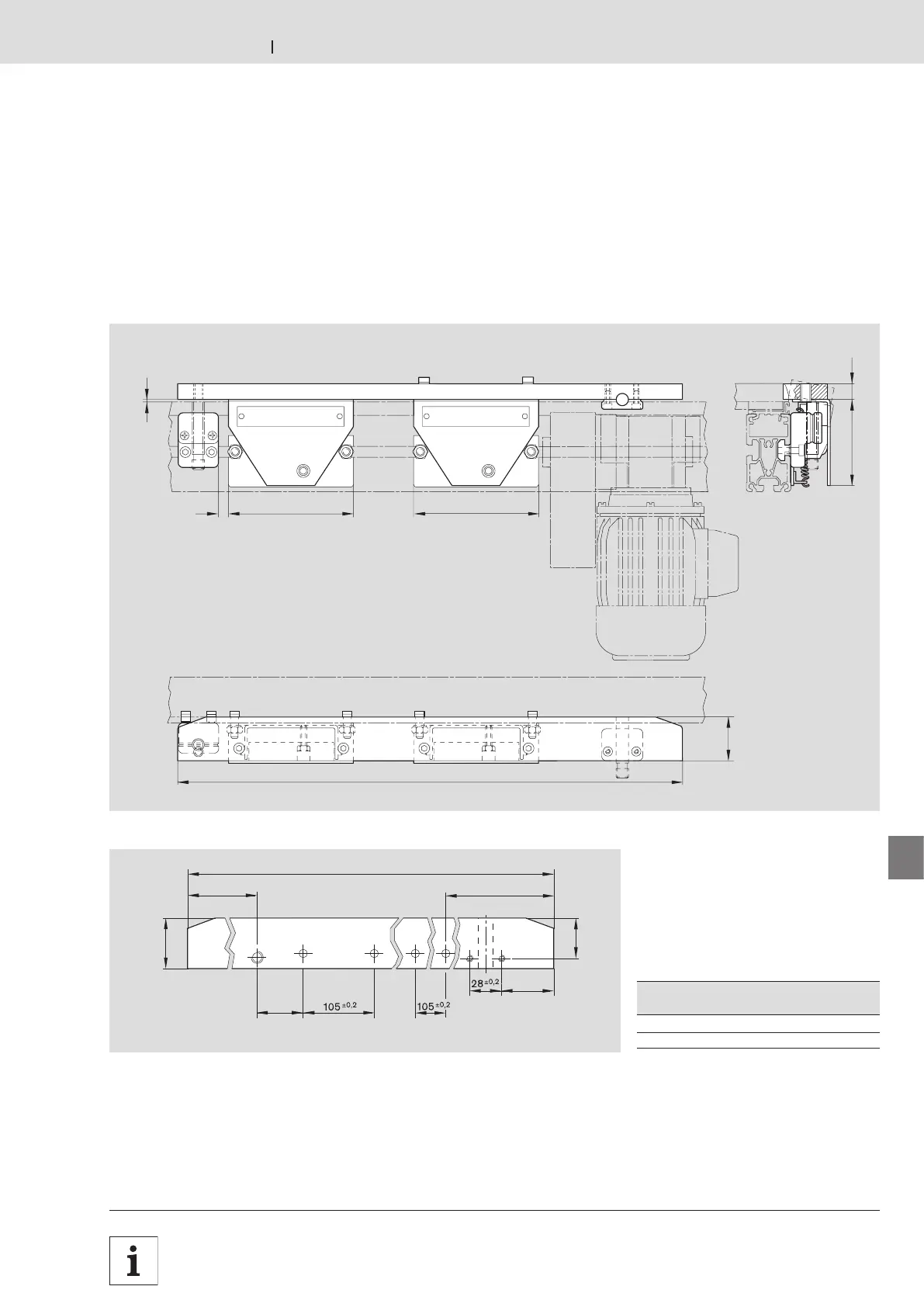
 8-35
b
Q
l
[mm] [mm]
640 720
800 880
125
43
12510
1,5
85 20
l
00116801.eps
46
40
155
155
l
43
34
00116802.eps
Technische Daten · Technical Data · Données techniques
3 842 531 138 (2011.04)
Wippe WI 2
WI 2 rocker
Bascule WI 2
für Werkstückträgerlängen 640 mm
for workpiece pallet lengths of 640 mm
pour les longuers de palettes porte-pièces 640 mm