EasyManua.ls Logo

Rheem RGDJ - Page 5

Rheem RGDJ
48 pages
To Next Page IconTo Next Page
To Next Page IconTo Next Page
To Previous Page IconTo Previous Page
To Previous Page IconTo Previous Page
Loading...
5
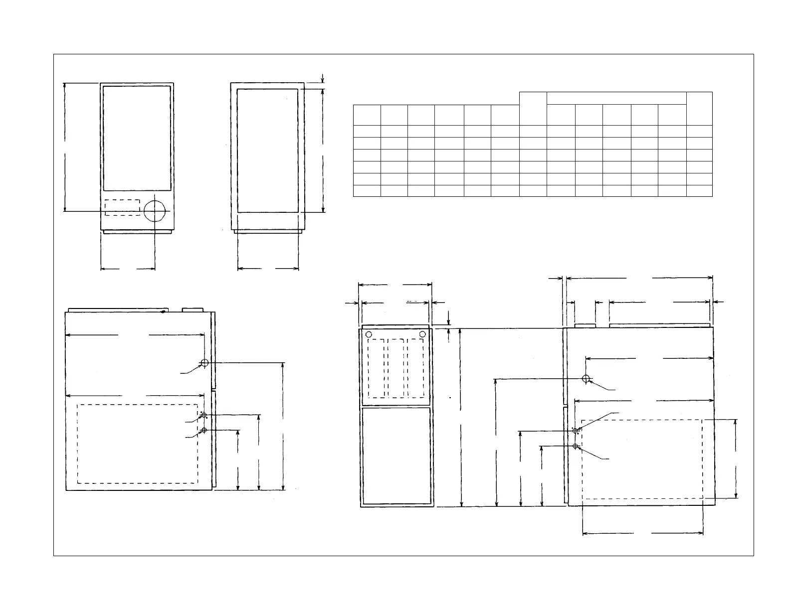
REDUCED CLEARANCE (IN.)
Model A B C D E
Left Right
Back Top Front Vent
Ship.
Side Side Wgts.
04, 05 14 12
27
32 10
3
8 11
1
2 0 4 0 1 3 6 85 lbs.
06, 07 17
1
2 16
11
32 12
1
8 15 0 3 0 1 3 6 105 lbs.
10(A) 17
1
2 16
11
32 12
1
8 15 0 3 0 1 3 6 115 lbs.
10(B) 21 19
27
32 13
7
8 18
1
2 0 0 0 1 3 6 120 lbs.
12 24
1
2 23
11
32 15
5
8 22 0 0 0 1 3 6 140 lbs.
15 24
1
2 23
11
32 15
5
8 22 0 0 0 1 3 6 150 lbs.
CLEARANCE TO COMBUSTIBLE MATERIAL (INCHES)
UPFLOW AND UPFLOW/HORIZONTAL MODELS
TOP
LEFT SIDE
FRONT
RIGHT SIDE
BOTTOM
24
1
2
26
13
16
26
5
8
24
11
32
24
11
32
19
32
9
16
24
7
16
28
1
16
26
5
8
14
3
8
11
1
2
34
1
3
8 DIA.
23
15
20
D
7
8 DIA.
7
8 DIA.
19
32
19
32
3
4
14
3
8
11
1
2
1
1
4
23
17
32
C
GAS CONNECTION
ELECTRICAL CONNECTION
OPTIONAL RETURN AIR CUTOUT
(EITHER SIDE) FOR USE WITH
EXTERNAL SIDE FILTER FRAME
LOW VOLTAGE
E
A
B
R.A.
S.A.
May require 3( to 4( or 3( or 5( adapter.
May be 0( with type B vent.
May be 1( with type B vent.
FIGURE 2
UPFLOW AND UPFLOW/HORIZONTAL DIMENSIONS

Related product manuals