EasyManua.ls Logo

RHOSS KCF/B - Page 30

RHOSS KCF/B
38 pages
Print Icon
To Next Page IconTo Next Page
To Next Page IconTo Next Page
To Previous Page IconTo Previous Page
To Previous Page IconTo Previous Page
Loading...
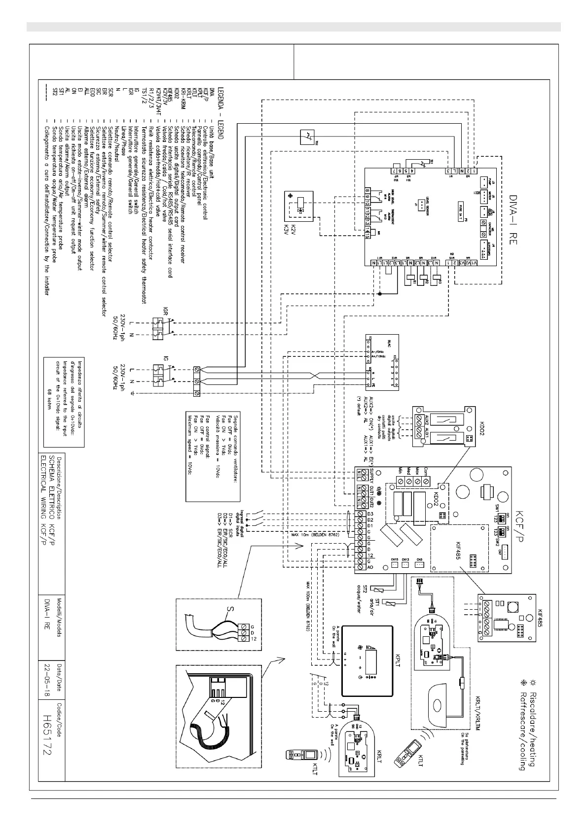
ALLEGATI / ENCLOSED DOCUMENTS / ANNEXES / ANLAGEN / ANEXOS
30

Related product manuals