EasyManua.ls Logo

RHOSS KPLTW - Page 30

RHOSS KPLTW
38 pages
Print Icon
To Next Page IconTo Next Page
To Next Page IconTo Next Page
To Previous Page IconTo Previous Page
To Previous Page IconTo Previous Page
Loading...
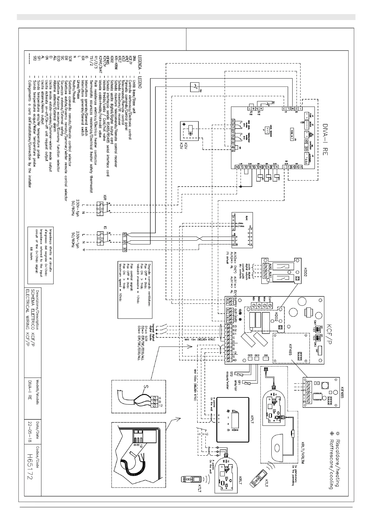
ALLEGATI / ENCLOSED DOCUMENTS / ANNEXES / ANLAGEN / ANEXOS
30

Related product manuals