EasyManua.ls Logo

Ricoh aficio 1013F - Unit Open Switch and Guide Open Sensor; Overall Electrical Circuit

Ricoh aficio 1013F
384 pages
To Next Page IconTo Next Page
To Next Page IconTo Next Page
To Previous Page IconTo Previous Page
To Previous Page IconTo Previous Page
Loading...
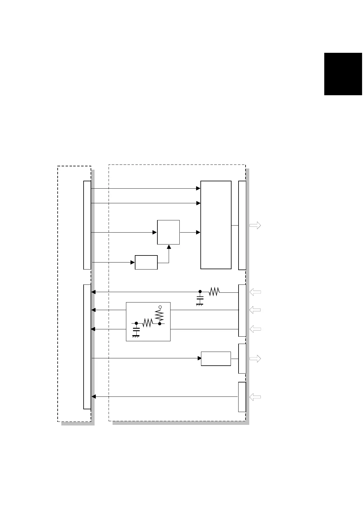
UNIT OPEN SWITCH AND GUIDE OPEN SENSOR
SM 5 B444
Document
Feeder
B444
2.4 UNIT OPEN SWITCH AND GUIDE OPEN SENSOR
The guide open sensor is ON while the DF guide is open, and the unit open switch
is ON when the DF unit itself is raised. The machine will not carry out scanning
when either of these is ON, but will instead display a message instructing the user
to close the DF.
2.5 OVERALL ELECTRICAL CIRCUIT
SLA7033M
Motor
Driver
CN104
CN9
4052
UMG8N
CN10
CN105
2SD1781
CN106
DF Connection Board
FCU
DF Motor
Original Set
Sensor
Original
Registration
Sensor
Guide Open
Sensor
DF Feed
Clutch
Low Pass Filter
Excitation
Sync/Async
Microstep Switch
Driver Current
Switch
Transistor
CN107
DF Unit
Open Switch
B444D103.WMF

Table of Contents

Other manuals for Ricoh aficio 1013F

Related product manuals