EasyManua.ls Logo

Robland TZ30 - Page 18

Default Icon
29 pages
Print Icon
To Next Page IconTo Next Page
To Next Page IconTo Next Page
To Previous Page IconTo Previous Page
To Previous Page IconTo Previous Page
Loading...
¾
K21
K26
-
-·-·11;
,:Î
:
:
.
i
i, 17
: 1 -
.
.
12A4A6Aj2B4B6B
.
L.
,. L..-·-·-:;t_
.
1
-·-·-·J
.
K1
1
$
6000 3000
- 1
K26
!
6000
!
3000
1
N5J_j
Q)
1
N572
1
00
1
2/
77
machines belgiurn
o
o
'o
o/o
o
o
'o
,
,
(8),'
0
0 0 0
00
00
0
©
0
'
2
0
0
2
0
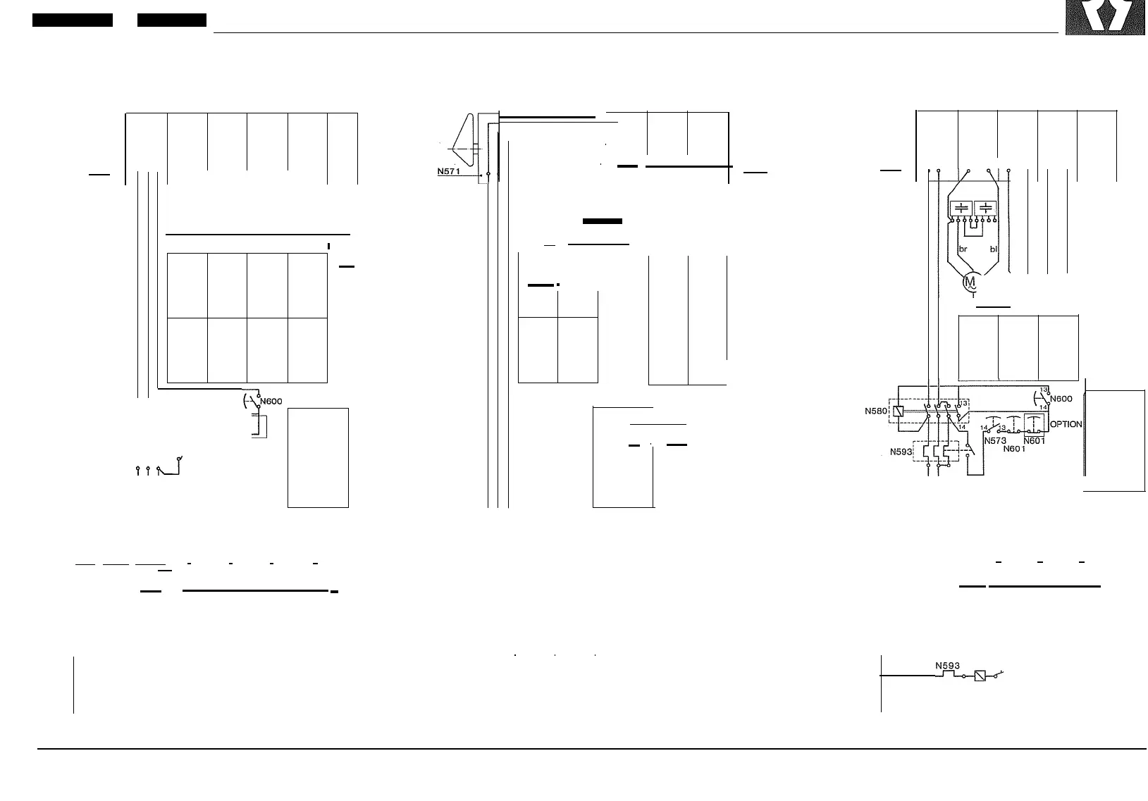
N573
_ _!'l572
N590(3,7x6,7)
i
N593(8,5x 12) 1
·
1
-,
1
1
l
N L1L2L3
,,
N593 - · .-
3/
..., .-:
3/ 3/ 3/ 3/
5
8 0
L1 L2 L3
L1 L2
N593
2/ - 2/ 2/
-----r--
N
57ll
57ll
573
5
\
7
Î
3
j
l
3 3 3 3
N571 N571 N572i N572
N580
57lx 57lr
573J
2
/ 2 /f2
N5rà
M1 M2 M3
é@
1
N 5 9 3
N.§
'
,Q_O_TN T
<>-<f'fc
5 9
M1 M (M3:
N
..
6
.
·
.-r
0
-,
0
.
-r--
N601
-r°'N593
N580
N601 N573
N580
N601 N573
l1 L3
LCJ_
L2
18
!
l I
$1
$-
-$-
!
$
3000
$
6000
-$-
$
!
3000
!
6000
1
N573
1 3
2 4
[ 6 8 [ 10 12 [ 13 14
0
0
FR1ME
.
·-·-··
·-----!
$
!
$
6000 1 6000
+
1
1 3 5 2 4 6 [ B 10 12[2A4A6A[2B4B 6B[13 14
R
L.-.-·.L·-·-·-·....L.._.
_j
l
F
f

Related product manuals