EasyManua.ls Logo

Samsung AR09TXCAAWKNEU - Page 59

Samsung AR09TXCAAWKNEU
318 pages
Print Icon
To Next Page IconTo Next Page
To Next Page IconTo Next Page
To Previous Page IconTo Previous Page
To Previous Page IconTo Previous Page
Loading...
59
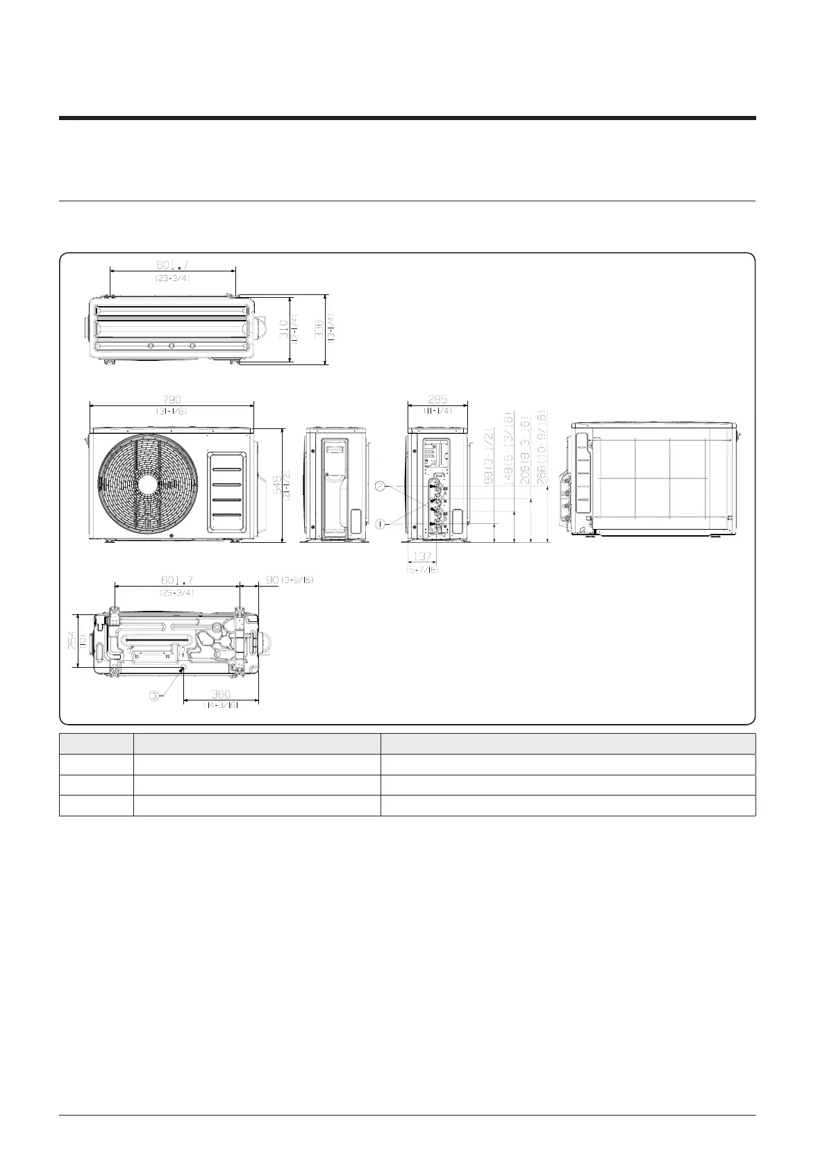
5. Dimensional Drawing5. Dimensional Drawing
5-1. Outdoor units
 AJ040TXJ2KG/EU, AJ050TXJ2KG/EU
Unit : mm [inches]
Rear View
NO Name Description
1 Refrigerant gas pipe 
2 Refrigerant liquid pipe 
3 Drain hole Connection with the provided drain plug.

Other manuals for Samsung AR09TXCAAWKNEU

Related product manuals