EasyManua.ls Logo

Samsung AR12TXCAAWKNEU - Page 63

Samsung AR12TXCAAWKNEU
318 pages
Print Icon
To Next Page IconTo Next Page
To Next Page IconTo Next Page
To Previous Page IconTo Previous Page
To Previous Page IconTo Previous Page
Loading...
63
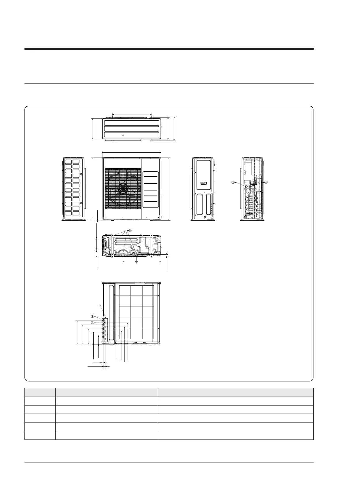
5. Dimensional Drawing
5-1. Outdoor units
 AJ100TXJ5KG/EU
Unit : mm [inches]
Rear View
Power & Communication
Wiring conduit
Detail for Service valve position
940 [37]
620 [24-7/16]
360 [14-3/16]
384 [15-1/8]
330 [13]
998 [39-5/16]
973 [38-5/16]
25 [1]
95 [3-3/4] 183 [7-3/16]
218 [8-5/8]
392 [15-7/16]
375 [14-3/4]
310 [12-3/16]
245 [9-5/8]
180 [7-1/16]
19 [3/4]
40 [1-9/16]
115 [1-1/2]
82 [3-1/4]
147 [5-3/4]
212 [8-5/16]
277 [10-15/16]
342 [13-1/2]
30 [1-3/16]
NO Name Description
1
Refrigerant gas pipe 
2
Refrigerant liquid pipe 
3
Service vlave (gas) 5/8
4
Service vlave (liquid) 3/8
5
Drain hole Connection with the provided drain plug.

Other manuals for Samsung AR12TXCAAWKNEU

Related product manuals