EasyManua.ls Logo

Samsung RB34A7B5DCE/EF - Page 31

Samsung RB34A7B5DCE/EF
Print Icon
To Next Page IconTo Next Page
To Next Page IconTo Next Page
To Previous Page IconTo Previous Page
To Previous Page IconTo Previous Page
Loading...
Instalacija
Srpski30
Instalacija
02
04
05
06
07
03
02
04
05
06
07
03
01
01 01
01
01 01
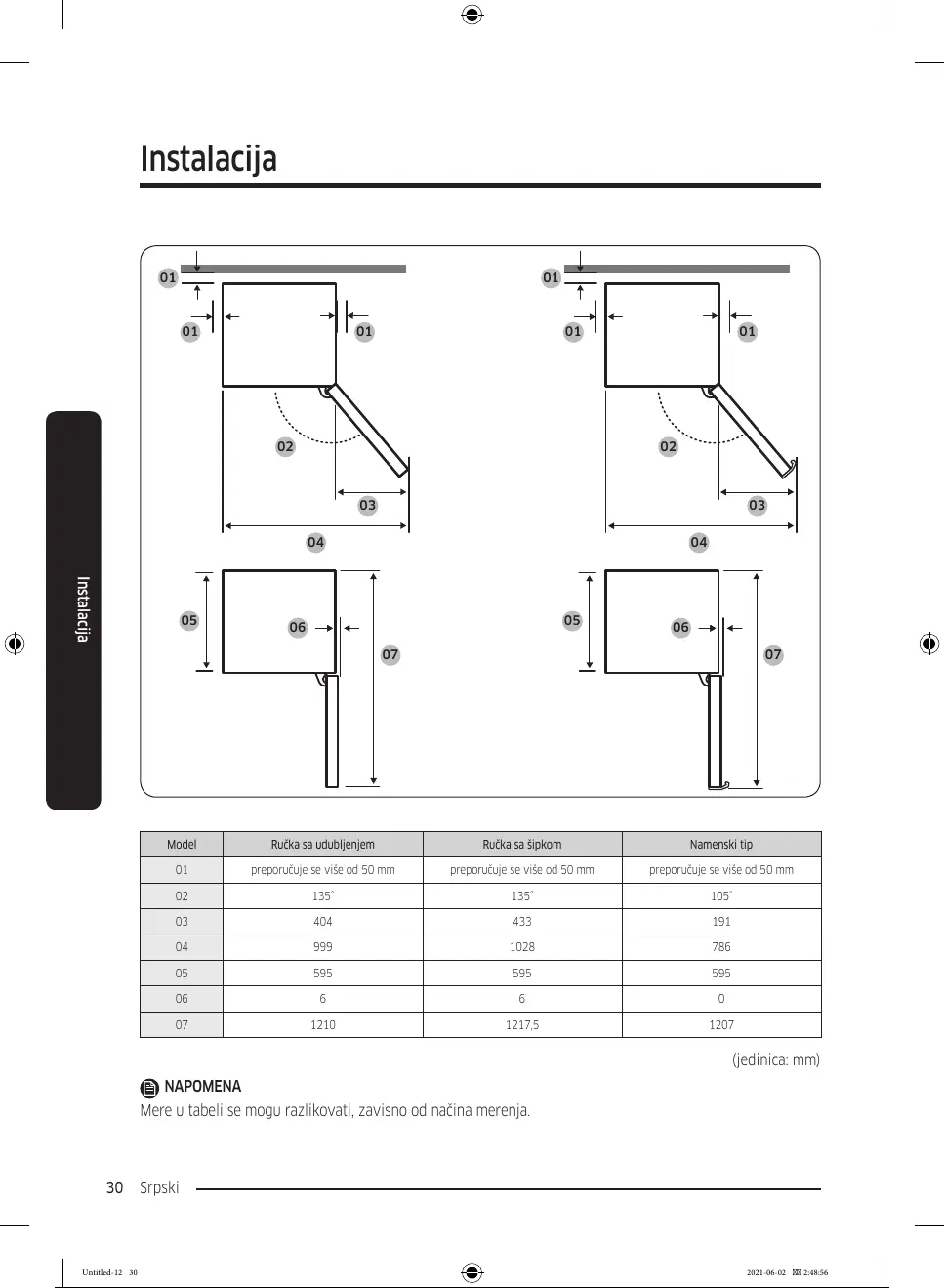
Model Ručka sa udubljenjem Ručka sa šipkom Namenski tip
01 preporučuje se više od 50 mm preporučuje se više od 50 mm preporučuje se više od 50 mm
02 135° 135° 105°
03 404 433 191
04 999 1028 786
05 595 595 595
06 6 6 0
07 1210 1217,5 1207
(jedinica: mm)
NAPOMENA
Mere u tabeli se mogu razlikovati, zavisno od načina merenja.
Untitled-12 30 2021-06-02  2:48:56
31 / 466

Table of Contents

Related product manuals