EasyManua.ls Logo

Samsung RB34A7B5DCE/EF - Page 419

Samsung RB34A7B5DCE/EF
Print Icon
To Next Page IconTo Next Page
To Next Page IconTo Next Page
To Previous Page IconTo Previous Page
To Previous Page IconTo Previous Page
Loading...
Namestitev
Slovenščina30
Namestitev
02
04
05
06
07
03
02
04
05
06
07
03
01
01 01
01
01 01
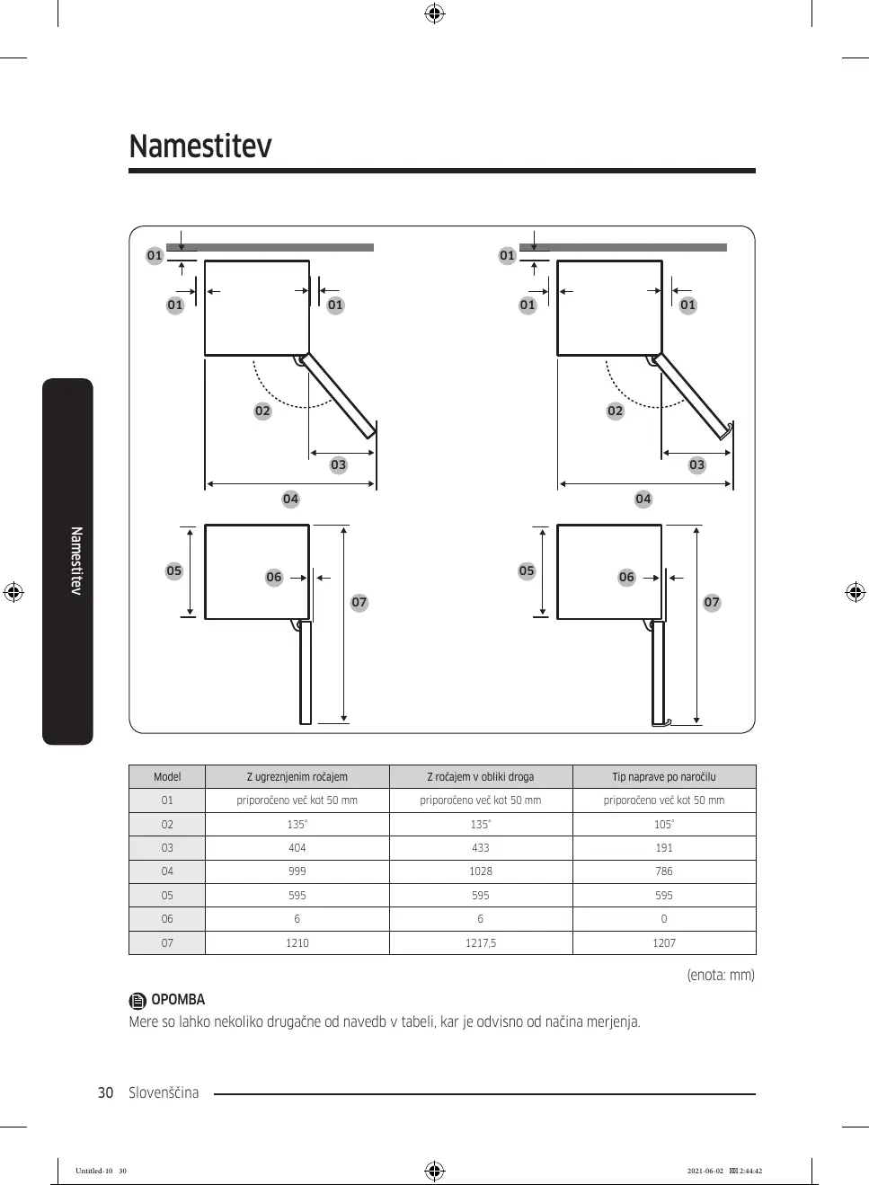
Model Z ugreznjenim rajem Z rajem v obliki droga Tip naprave po naročilu
01 priporeno več kot 50 mm priporeno več kot 50 mm priporeno več kot 50 mm
02 135° 135° 105°
03 404 433 191
04 999 1028 786
05 595 595 595
06 6 6 0
07 1210 1217,5 1207
(enota: mm)
OPOMBA
Mere so lahko nekoliko drugačne od navedb v tabeli, kar je odvisno od načina merjenja.
Untitled-10 30 2021-06-02  2:44:42
419 / 466

Table of Contents