EasyManua.ls Logo

Sargent 8200 - Page 4

Sargent 8200
4 pages
Print Icon
To Previous Page IconTo Previous Page
To Previous Page IconTo Previous Page
Loading...
4
A7334G
Copyright
©
2005, 2008, 2010, 2016, Sargent Manufacturing Company, an ASSA ABLOY Group company. All rights reserved.
Reproduction in whole or in part without the express written permission of Sargent Manufacturing Company is prohibited.
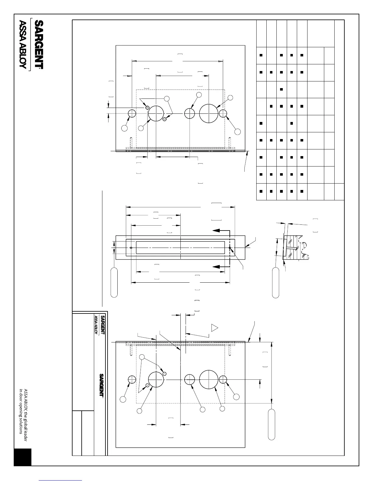
4X
.422
27/64"
4X
.625
5/8"
2X
2.469
2-15/32"
2X
3.875
3-7/8"
2X
1.765
1-49/64"
2X
6.688
6-11/16"
INSIDE
OF DOOR
3
5
1
7
C
L
OF BEVEL
9
9
6.500
6-1/2"
8.031
8.000
8-1/32"
8"
7.250
7-1/4"
3.625
3-5/8"
4.000
4"
DIM "B"
AA
C
L
OF LEVER
OR KNOB
MOUNTING SCREWS
2X DRILL AND TAP FOR
#12-24 x .750 [3/4"] SCREW
C
L
OF DOOR
2X
2.750
BACKSET
2-3/4"
2X
1.797
1-51/64"
DIM "C"
.375
3/8"
OUTSIDE
OF DOOR
4
6
8
2
C
L
OF STRIKE
C
L
OF
LOCKBODY
C
L
OF BEVEL
5
9
9
.219
7/32"
DIM "A"
SECTION A-A
C
L
OF BEVEL
REQUIRED HOLES
FUNCTION
123456789
1.125
[1-1/8"]
DIA.
1.125
[1-1/8"]
DIA.
1.375
[1-3/8"]
DIA.
1.375
[1-3/8"]
DIA.
.750
[3/4"]
DIA.
.750
[3/4"]
DIA.
.250
[1/4"]
DIA.
.250
[1/4"]
DIA.
.562
[9/16"]
DIA.
04, 37
05, 24, 25
17, 26, 38, 39, 40
31, 35, 36
65, 66
RELEASE DATE
TEMPLATE
NO
.
100 Sargent Drive New Haven, CT 06511
Manufacturing Company
TEMPLATE: MORTISE LOCK
8200 SERIES: (FREE WHEELING)
METAL DOOR
4500
J
NOTES:
DENOTES HOLE REQUIRED FOR FUNCTION LISTED. (CHECK TABLE BEFORE CUTTING HOLE.)
1.
REFER TO TRIM TEMPLATE FOR ADDITIONAL HOLE REQUIREMENTS.
2.
SUITABLE REINFORCEMENTS REQUIRED FOR METAL DOORS.
3.
FOR DETAILS, SEE STRIKE TEMPLATE 7063.
4.
FOR WOOD DOORS SEE TEMPLATE A7323.
5.
DETAIL OF SUGGESTED DOOR-CUT

Related product manuals