EasyManua.ls Logo

Schüco DCS - Page 32

Schüco DCS
138 pages
Print Icon
To Next Page IconTo Next Page
To Next Page IconTo Next Page
To Previous Page IconTo Previous Page
To Previous Page IconTo Previous Page
Loading...
Introduction
Einleitung
DCS Touch Display
DCS Touch Display
Access control
Zutrittskontrolle
Emergency exit switch
Fluchttürsicherung
Door communication
Türkommunikation
Components
Komponenten
Accessories
Zubehör
Schüco Door Control System (DCS)
C 3-6
07.2016 / 54105
Bestellkombinatorik Zutrittskontrolle • Ordering combinations – access control
2
IN1* IN2* OUT1*OUT2*
2 2 2
2
24
3
3
12
Einsetzbar in:
Can be used in:
11
2 x 1,5 mm
2
(max. 50 m)
2 x 1.5 mm
2
(max. 50 m)
Art.-Nr.
262 717
Art.-Nr.
262 717
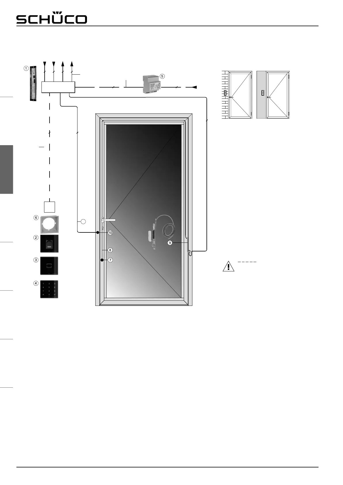
Anwendungsbeispiell für Schüco DCS Zutrittskontrolle, Wand- oder Paneelmontage
Example of use for Schüco DCS access control, wall or panel installation
Die Schüco DCS Module sind in der Wand oder in einem Paneel neben der
Tür verbaut. Die Tür ist wahlweise mit einem Fingerprint-, einem RFID
Leser- oder einer Code Tastatur, inklusive eines vorkonfektionierten
Leitungssatzes zur einfachen und konfortablen Verdrahtung der elektrischen
Komponenten ausgestattet.
Je nach Anwendungsfall wird das jeweilige Schüco DCS Basispaket-
Zutzrittskontrolle eingesetzt.
Für den Einsatz von elektrischen Motorschlössern oder E-Öffnern steht das
Ergänzungspaket - Elektrische Schließtechnik zur Verfügung. Bitte beachten
Sie, dass Schlösser und E-Öffner gemäß dem Einsatzfall separat bestellt
werden müssen (siehe Bestellkatalog 1-4 Türbeschläge).
The Schüco DCS modules are installed in the wall or a panel next to the
door. The door is tted with a Fingerprint system, RFID reader or a code
keypad, including a prepared set of cables for easy and convenient wiring of
the electrical components.
Depending on the case of application, the respective Schüco DCS basic
package for access control is used.
The supplementary package for electric lock technology is available for the
use of electric locks or electric strikes. Please note that locks and electric
strikes must be ordered separately to suit the application
(see order manual 1-4 for door ttings).
Verwendete Funktionspakete:
DCS Basispaket – Zutrittkontrolle (wahlweise
Fingerprint, Code Tastatur oder RFID Leser)
DCS Ergänzungspaket – Elektrische Schließ-
technik
Function packages used:
Schüco DCS basic package – access control
(with Fingerprint system, code keypad or RFID
reader)
Schüco DCS supplementary package – electric
lock technology
*
*
*
*
*
Art.-Nr.
262 717
Art.-Nr.
262 717
**
** siehe Stanzstufe
„Universelles Zubehör“.
** See “Universal accessories” section.
Leitung bauseits
Cable supplied by customer
* optional
* Optional

Other manuals for Schüco DCS