EasyManua.ls Logo

scope Pagetek Pro MK2 - 3.4 Fitting the Antenna

scope Pagetek Pro MK2
28 pages
Print Icon
To Next Page IconTo Next Page
To Next Page IconTo Next Page
To Previous Page IconTo Previous Page
To Previous Page IconTo Previous Page
Loading...
SCOPE COMMUNICATIONS UK LTD
PAGETEK PRO MK2
Ref: PTPROMK2INSTALLred Page 9 of 27 Issue 1
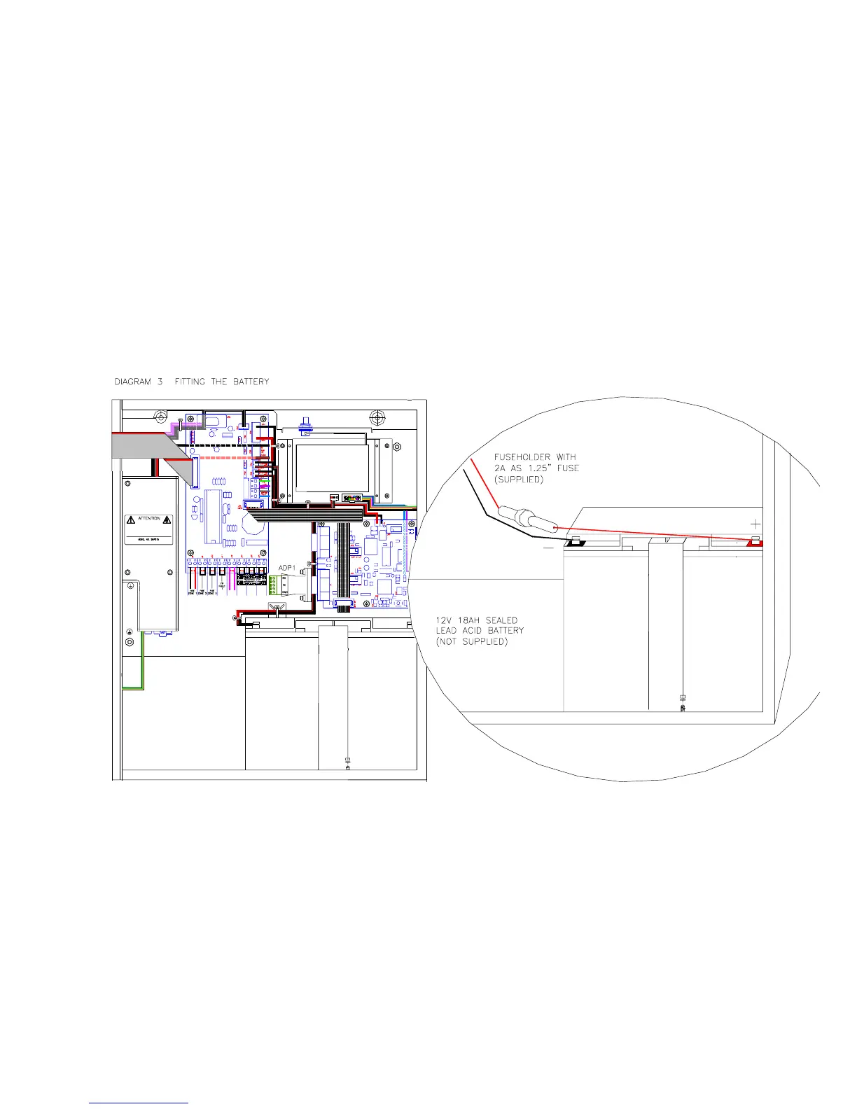
3.3 Fitting the battery
a) The battery type required is a sealed lead acid 12V 18Ah battery.
b) Remove the bracket and insert the battery, with the contacts facing outwards , as shown
in diagram 3.
c) Fit the red cable connector to the positive terminal. Do NOT fit the black cable connector
to the negative terminal at this stage (see Power Up, section 4)
d) Check that the battery is located as far to the right hand side of the cabinet as possible
then refit the bracket and tighten the lock nut.
e) Note that the fuseholder is fitted with a 2A Anti-Surge type 1.25” fuse. If the fuse ever
requires replacing, only fit with an identically rated type (a spare is provided). If in doubt,
call Scope’s technical help team for advice on 01803 860720.
f) When fitting the spade connectors to the battery terminals always check that they are a
tight fit. A loose connection will result in the warning message “BATTERY FAULT”
appearing on the system display (see Section 8.2, vii).