EasyManua.ls Logo

SCS Sentinel SOFIA M1E8 TOP B - Page 11

SCS Sentinel SOFIA M1E8 TOP B
Print Icon
To Next Page IconTo Next Page
To Next Page IconTo Next Page
To Previous Page IconTo Previous Page
To Previous Page IconTo Previous Page
Loading...
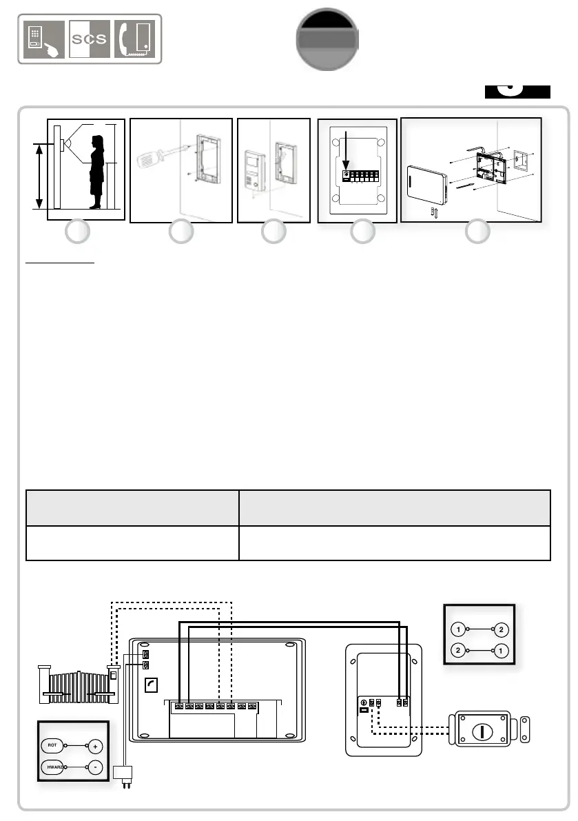
Befestigung
1) Die Außenkamera auf 1,5 Meter Höhe an einer glatten Wand befestigen.
2) Zuerst den hinteren Halter anbringen. Zuletzt die Schraube unterhalb der Türsprechanlage
anziehen.
3) Die Drähte der Kamera anschließen (wie auf der unteren Abbildung gezeigt) und die Kamera auf
dem Halter positionieren. Die Kamera nicht an Orten installieren, die dem direkten Sonnenlicht oder
Regen ausgesetzt sind. Nach Installation und Test der Anlage eine durchsichtige Silikondichtung
auf der Oberseite und den Seiten (aber nicht auf der Unterseite) der Außenkamera anbringen, um
diese vor Wassereindringungen zu schützen.
4) WICHTIG : Einstellung Melodielautstärke.
5) Den hinteren Halter des Bildschirms befestigen (auf 1,5 Meter Höhe an einer glatten Wand).
Die Drähte anschließen und den Bildschirm auf dem Halter positionieren.
KABELQUERSCHNITT :
Verbindung Bildschirm-Kamera Verbindung Kamera – Schloss / Türöffner
Verbindung Bildschirm / Automatismus
Von 0 bis 50 Meter: Verwendung eines
Kabels der Stärke 0,75mm²
Von 0 bis 10 Meter: RVV2*1 mm²-Kabel.
SCHALTPLAN :
BEFESTIGUNG UND ANSCHLUSS DER KOMPONENTEN
3
DEUTCH
1234
56
+
-
A1
GN 18V
A2 B1
B2
C1
C2
GND
VD
E8-Bildschirm
M1-Kamera
18V-Net-
zadapter
Schloss oder Türöffner
(Aufpreis)
12V / 700 mA
1.5 m
1 2 3
123456
4 5
1
2
2
1
Bildschirm
Kamera
ROT
SCHWARZ
+
-
Transformator Bildschirm

Related product manuals