EasyManua.ls Logo

SCS Sentinel SOFIA M1E8 TOP B - Page 25

SCS Sentinel SOFIA M1E8 TOP B
Print Icon
To Next Page IconTo Next Page
To Next Page IconTo Next Page
To Previous Page IconTo Previous Page
To Previous Page IconTo Previous Page
Loading...
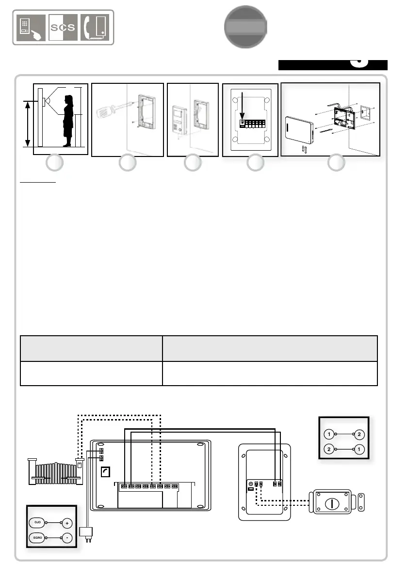
Fijación
Fijar la cámara exterior a 1,5 metros de altura en un muro plano.
2) En primer lugar, jar el soporte posterior. Terminar atornillando el tornillo inferior
de la placa.
3) Conectar los cables de la cámara (como se indica en el diagrama que sigue) y
unir la cámara a su soporte. No instalar la cámara en un lugar que esté en contacto
directo con la lluvia o la luz solar. Después de la instalación y prueba, colocar una
junta de silicona transparente en la parte superior y a ambos lados de la cámara
exterior (no en el borde inferior) para evitar el riesgo de ltraciones.
4) IMPORTANTE : Reglaje del volumen de melodía.
5) Fijar el soporte posterior del monitor (a 1,5 metros de altura en un muro plano).
Conectar los hilos y unir el monitor a su soporte.
SECCIÓN DE CABLES :
Enlace cámara - monitor Conexión cámara – cerradura / placa
Enlace monitor -automatismo
De 0 a 50 metros: uso del cable
de 0,75 mm²
De 0 a 10 metros: se usa cable RVV2 x 1mm².
DIAGRAMA DE CABLEADO :
FIJACION Y CONEXION DE LOS ELEMENTOS
3
ESPAñOL
1234
56
+
-
A1
GN 18V
A2 B1
B2
C1
C2
GND
VD
Monitor E8
Cámara M1
Adaptador
de 18 Voltios
Cerradura o placa
eléctrica (opción)
12V / 700 mA
1.5 m
1 2 3
123456
4 5
1
2
2
1
MONITOR
CÁMARA
ROJO
NEGRO
+
-
Transformador MONITOR

Related product manuals