EasyManua.ls Logo

SCS Sentinel SOFIA M1E8 TOP B - Page 32

SCS Sentinel SOFIA M1E8 TOP B
Print Icon
To Next Page IconTo Next Page
To Next Page IconTo Next Page
To Previous Page IconTo Previous Page
To Previous Page IconTo Previous Page
Loading...
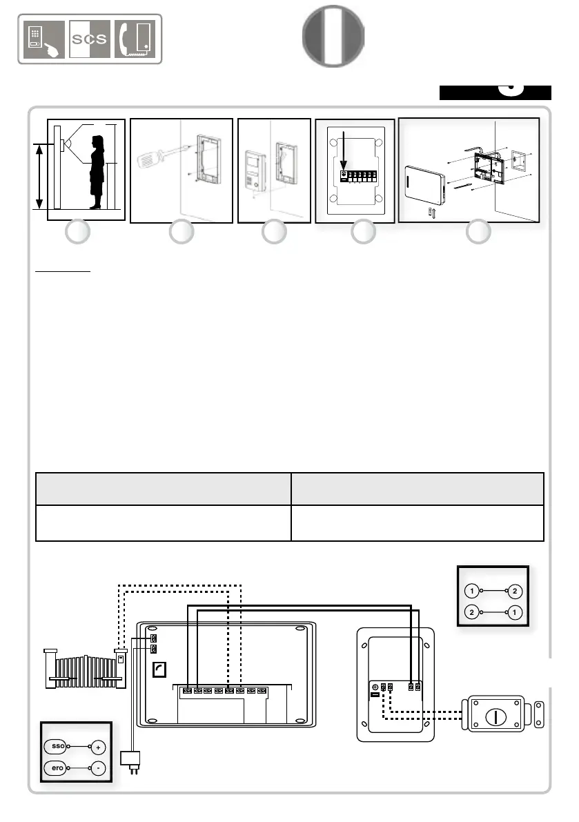
Fissaggio
1) Fissare la telecamera esterna 1,5 metri di altezza su una parete piana.
2) Fissare innanzitutto il supporto posteriore. Terminare avvitando la vite inferiore della piastra.
3) Collegare i li della telecamera (come indicato nello schema sottostante) e inserire la telecamera
nel suo supporto. Non installare la telecamera in un luogo direttamente esposto a pioggia o sole.
Dopo l’installazione e l’esecuzione del test, posizionare una guarnizione di silicone trasparente
sulla parte superiore e sui lati della telecamera esterna (non sulla parte inferiore) per evitare
eventuali rischi di inltrazioni.
4) IMPORTANDO : regolazione volume suoneria.
5) Fissare il supporto posteriore del monitor (a 1,5 metri di altezza su una parete piana). Collegare
i li e inserire il monitor nel suo supporto.
SEZIONE DEI FILI :
Collegamento monitor-telecamera
Collegamento telecamera -apriporta o serratura.
Collegamento monitor - automatismo
Da 0 a 50 metri: utilizzo del cavo da 0,75
mm²
Da 0 a 10 metri: uso del cavo RVV2 *1mm².
SCHEMA DI CABLAGGIO :
FISSAGGIO E COLLEGAMENTO DEGLI ELEMENTI
3
ITALIANO
1234
56
+
-
A1
GN 18V
A2 B1
B2
C1
C2
GND
VD
Monitor E8
Telecamera M1
Adattatore
18 Volt
Serratura o apriporta
elettrico (opzionale)
12V / 700 mA
1.5 m
1 2 3
123456
4 5
1
2
2
1
MONITOR
PIASTRA
rosso
nero
+
-
Trasformatore MONITOR

Related product manuals